Бизнес
Цена на кв.м: 2412.83
Тип апартамент: 3 - стаен
Квадратура: 116 кв.м
Година на строителство: 2025 г.
Строителство: Тухла
Етаж: 4-ти
Брой етажи на сградата: 11
Последен етаж
Отопление: ТЕЦ
Обзавеждане: Необзаведен
Състояние на сградата: В строеж
Преход: Без преход
Особености: асансьор
Описание
ПРОМОЦИОНАЛНА СХЕМА НА ПЛАЩАНЕ: 10% на Предварителен договор и 90% на АКТ 16!
ЕРА Голд Ви представя новостроящ се жилищен комплекс с АКТ 16, в близост до The Mall, Мегапарк и бъдеща метростанция в кв. Полигона.
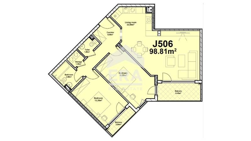
Разпределение: Входно антре, дневна с кухненски бокс и трапезария 33.69 кв. м., 2 просторни спални, баня с тоалетна, отделна тоалетна, мокро помещение/склад и 2 балкона. Изложение: Изток.
Обща площ: 116.62 кв. м.
Застроена площ: 98.81 кв. м.
За изграждането на сградата ще бъдат използвани съвременни и качествени технологии и материали. Характеристики на сградата:
• Входно антре и стълбищните площадки – гранитогрес/теракот/ или др.
• Асансьор.
• Изградени връзки с възможност за доставка на кабелна телевизия и интернет.
• Стените и таваните в общите помещения - гипсова шпакловка и латекс.
• Външна топлоизолация на цялата сграда.
• Монтирана входна врата на блока.
• Вертикалната планировка - тротоари, озеленяване и градинско осветление.
Апартаментите ще се издават по БДС:
• циментова замазка на пода;
• стени и тавани - гипсова шпакловка;
• бани и тоалетни – мазилка на стени и таван;
• тераси с гранитогрес /теракот/ или др.;
• PVC дограма;
• входна врата – метална с касова брава;
• изпълнена ОВ инсталация до тапа;
• изпълнена електрическа инсталация с монтирано апартаментно табло без заредени ключове и контакти;
• изпълнена ВиК мрежа от полипропилен и PVC до тапа;
• възможност за включване към инсталация за кабелна телевизия и телефон;
• изградена домофонна и звънчева инсталация с монтирани тела.
В допълнение има възможност за закупуване на паркоместа на цена от 30 000 евро и гаражи на цена 35 000 евро. Всички цени са с ДДС!
Отлична локация на пешеходно разстояние от:
• Детска градина и ясла „Вълшебното Борче“
• The Mall
• Мегапарк
• Магазин Mr. Bricolage
• Офис на Спиди
• СБАЛОБ „Зора“
• ProMarket - 400 метра
• Университет по библиотекознание и информационни технологии
• София Тех Парк
Строителна компания с отлична репутация, постоянство и безспорно качество. Завършените проекти са еталон за качество и инвестиционен потенциал, предлагащи на собствениците дом без компромис комбинация от удобно местоположение, архитектурен дизайн, качество и функционалност. Сградата е с получен АКТ 15 , АКТ 16 до края на 2025 г.
CreditERA предоставя безплатна консултация и съдействие при финансиране на избрания от Вас имот от всички водещи банки в страната и ще договори най-добрите условия за вас!
Оферта №4061167
ЕРА Голд Ви представя новостроящ се жилищен комплекс с АКТ 16, в близост до The Mall, Мегапарк и бъдеща метростанция в кв. Полигона.
Разпределение: Входно антре, дневна с кухненски бокс и трапезария 33.69 кв. м., 2 просторни спални, баня с тоалетна, отделна тоалетна, мокро помещение/склад и 2 балкона. Изложение: Изток.
Обща площ: 116.62 кв. м.
Застроена площ: 98.81 кв. м.
За изграждането на сградата ще бъдат използвани съвременни и качествени технологии и материали. Характеристики на сградата:
• Входно антре и стълбищните площадки – гранитогрес/теракот/ или др.
• Асансьор.
• Изградени връзки с възможност за доставка на кабелна телевизия и интернет.
• Стените и таваните в общите помещения - гипсова шпакловка и латекс.
• Външна топлоизолация на цялата сграда.
• Монтирана входна врата на блока.
• Вертикалната планировка - тротоари, озеленяване и градинско осветление.
Апартаментите ще се издават по БДС:
• циментова замазка на пода;
• стени и тавани - гипсова шпакловка;
• бани и тоалетни – мазилка на стени и таван;
• тераси с гранитогрес /теракот/ или др.;
• PVC дограма;
• входна врата – метална с касова брава;
• изпълнена ОВ инсталация до тапа;
• изпълнена електрическа инсталация с монтирано апартаментно табло без заредени ключове и контакти;
• изпълнена ВиК мрежа от полипропилен и PVC до тапа;
• възможност за включване към инсталация за кабелна телевизия и телефон;
• изградена домофонна и звънчева инсталация с монтирани тела.
В допълнение има възможност за закупуване на паркоместа на цена от 30 000 евро и гаражи на цена 35 000 евро. Всички цени са с ДДС!
Отлична локация на пешеходно разстояние от:
• Детска градина и ясла „Вълшебното Борче“
• The Mall
• Мегапарк
• Магазин Mr. Bricolage
• Офис на Спиди
• СБАЛОБ „Зора“
• ProMarket - 400 метра
• Университет по библиотекознание и информационни технологии
• София Тех Парк
Строителна компания с отлична репутация, постоянство и безспорно качество. Завършените проекти са еталон за качество и инвестиционен потенциал, предлагащи на собствениците дом без компромис комбинация от удобно местоположение, архитектурен дизайн, качество и функционалност. Сградата е с получен АКТ 15 , АКТ 16 до края на 2025 г.
CreditERA предоставя безплатна консултация и съдействие при финансиране на избрания от Вас имот от всички водещи банки в страната и ще договори най-добрите условия за вас!
Оферта №4061167
ID: 145149952
Контакт с продавача
xxx xxx xxx