Частна
Описание
Проектант на електрически инсталации.
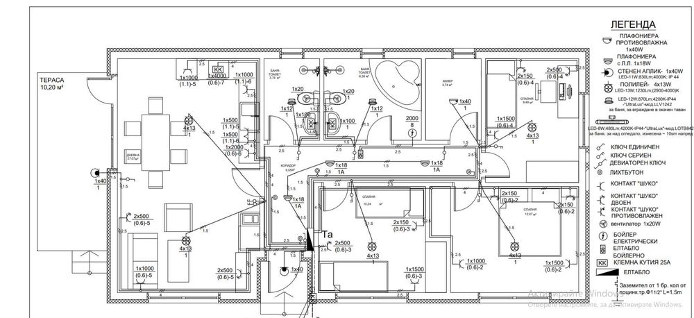
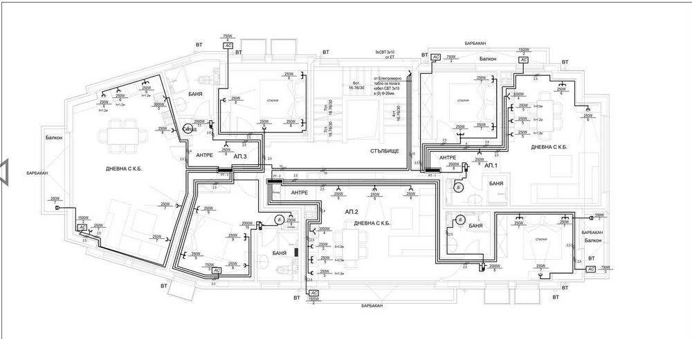
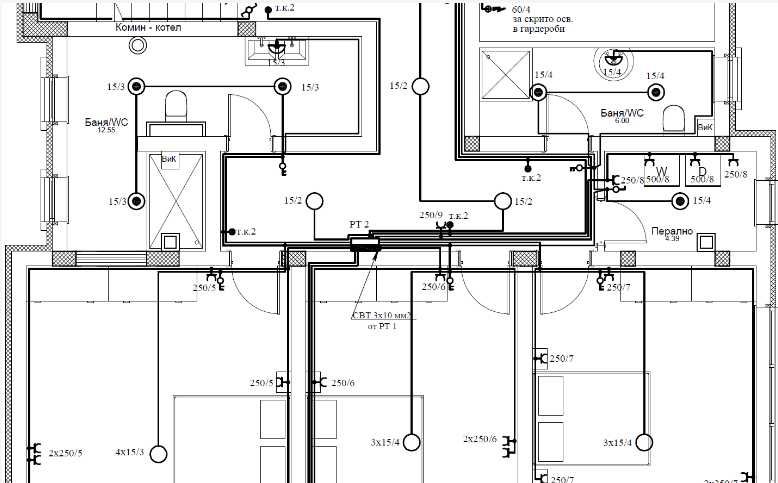
- Това включва всички части на един проект по част " Електрическа", а именно силнотокови инсталации, осветителни инсталаци, слаботокови инсталации, мълниезащита и заземяване, пожароизвестяване и оповестяване.
Съдържание на проект по част Електрическа:
- силнотокови инсталации;
- осветителни инсталаци;
- слаботокови инсталации;
- мълниезащита и заземяване;
- количествена сметка;
- обяснителна записка;
- Това включва всички части на един проект по част " Електрическа", а именно силнотокови инсталации, осветителни инсталаци, слаботокови инсталации, мълниезащита и заземяване, пожароизвестяване и оповестяване.
Съдържание на проект по част Електрическа:
- силнотокови инсталации;
- осветителни инсталаци;
- слаботокови инсталации;
- мълниезащита и заземяване;
- количествена сметка;
- обяснителна записка;
ID: 143094297
Контакт с продавача
xxx xxx xxx
Добавена 17 ноември 2025 г.
Проектант част "Електрическа"
Потребител
Локация