Бизнес
Цена на кв.м: 1498.31
Тип апартамент: 2 - стаен
Квадратура: 59 кв.м
Година на строителство: 2024 г.
Строителство: Тухла
Етаж: 2-ри
Брой етажи на сградата: 4
Последен етаж
Отопление: Електричество
Обзавеждане: Необзаведен
Състояние на сградата: В строеж
Преход: Без преход
Особености: асансьор, гараж, паркинг, саниран
Описание
БЕЗ КОМИСИОННА !
ОТ ИНВЕСТИТОР !
Уникална Възможност за Инвестиция: Модерни Апартаменти в Престижния Курорт Созопол.
Основни Характеристики:
Локация: Апартаментите са разположени в престижния курорт Созопол, само на 300 метра от плаж Харманите, предоставяйки уникално преживяване на морския бряг.
Размери и Типове: Предлагат се разнообразни типове апартаменти, включително студиа, двустайни и тристайни, с различни площи и разпределения, за да отговорят на всички изисквания и предпочитания.
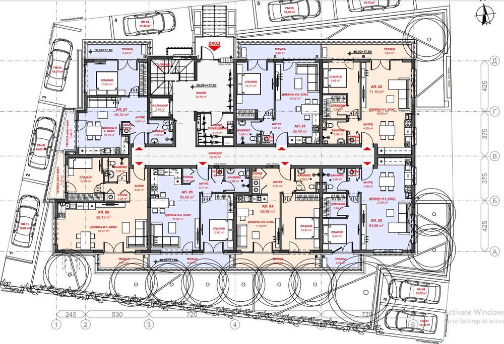
Свободни апартаменти:
ет.1-Партер
апартамент 1- 69.13кв.м
апартамент 2- 79.01 кв.м
апартамент 3- 72.63 кв.м
апартамент 6- 73.54 кв.м
апартамент 7- 64.41 кв.м
ет. 2
апартамент 14- 58.58 кв.м
апартамент 15- 67.96 кв.м - Обявената цена е за този имот !
ет. 3
апартамент 19 - 96.84 кв.м
апартамент 20- 97.25 кв.м
ет. 4
апартамент 28 -124.66 кв.м +13.75 -тераса към апартамента
апартамент 29 -127.34 кв.м + 48.13 - тераса към апартамента
Дизайн: Всяко жилище е проектирано с внимание към детайлите, с модерен и функционален дизайн, включващ висококачествени материали и съвременни удобства.
Удобства: Жилищната сграда се намира в близост до магазини и ресторанти, както и до мястото, където ще бъдат изградени новата автогара и болница, предоставяйки удобство и лесен достъп до разнообразни услуги и удобства.
Паркиране: Паркирането в сградата е осигурено на 100%, предлагайки удобство и комфорт на жителите.
Не изпускайте тази уникална възможност за инвестиция в неповторимия курорт Созопол! Очакваме вашето обаждане!
ОТ ИНВЕСТИТОР !
Уникална Възможност за Инвестиция: Модерни Апартаменти в Престижния Курорт Созопол.
Основни Характеристики:
Локация: Апартаментите са разположени в престижния курорт Созопол, само на 300 метра от плаж Харманите, предоставяйки уникално преживяване на морския бряг.
Размери и Типове: Предлагат се разнообразни типове апартаменти, включително студиа, двустайни и тристайни, с различни площи и разпределения, за да отговорят на всички изисквания и предпочитания.
Свободни апартаменти:
ет.1-Партер
апартамент 1- 69.13кв.м
апартамент 2- 79.01 кв.м
апартамент 3- 72.63 кв.м
апартамент 6- 73.54 кв.м
апартамент 7- 64.41 кв.м
ет. 2
апартамент 14- 58.58 кв.м
апартамент 15- 67.96 кв.м - Обявената цена е за този имот !
ет. 3
апартамент 19 - 96.84 кв.м
апартамент 20- 97.25 кв.м
ет. 4
апартамент 28 -124.66 кв.м +13.75 -тераса към апартамента
апартамент 29 -127.34 кв.м + 48.13 - тераса към апартамента
Дизайн: Всяко жилище е проектирано с внимание към детайлите, с модерен и функционален дизайн, включващ висококачествени материали и съвременни удобства.
Удобства: Жилищната сграда се намира в близост до магазини и ресторанти, както и до мястото, където ще бъдат изградени новата автогара и болница, предоставяйки удобство и лесен достъп до разнообразни услуги и удобства.
Паркиране: Паркирането в сградата е осигурено на 100%, предлагайки удобство и комфорт на жителите.
Не изпускайте тази уникална възможност за инвестиция в неповторимия курорт Созопол! Очакваме вашето обаждане!
ID: 139467775
Контакт с продавача
xxx xxx xxx

