Бизнес
Цена на кв.м: 1507.59
Тип апартамент: 2 - стаен
Квадратура: 83 кв.м
Година на строителство: 2026 г.
Строителство: Тухла
Етаж: 3-ти
Брой етажи на сградата: 6
Последен етаж
Отопление: Електричество
Обзавеждане: Необзаведен
Състояние на сградата: В строеж
Преход: Без преход
Описание
Без комисион от купувача.
Без такса поддръжка.
Директно от строител.
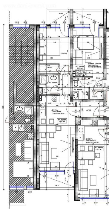
Ем Джи Естейт продава двустаен апартамент в гр. Поморие Стария град.
Площ - 83,42 кв.м.
Етаж - 3 от 6
Изложение - Север - юг
Сградата е в строеж.
Начало на строителството - януари 2025г.
Срок за завършване - 24 месеца.
Степен на завършеност: НА ТАПА с възможност за завършване ДО КЛЮЧ.
Апартаментът се състои от коридор, всекидневна с обособени кътове за кухня, трапезария и отдих, спалня, склад, две тераси.
ВЪЗМОЖНОСТ ЗА ЗАКУПУВАНЕ НА ПАРКОМЯСТО.
Чудесна инвестиция в апартамент както за постоянно живеене, така и да отдаване под наем.
Пешеходно разстояние до пажа и центъра на града - 5 мин.
Код на обявата: ДП-1658307.
**Агенция Ем Джи Естейт е член на НСНИ и администратор на лични данни.
**Преди огледа се провежда среща в нашия офис, за да се запознаем с изискванията Ви и за да оформим документи съгласно ЗЗД и ЗМИП.
**По време на огледа се подписва Протокол за оглед.
**Предлагаме Ви юридическо съдействие през целия процес на покупката,
**Лицензиран кредитен консултант ще Ви съдейства при банково кредитиране.
Без такса поддръжка.
Директно от строител.
Ем Джи Естейт продава двустаен апартамент в гр. Поморие Стария град.
Площ - 83,42 кв.м.
Етаж - 3 от 6
Изложение - Север - юг
Сградата е в строеж.
Начало на строителството - януари 2025г.
Срок за завършване - 24 месеца.
Степен на завършеност: НА ТАПА с възможност за завършване ДО КЛЮЧ.
Апартаментът се състои от коридор, всекидневна с обособени кътове за кухня, трапезария и отдих, спалня, склад, две тераси.
ВЪЗМОЖНОСТ ЗА ЗАКУПУВАНЕ НА ПАРКОМЯСТО.
Чудесна инвестиция в апартамент както за постоянно живеене, така и да отдаване под наем.
Пешеходно разстояние до пажа и центъра на града - 5 мин.
Код на обявата: ДП-1658307.
**Агенция Ем Джи Естейт е член на НСНИ и администратор на лични данни.
**Преди огледа се провежда среща в нашия офис, за да се запознаем с изискванията Ви и за да оформим документи съгласно ЗЗД и ЗМИП.
**По време на огледа се подписва Протокол за оглед.
**Предлагаме Ви юридическо съдействие през целия процес на покупката,
**Лицензиран кредитен консултант ще Ви съдейства при банково кредитиране.
ID: 145986119
Контакт с продавача
xxx xxx xxx
Добавена 16 януари 2026 г.
Продажба на 2-стаен в гр. Поморие - 83,42m².
244733.01 лв. / 125130 €
Потребител
Локация
гр. Поморие
Област Бургас