Частна
Цена на кв.м: 0
Брой етажи на сградата: 3
Квадратура: 338 кв.м
Квадратура на двора: 250 кв.м
Година на строителство: 2026 г.
Строителство: Тухла
Отопление: Термопомпа
Състояние на сградата: В строеж
Особености: СОТ, гараж, охрана, паркинг, видеонаблюдение, затворен комплекс
Описание
Продавам КЪЩИ в затворен к-с, град София, в.з.Горна баня
ОТ СТРОИТЕЛ/СОБСТВЕНИК !!!
608 400 EUR/ 1 189 927 лв.
(1 800 EUR/ 3 520 лв./m2)
Цената е с ДДС (Гъвкава схема на плащане)
Площ: 338 m2 Двор: 250-290 m2 Етажи: 3
Строителство: Тухла,
Експлоатация: Акт 15 до края на 2025 г., Акт 16 Март/Април 2026 г.
Описание на имота:
ВИСОК КЛАС МОДЕРНО СТРОИТЕЛСТВО!!! ЧИСТ ВЪЗДУХ И ГЛЕДКИ КЪМ ВИТОША!!! СОБСТВЕН ОБОСОБЕН ДВОР!!! ПРОСТОРНИ И СВЕТЛИ ПОМЕЩЕНИЯ!!! ПАНОРАМНА ТЕРАСА!!!
Всяка от къщите разполага със собствен двор с площ от 250 до 290 кв.м и е решена на три надземни етажа и едно подземно ниво, осигуряващо индивидуално паркиране за два автомобила. Разположението на жилищните и подземното ниво е следното:
На ниво (-1) са разположени двоен гараж, склад, котелно помещение, мокро помещение/перално, дрешник/килер, WC, с 67 кв.м.,
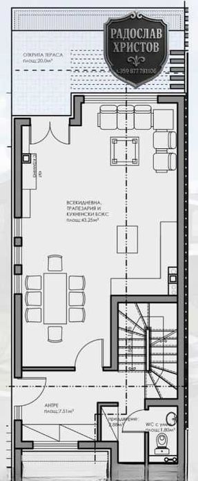
Първи (партерен) етаж : входно антре, санитарно помещение, WC, просторна всекидневна с кухненски бокс, която открива достъп до слънчева веранда тип английски двор, с 56 кв.м., открита тераса от 20 кв.м.
Втори етаж се състои от: три спални, като: спалня 1 (мастър бедрум) е с площ от 18 кв.м и собствен дрешник; спалня 2 и спалня 3 всяка с площ от 15 кв.м., дрешник (складово помещение), две бани с WC и две тераси с 7 кв.м.,
Трети етаж: входно антре, кабинет (спалня),(лятна кухня), баня с WC и просторна бонус тераса с панорамна гледка, изключително подходяща за лятна кухня или зимна градина, с 19 кв.м. и тераса от 22 кв.м.
Проектът включва девет двуфамилни къщи, в затворен комплекс, Всяка къща е разделена на две идентични части с РЗП от по 338 кв.м. и прилежащи дворове с площ от 250 до 290 кв.м.
В проекта за използвани само материали от най-висок клас, което гарантира дълготрайност, стил и висока енергийна ефективност. В къщите ще има вградено подово отопление, собствена пречиствателна станция и термо помпа. Облицовката е от високо качествен мрамор. Къщите се издават с Акт 16 по БДС. Строителят предлага довършителни ремонти на преференциални цени и с материали по желание на клиента.
За огледи и допълнителна информация Радослав Христов- 08*******06
ОТ СТРОИТЕЛ/СОБСТВЕНИК !!!
608 400 EUR/ 1 189 927 лв.
(1 800 EUR/ 3 520 лв./m2)
Цената е с ДДС (Гъвкава схема на плащане)
Площ: 338 m2 Двор: 250-290 m2 Етажи: 3
Строителство: Тухла,
Експлоатация: Акт 15 до края на 2025 г., Акт 16 Март/Април 2026 г.
Описание на имота:
ВИСОК КЛАС МОДЕРНО СТРОИТЕЛСТВО!!! ЧИСТ ВЪЗДУХ И ГЛЕДКИ КЪМ ВИТОША!!! СОБСТВЕН ОБОСОБЕН ДВОР!!! ПРОСТОРНИ И СВЕТЛИ ПОМЕЩЕНИЯ!!! ПАНОРАМНА ТЕРАСА!!!
Всяка от къщите разполага със собствен двор с площ от 250 до 290 кв.м и е решена на три надземни етажа и едно подземно ниво, осигуряващо индивидуално паркиране за два автомобила. Разположението на жилищните и подземното ниво е следното:
На ниво (-1) са разположени двоен гараж, склад, котелно помещение, мокро помещение/перално, дрешник/килер, WC, с 67 кв.м.,
Първи (партерен) етаж : входно антре, санитарно помещение, WC, просторна всекидневна с кухненски бокс, която открива достъп до слънчева веранда тип английски двор, с 56 кв.м., открита тераса от 20 кв.м.
Втори етаж се състои от: три спални, като: спалня 1 (мастър бедрум) е с площ от 18 кв.м и собствен дрешник; спалня 2 и спалня 3 всяка с площ от 15 кв.м., дрешник (складово помещение), две бани с WC и две тераси с 7 кв.м.,
Трети етаж: входно антре, кабинет (спалня),(лятна кухня), баня с WC и просторна бонус тераса с панорамна гледка, изключително подходяща за лятна кухня или зимна градина, с 19 кв.м. и тераса от 22 кв.м.
Проектът включва девет двуфамилни къщи, в затворен комплекс, Всяка къща е разделена на две идентични части с РЗП от по 338 кв.м. и прилежащи дворове с площ от 250 до 290 кв.м.
В проекта за използвани само материали от най-висок клас, което гарантира дълготрайност, стил и висока енергийна ефективност. В къщите ще има вградено подово отопление, собствена пречиствателна станция и термо помпа. Облицовката е от високо качествен мрамор. Къщите се издават с Акт 16 по БДС. Строителят предлага довършителни ремонти на преференциални цени и с материали по желание на клиента.
За огледи и допълнителна информация Радослав Христов- 08*******06
ID: 146228431
Контакт с продавача
xxx xxx xxx
Добавена 25 ноември 2025 г.
Продавам КЪЩИ в затворен к-с, град София, в.з.Горна баня
1 лв.
Потребител
Локация
гр. София, Красна поляна 1
Област София-град