Частна
Цена на кв.м: 1941.18
Брой етажи на сградата: 2
Квадратура: 170 кв.м
Квадратура на двора: 308 кв.м
Година на строителство: 2026 г.
Строителство: ЕПК
Отопление: Локално
Състояние на сградата: В строеж
Особености: паркинг
Описание
Продавам две къщи близнак с площ от по 170 кв.м, находящи се в с. Пролеша.
Къщите се предлагат на шпакловка и замазка с изградени ВиК и електро инсталации.
Етап на изграждане преди акт 14
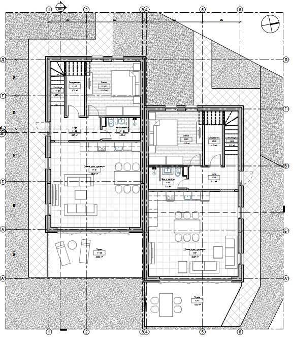
Всяка от къщите предлага следното разпределение:
- първи етаж: входно антрета, хол с кухненски бокс и трапезария, баня с тоалетна, спалня/офис, сервизно помещение и веранда пред хола;
- втори етаж: родителска спалня с дрешник и собствена баня с тоалетна, втора спалня с баня с тоалетна.
Разполага с общ двор с площ от 616 кв.м. - по 308кв.м. за всяка.
Всяка една от къщите ще има по две парко места и изградено осветление по фасадите.
Имотът има ТОК и централен водопровод, като са предвидени две пречиствателни станции(по 1 за всяка къща), има изграден път за достъп и дренаж за дъждовни води.
Районът е един от най-бързо развиващите се и привлекателни за хората, които искат да живеят в близост до природата и на 10 мин. с кола до спирка Сливница на столичното метро.
В селото има всичко необходимо за удобствата на модерния живот, съчетано с чист въздух, спокойна и зелена среда. До София може да се пътува и с обществен транспорт.
Имота е разположен е на тихо място със страхотен изглед към планините Витоша, Стара планита и Люлин планина, което осигурява спокойствие и уют за онези, търсещи отмора от модерния начин на живот.
Обявата е частна.
Къщите се предлагат на шпакловка и замазка с изградени ВиК и електро инсталации.
Етап на изграждане преди акт 14
Всяка от къщите предлага следното разпределение:
- първи етаж: входно антрета, хол с кухненски бокс и трапезария, баня с тоалетна, спалня/офис, сервизно помещение и веранда пред хола;
- втори етаж: родителска спалня с дрешник и собствена баня с тоалетна, втора спалня с баня с тоалетна.
Разполага с общ двор с площ от 616 кв.м. - по 308кв.м. за всяка.
Всяка една от къщите ще има по две парко места и изградено осветление по фасадите.
Имотът има ТОК и централен водопровод, като са предвидени две пречиствателни станции(по 1 за всяка къща), има изграден път за достъп и дренаж за дъждовни води.
Районът е един от най-бързо развиващите се и привлекателни за хората, които искат да живеят в близост до природата и на 10 мин. с кола до спирка Сливница на столичното метро.
В селото има всичко необходимо за удобствата на модерния живот, съчетано с чист въздух, спокойна и зелена среда. До София може да се пътува и с обществен транспорт.
Имота е разположен е на тихо място със страхотен изглед към планините Витоша, Стара планита и Люлин планина, което осигурява спокойствие и уют за онези, търсещи отмора от модерния начин на живот.
Обявата е частна.
ID: 147304338
Контакт с продавача
xxx xxx xxx
Добавена 12 март 2026 г.
Продавам КЪЩА в София, с. Пролеша, 330 000 € - 170 кв.м
645423.90 лв. / 330000 €
Потребител
Локация
с. Пролеша
Област София-област