Бизнес
Държава: Гърция
Описание
Продава парцел на ТОП локация с площ 300 м2 в регулация в Паралия Врасна
Намира се на 500 м от морето и 500 м от Лидъла, близо до светофара на главния път от Лидъла към плажа в курортно селище Паралия Врасна, Агиос Георгиос, Северна Гърция.
Парцелът е в регулация и е с площ 300 м2. Коефициентът на интензивност е 0,28, т.е. може да се застрои около 84 м2, като в тази площ не се включват площите на таванските помещения и терасите. Имотът е ситуиран в район с къщи за целогодишно обитаване, хотели, вили и къщи за гости.
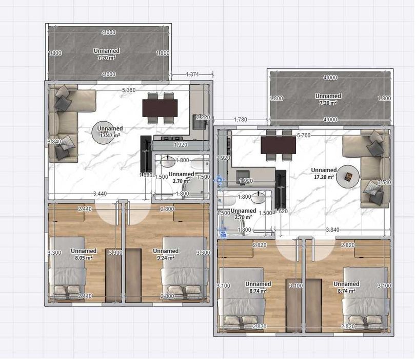
Приложени са снимки на разработки за строителство на 2 малки смостоятелни къщи.
Селището е с добра локация, намира се само на 300 км от София в Северна Гърция, на 80 км от град Солун, Кавала, Серес, Света Гора, 70 км от град Драма и Филипи, 60 км от Стагира, пещера Алистрати, 35 км от минералните извори на Аполония, 30 км от Амфиполи. Достъпът до градовете Солун, Кавала, Серес и Драма е подсигурен с автобуси през около час. Бърз и удобен достъп до тези градове има и чрез автомагистрала Егнатия одос. Кварталът е с добре уредена инфраструктура. В района има банки, полиция, училища, поща, супермаркети, много ресторанти, рибни таверни, заведения за развлечение и др.
Мекият средиземноморски климат е идеално съчетан с прохладността от планината в съседство. Това гарантира слънчевата прегръдка на туристите на плажа през деня и освежаващият полъх на планинският вятър вечер. Населеното място е характерно със своята тишина и спокойствие, както и с успокояващите зелени пейзажи и живописни гледки на морето и планината. Отличителен белег на околността са маслиновите горички, които радват окото със своите разлистени корони.
Плажната ивица на Паралия Врасна се отличава с уникална красота и кристално чиста вода.
Код на обявата #S1
ПЕРФЕКТНА ЛОКАЦИЯ!
GSM: 08******88
ЦЕНА 59 900 ЕВРО
Намира се на 500 м от морето и 500 м от Лидъла, близо до светофара на главния път от Лидъла към плажа в курортно селище Паралия Врасна, Агиос Георгиос, Северна Гърция.
Парцелът е в регулация и е с площ 300 м2. Коефициентът на интензивност е 0,28, т.е. може да се застрои около 84 м2, като в тази площ не се включват площите на таванските помещения и терасите. Имотът е ситуиран в район с къщи за целогодишно обитаване, хотели, вили и къщи за гости.
Приложени са снимки на разработки за строителство на 2 малки смостоятелни къщи.
Селището е с добра локация, намира се само на 300 км от София в Северна Гърция, на 80 км от град Солун, Кавала, Серес, Света Гора, 70 км от град Драма и Филипи, 60 км от Стагира, пещера Алистрати, 35 км от минералните извори на Аполония, 30 км от Амфиполи. Достъпът до градовете Солун, Кавала, Серес и Драма е подсигурен с автобуси през около час. Бърз и удобен достъп до тези градове има и чрез автомагистрала Егнатия одос. Кварталът е с добре уредена инфраструктура. В района има банки, полиция, училища, поща, супермаркети, много ресторанти, рибни таверни, заведения за развлечение и др.
Мекият средиземноморски климат е идеално съчетан с прохладността от планината в съседство. Това гарантира слънчевата прегръдка на туристите на плажа през деня и освежаващият полъх на планинският вятър вечер. Населеното място е характерно със своята тишина и спокойствие, както и с успокояващите зелени пейзажи и живописни гледки на морето и планината. Отличителен белег на околността са маслиновите горички, които радват окото със своите разлистени корони.
Плажната ивица на Паралия Врасна се отличава с уникална красота и кристално чиста вода.
Код на обявата #S1
ПЕРФЕКТНА ЛОКАЦИЯ!
GSM: 08******88
ЦЕНА 59 900 ЕВРО
ID: 141768544
Контакт с продавача
xxx xxx xxx

