Бизнес
Цена на кв.м: 1440
Тип апартамент: 3 - стаен
Квадратура: 200 кв.м
Година на строителство: 2024 г.
Строителство: Тухла
Етаж: 6-ти
Брой етажи на сградата: 6
Последен етаж
Отопление: Електричество
Обзавеждане: Необзаведен
Състояние на сградата: Завършена
Преход: Без преход
Особености: асансьор
Описание
Компания `Х` представя на Вашето внимание тристаен апартамент в Христо Смирненски!
МЕСТОПОЛОЖЕНИЕ:Квартал Христо Смирненски е един от най-модерните и динамично развиващи се райони на Пловдив, разположен в западната част на града. Той се отличава с отлично изградена инфраструктура, ново строителство и удобен достъп до центъра и основните пътни артерии. Районът предлага простор, множество зелени площи и приятна жилищна среда, съчетаваща комфорт и спокойствие. Благодарение на съвременната си визия и доброто местоположение, Христо Смирненски е сред най-предпочитаните квартали за живеене и инвестиции в града.
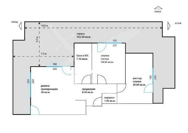
РАЗПРЕДЕЛЕНИЕ: Разполага с площ 200 кв.м. разгърната в следното функционално разпределение: голяма мастър спалня,втора просторна стая подходяща за детска, кабинет или гостна,светла и просторна всекидневна с директен излаз към терасата,обширна баня и мокро помещение/килер,удобно антре,огромна панорамна тераса, към имота се предлага изба.
СЪСТОЯНИЕ:Жилището се предлага необзаведено. Предоставя възможност на бъдещите собственици да изградят новият си дом с личен вкус и стил.Частично поставена подова настилка и цялостно поставени тавани!
Заповядайте да Ви го покажем. Използвайки нашите услуги Вие ще превърнете закупуването на новия си дом в едно приятно изживяване, ще получите персонален консултант, съдействие при кандидатстване за кредит от всички банки в България, интериорни дизайнери и екип, който да се погрижи за нужните документи по Вашата сделка. На Ваше разположение сме всеки ден, от понеделник до неделя от 09:00 до 20:00ч. Възползвайте се от безплатна консултация в наш офис, където ще ви спестим време и ще ви запознаем с всички актуални имоти в България, отговарящи на Вашето търсене. Свържете се с нас на 08******90 или на 08******90 и цитирайте кода към имота: 92038
МЕСТОПОЛОЖЕНИЕ:Квартал Христо Смирненски е един от най-модерните и динамично развиващи се райони на Пловдив, разположен в западната част на града. Той се отличава с отлично изградена инфраструктура, ново строителство и удобен достъп до центъра и основните пътни артерии. Районът предлага простор, множество зелени площи и приятна жилищна среда, съчетаваща комфорт и спокойствие. Благодарение на съвременната си визия и доброто местоположение, Христо Смирненски е сред най-предпочитаните квартали за живеене и инвестиции в града.
РАЗПРЕДЕЛЕНИЕ: Разполага с площ 200 кв.м. разгърната в следното функционално разпределение: голяма мастър спалня,втора просторна стая подходяща за детска, кабинет или гостна,светла и просторна всекидневна с директен излаз към терасата,обширна баня и мокро помещение/килер,удобно антре,огромна панорамна тераса, към имота се предлага изба.
СЪСТОЯНИЕ:Жилището се предлага необзаведено. Предоставя възможност на бъдещите собственици да изградят новият си дом с личен вкус и стил.Частично поставена подова настилка и цялостно поставени тавани!
Заповядайте да Ви го покажем. Използвайки нашите услуги Вие ще превърнете закупуването на новия си дом в едно приятно изживяване, ще получите персонален консултант, съдействие при кандидатстване за кредит от всички банки в България, интериорни дизайнери и екип, който да се погрижи за нужните документи по Вашата сделка. На Ваше разположение сме всеки ден, от понеделник до неделя от 09:00 до 20:00ч. Възползвайте се от безплатна консултация в наш офис, където ще ви спестим време и ще ви запознаем с всички актуални имоти в България, отговарящи на Вашето търсене. Свържете се с нас на 08******90 или на 08******90 и цитирайте кода към имота: 92038
ID: 147284160
Контакт с продавача
xxx xxx xxx
