Бизнес
Цена на кв.м: 239.60
Квадратура: 250 кв.м
Регулация: В регулация
Вода: С вода
Ток: С ток
Особености: жил.строителство
Описание
Продава се парцел в с. Косово, общ. Асеновград
Прекрасен имот с площ 250 кв.м, разположен в началото на село Косово – село с уникална възрожденска атмосфера, архитектурен полу-резерват и множество обекти от историческо значение.
Парцелът е достъпен по път, граничи с поточе и съседна къща.
Към имота има:
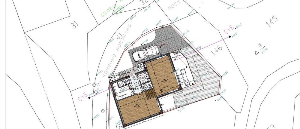
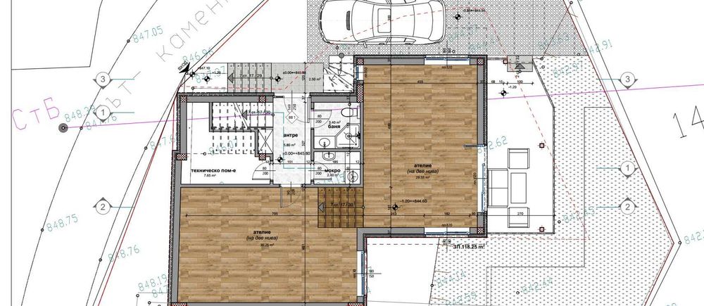
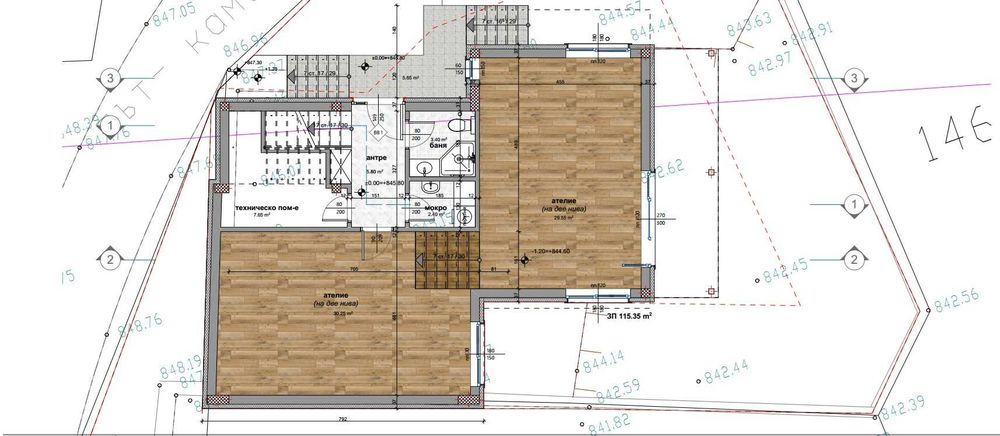
Изготвен проект за еднофамилна къща с гараж
Открити партиди за ток и вода
Близост до исторически обект, което го прави отлична инвестиция
Теренът е подходящ както за жилищно строителство, така и за ваканционен имот или къща за гости.
Прекрасен имот с площ 250 кв.м, разположен в началото на село Косово – село с уникална възрожденска атмосфера, архитектурен полу-резерват и множество обекти от историческо значение.
Парцелът е достъпен по път, граничи с поточе и съседна къща.
Към имота има:
Изготвен проект за еднофамилна къща с гараж
Открити партиди за ток и вода
Близост до исторически обект, което го прави отлична инвестиция
Теренът е подходящ както за жилищно строителство, така и за ваканционен имот или къща за гости.
ID: 146025197
Контакт с продавача
xxx xxx xxx
Добавена 15 декември 2025 г.
Продава се парцел в село Косово
59900 лв. / 30626.38 €
Потребител
Локация
с. Косово
Област Пловдив
