Бизнес
Цена на кв.м: 2099.24
Брой етажи на сградата: 2
Квадратура: 524 кв.м
Квадратура на двора: 1472 кв.м
Година на строителство: 2025 г.
Строителство: Тухла
Отопление: Термопомпа
Състояние на сградата: В строеж
Особености: гараж, затворен комплекс
Описание
Eксклузивно предложение - Вашият нов дом в затворен комплекс до Пловдив!
Представяме Ви луксозна двуетажна къща в затворен комплекс Терес с. Радиново, само на 6 км от Пловдив. Дом, който съчетава удобство, спокойствие, елегантна архитектура и първокласни материали.
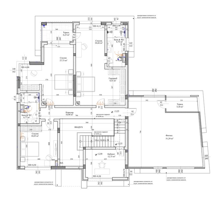
а. РЗП: 524 кв.м.
b. Парцел: 1472 кв.м.
c. Цена: 1 100 000 евро.
А. Основни акценти:
4 просторни спални и 4 бани комфорт за цялото семейство
Офис кабинет идеален за работа от вкъщи
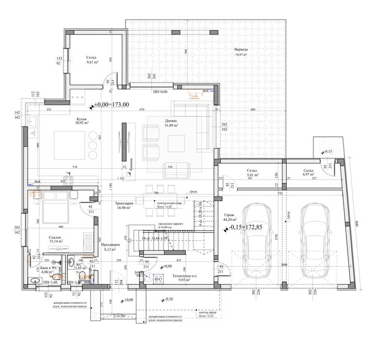
Великолепен хол с директен излаз към верандата и двора
Двоен гараж (46,24 кв.м.) с топла връзка към къщата и изводи за електромобил
Многофункционално помещение над гаража (64 кв.м.) с панорамна гледка перфектно за фитнес, релакс зона или студио
Килери, сервизни помещения и склад максимално удобство за съхранение
Б. Лукс и удобства:
Просторна веранда с гледка към парк и басейн
Частен външен басейн 15х6 м + джакузи завършен до края на ноември
Подово отопление и конвектори, захранвани от високоефективна термопомпа
Вертикална планировка на двора ограда, зелени площи и настилка от бетонови павета
Регулиран достъп и охрана в комплекса
Детска площадка, тенис на маса и целогодишна поддръжка
В. Защо да изберете този дом?
Тук ще намерите:
1. Простор, светлина и модерен дизайн
2. Уединение и сигурност в затворен комплекс
3. Баланс между спокойствие и близост до града
4. Възможност да видите изцяло завършена и обзаведена мострена къща в комплекса
Срок на завършване:
29 ноември. Къщата се предава до етап шпакловка и замазка, с напълно готов басейн и озеленен двор.
- Представете си как се наслаждавате на утрото с кафе на верандата, а децата играят в двора или в парка на комплекса. Вечерите край басейна, работните срещи в собствения Ви офис и уюта на просторния хол ще превърнат тази къща в мечтания дом за Вас и Вашето семейство.
- Свържете се с нас още днес, за да запазите лична среща и оглед на мострената къща!
Представяме Ви луксозна двуетажна къща в затворен комплекс Терес с. Радиново, само на 6 км от Пловдив. Дом, който съчетава удобство, спокойствие, елегантна архитектура и първокласни материали.
а. РЗП: 524 кв.м.
b. Парцел: 1472 кв.м.
c. Цена: 1 100 000 евро.
А. Основни акценти:
4 просторни спални и 4 бани комфорт за цялото семейство
Офис кабинет идеален за работа от вкъщи
Великолепен хол с директен излаз към верандата и двора
Двоен гараж (46,24 кв.м.) с топла връзка към къщата и изводи за електромобил
Многофункционално помещение над гаража (64 кв.м.) с панорамна гледка перфектно за фитнес, релакс зона или студио
Килери, сервизни помещения и склад максимално удобство за съхранение
Б. Лукс и удобства:
Просторна веранда с гледка към парк и басейн
Частен външен басейн 15х6 м + джакузи завършен до края на ноември
Подово отопление и конвектори, захранвани от високоефективна термопомпа
Вертикална планировка на двора ограда, зелени площи и настилка от бетонови павета
Регулиран достъп и охрана в комплекса
Детска площадка, тенис на маса и целогодишна поддръжка
В. Защо да изберете този дом?
Тук ще намерите:
1. Простор, светлина и модерен дизайн
2. Уединение и сигурност в затворен комплекс
3. Баланс между спокойствие и близост до града
4. Възможност да видите изцяло завършена и обзаведена мострена къща в комплекса
Срок на завършване:
29 ноември. Къщата се предава до етап шпакловка и замазка, с напълно готов басейн и озеленен двор.
- Представете си как се наслаждавате на утрото с кафе на верандата, а децата играят в двора или в парка на комплекса. Вечерите край басейна, работните срещи в собствения Ви офис и уюта на просторния хол ще превърнат тази къща в мечтания дом за Вас и Вашето семейство.
- Свържете се с нас още днес, за да запазите лична среща и оглед на мострената къща!
ID: 145571639
Контакт с продавача
xxx xxx xxx
Добавена 30 ноември 2025 г.
ПРОДАВА СЕ! Новострояща се луксозна къща близо до Пловдив
2151413 лв. / 1100000 €
Потребител
Локация
с. Радиново
Област Пловдив