Бизнес
Държава: Гърция
Описание
Прекрасна новострояща се къща – мезонет на две нива в Паралия Кердилия
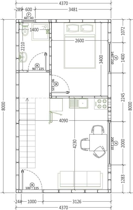
Продават се по отделно и заедно 4 новостроящи се къщи на по 2 нива с обща площ на всяка от тях 52 м2 и дворно място прилежащо към всека къща около 20 м2. Къщите се намират в един комплекс с обща площ 360 м2.
Локализирани са само на около 300 м от морето, до плаж Брацаки, в комплекс Соди, курортно селище Неа Кердилия, Северна Гърция.
Разпределение:
Второ ниво: спална стая, баня с тоалетна
Първо ниво: всекидневна с кухня, спалня, баня с тоалетна, тераса
Пусковия срок юни - юли 1026 г. Цената включва напълно завършени подови настилки и стени, баните с плочки без санитария, изградени системи за вода, ток, канализация, соларен бойлер и бойлер на ток, прозорци - PVC дограма - 5 камерна, външна топлоизолация, врати-вътрешни и външно, ограда.
Селището е с добра локация, намира се само на 300 км от София в Северна Гърция, на 80 км от град Солун, Кавала, Серес, Света Гора, 70 км от град Драма и Филипи, 60 км от Стагира, пещера Алистрати, 35 км от минералните извори на Аполония, 30 км от Амфиполи. Достъпът до градовете Солун, Кавала, Серес и Драма е подсигурен с автобуси през около час. Бърз и удобен достъп до тези градове има и чрез автомагистрала Егнатия одос. Кварталът е с добре уредена инфраструктура. В района има банки, полиция, училища, поща, супермаркети, много ресторанти, рибни таверни, заведения за развлечение и др.
Мекият средиземноморски климат е идеално съчетан с прохладността от планината в съседство. Това гарантира слънчевата прегръдка на туристите на плажа през деня и освежаващият полъх на планинският вятър вечер. Населеното място е характерно със своята тишина и спокойствие, както и с успокояващите зелени пейзажи и живописни гледки на морето и планината. Отличителен белег на околността са маслиновите горички, които радват окото със своите разлистени корони.
В рaйoна имa чаcтни вили и къщи зa гοсти.
Плажната ивица на Паралия Кердилия, плаж Брацаки се отличава с уникална красота и кристално чиста вода.
Код на обявата N001
ОТЛИЧНА ИНВЕСТИЦИЯ!
ПОДХОДАЩА ЗА КРАТКОСРОЧНО ОТДАВАНЕ ПОД НАЕМ ЗА ВЪЗВРЪЩАНЕ НА ИНВЕСТИЦИЯТА!
GSM: 08******88
ЦЕНА 125 000 ЕВРО
Продават се по отделно и заедно 4 новостроящи се къщи на по 2 нива с обща площ на всяка от тях 52 м2 и дворно място прилежащо към всека къща около 20 м2. Къщите се намират в един комплекс с обща площ 360 м2.
Локализирани са само на около 300 м от морето, до плаж Брацаки, в комплекс Соди, курортно селище Неа Кердилия, Северна Гърция.
Разпределение:
Второ ниво: спална стая, баня с тоалетна
Първо ниво: всекидневна с кухня, спалня, баня с тоалетна, тераса
Пусковия срок юни - юли 1026 г. Цената включва напълно завършени подови настилки и стени, баните с плочки без санитария, изградени системи за вода, ток, канализация, соларен бойлер и бойлер на ток, прозорци - PVC дограма - 5 камерна, външна топлоизолация, врати-вътрешни и външно, ограда.
Селището е с добра локация, намира се само на 300 км от София в Северна Гърция, на 80 км от град Солун, Кавала, Серес, Света Гора, 70 км от град Драма и Филипи, 60 км от Стагира, пещера Алистрати, 35 км от минералните извори на Аполония, 30 км от Амфиполи. Достъпът до градовете Солун, Кавала, Серес и Драма е подсигурен с автобуси през около час. Бърз и удобен достъп до тези градове има и чрез автомагистрала Егнатия одос. Кварталът е с добре уредена инфраструктура. В района има банки, полиция, училища, поща, супермаркети, много ресторанти, рибни таверни, заведения за развлечение и др.
Мекият средиземноморски климат е идеално съчетан с прохладността от планината в съседство. Това гарантира слънчевата прегръдка на туристите на плажа през деня и освежаващият полъх на планинският вятър вечер. Населеното място е характерно със своята тишина и спокойствие, както и с успокояващите зелени пейзажи и живописни гледки на морето и планината. Отличителен белег на околността са маслиновите горички, които радват окото със своите разлистени корони.
В рaйoна имa чаcтни вили и къщи зa гοсти.
Плажната ивица на Паралия Кердилия, плаж Брацаки се отличава с уникална красота и кристално чиста вода.
Код на обявата N001
ОТЛИЧНА ИНВЕСТИЦИЯ!
ПОДХОДАЩА ЗА КРАТКОСРОЧНО ОТДАВАНЕ ПОД НАЕМ ЗА ВЪЗВРЪЩАНЕ НА ИНВЕСТИЦИЯТА!
GSM: 08******88
ЦЕНА 125 000 ЕВРО
ID: 147385236
Контакт с продавача
xxx xxx xxx

