Бизнес
Цена на кв.м: 2846.15
Местоположение: в кооперация
Квадратура: 195 кв.м
Година на строителство: 2020 г.
Строителство: Тухла
Брой етажи на сградата: 5
Отопление: Електричество
Особености: действащ бизнес, паркинг, видеонаблюдение
Описание
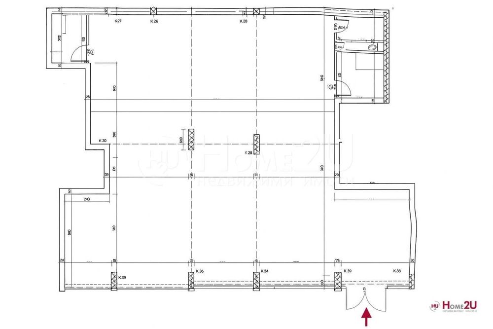
ПРОДАВА СЕ МАГАЗИН 195 кв.м | С НАЕМАТЕЛ | ОЖИВЕНА ЛОКАЦИЯ | ПЛОВДИВ
Предлагаме за продажба просторен търговски обект с площ от 195 кв.м, разположен на комуникативно и оживено място с постоянен човекопоток и напълно изградена инфраструктура.
Имотът представлява отлична възможност както за инвестиция с доходност, така и за развитие на собствен бизнес.
Разпределение и характеристики:
- 195 кв.м обща площ
- Два самостоятелни входа
- Два санитарни възела
- Два склада (включени в квадратурата)
- Под висококачествен гранитогрес
- Стени боядисани
- Изградена и работеща климатизация с 4 броя вградени вътрешни тела
- Санитарните помещения са напълно завършени бойлер, душ и моноблок
- Готов за незабавно ползване
- С текущ наемател
- Продава се директно от собственик юридическо лице с издаване на фактура
Предимства:
Отлична видимост и лесен достъп
Оживен район с голям човекопоток
Развита инфраструктура
Подходящ за различни видове търговска и обслужваща дейност
Допълнително:
Към имота се предлагат 2 паркоместа, всяко на цена от 17 000 евро.
Подходящ за магазин, шоурум, офис, медицински или козметичен център, представителство, студио за услуги и др.
За повече информация и оглед свържете се с нас.
Предлагаме за продажба просторен търговски обект с площ от 195 кв.м, разположен на комуникативно и оживено място с постоянен човекопоток и напълно изградена инфраструктура.
Имотът представлява отлична възможност както за инвестиция с доходност, така и за развитие на собствен бизнес.
Разпределение и характеристики:
- 195 кв.м обща площ
- Два самостоятелни входа
- Два санитарни възела
- Два склада (включени в квадратурата)
- Под висококачествен гранитогрес
- Стени боядисани
- Изградена и работеща климатизация с 4 броя вградени вътрешни тела
- Санитарните помещения са напълно завършени бойлер, душ и моноблок
- Готов за незабавно ползване
- С текущ наемател
- Продава се директно от собственик юридическо лице с издаване на фактура
Предимства:
Отлична видимост и лесен достъп
Оживен район с голям човекопоток
Развита инфраструктура
Подходящ за различни видове търговска и обслужваща дейност
Допълнително:
Към имота се предлагат 2 паркоместа, всяко на цена от 17 000 евро.
Подходящ за магазин, шоурум, офис, медицински или козметичен център, представителство, студио за услуги и др.
За повече информация и оглед свържете се с нас.
ID: 147319455
Контакт с продавача
xxx xxx xxx
Добавена 13 март 2026 г.
Продава магазин, Пловдив, Христо Смирненски
1085485.65 лв. / 555000 €
Потребител
Локация
гр. Пловдив, Христо Смирненски
Област Пловдив