Навигиране до основното съдържание
Чат

Нотификации

Добави обява
Продава къща, гр.Бургас, кв.Ветрен
Продава къща, гр.Бургас, кв.Ветрен
Продава къща, гр.Бургас, кв.Ветрен
Продава къща, гр.Бургас, кв.Ветрен
Продава къща, гр.Бургас, кв.Ветрен
ПромотирайОбнови

Бизнес

Цена на кв.м: 14088.40

Брой етажи на сградата: 3

Квадратура: 181 кв.м

Квадратура на двора: 215 кв.м

Година на строителство: 2020 г.

Строителство: Тухла

Отопление: Електричество

Състояние на сградата: В строеж

Особености: канализация

Описание

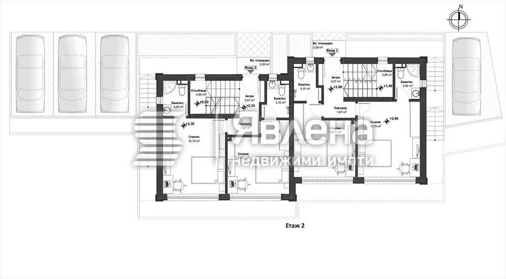
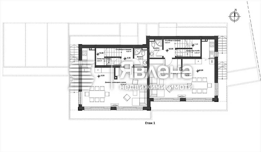
Предлагаме за продажба триетажна луксозна къща, с РЗП 180 кв.м и самостоятелен двор от 215 кв.м, разположена в един от най-предпочитаните квартали на гр. Бургас — кв. Ветрен. Кварталът се отличава с тиха и спокойна атмосфера, чист въздух и отлична инфраструктура, като същевременно предлага бърз достъп до центъра на Бургас и основните пътни артерии. В непосредствена близост се намират Минералните бани на Ветрен, известни със своите лечебни свойства, училище, детска градина, лечебно заведение, както и хипермаркети и търговски обекти. Разпределение: Първи етаж (60,24 м²): Просторна дневна с трапезария и кухня с излаз към голяма веранда, баня с тоалетна и складово помещение. Верандата предлага уютно място за отдих, семейни вечери и почивка на открито. Втори етаж (60,24 м²): Две просторни спални, всяка със собствена баня и тоалетна, осигуряващи максимален комфорт и независимост. Трети етаж (60,54 м²): Самостоятелно студио (32 кв.м) с баня и тоалетна, както и просторна панорамна тераса (9 кв.м) с чудесна гледка към околността — перфектно място за релакс. Допълнителни предимства: Модерна архитектура и висококачествени материали Просторен и функционален интериор Озеленен самостоятелен двор с възможност за басейн или барбекю зона Осигурени паркоместа за всяка къща Без посредници – директно от инвеститор, без комисионна! Тази къща съчетава комфорт, стил и природа – идеален избор както за постоянно живеене, така и за ваканционен дом в близост до града и минералните извори на Ветрен. Цена: 255 000 евро Брокер: Камелия Димитрова +35********46, ID 136819
ID: 146062320

Контакт с продавача

Явлена

В OLX от октомври 2018 г.

Последно онлайн днес в 14:25 ч.

xxx xxx xxx

Добавена 11 ноември 2025 г.

Продава къща, гр.Бургас, кв.Ветрен

2550000 €

Потребител

Локация

Location

гр. София, Център

Област София-град

За този потребител

Свали приложението на OLX за твоя телефон!