Частна
Цена на кв.м: 3042.11
Брой етажи на сградата: 1
Квадратура: 95 кв.м
Квадратура на двора: 390 кв.м
Година на строителство: 2025 г.
Строителство: Тухла
Отопление: Електричество
Състояние на сградата: Завършена
Описание
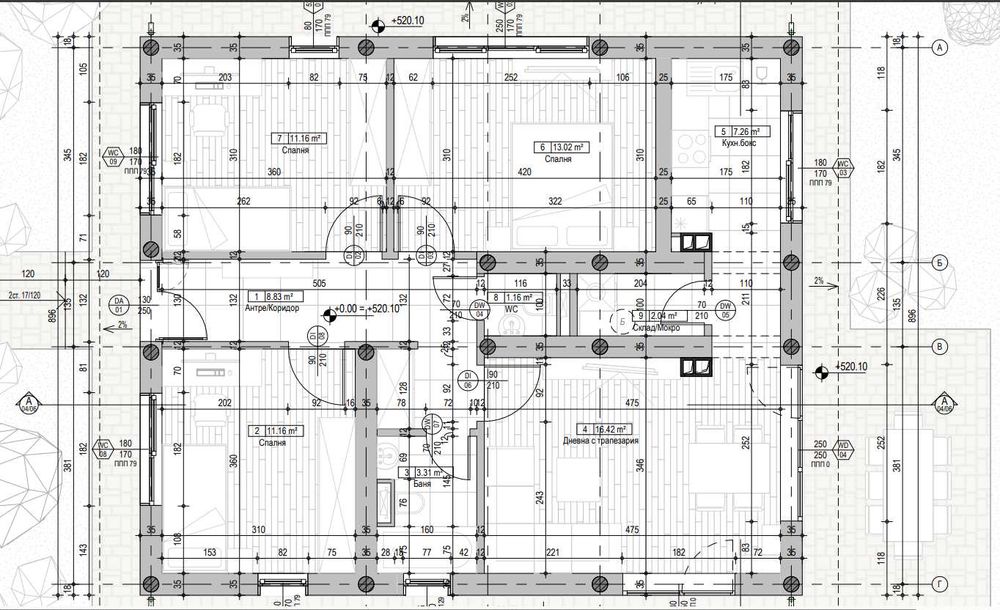
Възможен коментар при реален интерес. 3 спални, всекидневна с кухненски бокс, баня, тоалетна, коридор и техническо помещение.
Конструкция и материали:
Монолитно строителство
Покрив дървена конструкция, обработена с висок клас гръцка боя, дъсчена обшивка, мембрана и керемиди Брамак
Безшевни улуци
Клас Б енергийна ефективност
5-камерна PVC дограма
Силиконова външна мазилка
Интериор и инсталации:
Под замазка и саморазливна замазка във всички помещения
Върху всички стени има гипсокартон с финна шпакловка (готово за боядисване)
Изградени куфари със скрито осветление и положена вата на таваните
Монтирани интериорни врати
Трифазен ток
Окабеляване за СОТ, LAN кабели във всяка стая и заложени гофри за допълнителни комуникации без къртене
ВиК висок клас холандска PVC септична яма, с обслужване веднъж на 2 години при 6 8 души
Допълнителни характеристики:
Озеленен двор с 8 засадени дръвчета
Възможност за изграждане на втори етаж
Един собственик, без тежести
Пълна документация и снимков архив от целия строителен процес
Къщата е с Акт 16, измазана и готова за довършване по вкус на новия собственик.
Конструкция и материали:
Монолитно строителство
Покрив дървена конструкция, обработена с висок клас гръцка боя, дъсчена обшивка, мембрана и керемиди Брамак
Безшевни улуци
Клас Б енергийна ефективност
5-камерна PVC дограма
Силиконова външна мазилка
Интериор и инсталации:
Под замазка и саморазливна замазка във всички помещения
Върху всички стени има гипсокартон с финна шпакловка (готово за боядисване)
Изградени куфари със скрито осветление и положена вата на таваните
Монтирани интериорни врати
Трифазен ток
Окабеляване за СОТ, LAN кабели във всяка стая и заложени гофри за допълнителни комуникации без къртене
ВиК висок клас холандска PVC септична яма, с обслужване веднъж на 2 години при 6 8 души
Допълнителни характеристики:
Озеленен двор с 8 засадени дръвчета
Възможност за изграждане на втори етаж
Един собственик, без тежести
Пълна документация и снимков архив от целия строителен процес
Къщата е с Акт 16, измазана и готова за довършване по вкус на новия собственик.
ID: 145864289
Контакт с продавача
xxx xxx xxx
Добавена 25 октомври 2025 г.
Продава КЪЩА АКТ 16
289000 €
Потребител
Локация
с. Негован
Област София-град