Бизнес
Цена на кв.м: 1301.52
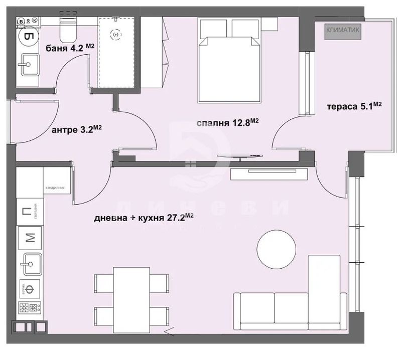
Тип апартамент: 2 - стаен
Квадратура: 66 кв.м
Година на строителство: 2026 г.
Строителство: Тухла
Етаж: 4-ти
Брой етажи на сградата: 7
Последен етаж
Отопление: Електричество
Обзавеждане: Необзаведен
Състояние на сградата: В строеж
Преход: Без преход
Описание
Кантора Диневи представя: ЕКСКЛУЗИВНА оферта за двустаен апартамент в Стара Загора, квартал Самара 3!
Основна информация за имота:
- Вид на имота: Двустаен апартамент, ново строителство
- Дата на построяване: 2026 г.
- Обща площ: 66 кв.м.
- Цена: 85,900 €
Характеристики на имота:
- Брой стаи: 2
- Брой спални: 1
- Брой балкони: 1
- Брой бани: 1
- Асансьор: Да
Локация: Имотът се намира в един от най-спокойните и бързо развиващи се квартали на Стара Загора - Самара 3. Районът предлага удобен достъп до обществен транспорт, множество зелени площи и е познат с добрата си инфраструктура.
Перфектен избор за:
- Инвестиция и живеене: Имотът е отличен избор както за лично ползване, така и за отдаване под наем. Със своята локация и характеристики, той е обещаваща инвестиция.
- Пред акт 14: Апартаментът е в процес на изграждане, пред акт 14, което ви позволява да следите хода на строителство и да планирате бъдещи интериорни решения.
Финансиране: Възможност за кредитиране при атрактивни условия. Достъпни финансови решения, за да осъществите мечтата си за нов дом.
Защо да изберете този имот?
Апартаментът съчетава модерни удобства и отлична локация. Подходящ е за семейства, двойки или за тези, които търсят надеждна инвестиция в недвижими имоти.
Кантора Диневи е тук, за да ви помогне да намерите вашия нов дом! За повече информация: 08*********93
Основна информация за имота:
- Вид на имота: Двустаен апартамент, ново строителство
- Дата на построяване: 2026 г.
- Обща площ: 66 кв.м.
- Цена: 85,900 €
Характеристики на имота:
- Брой стаи: 2
- Брой спални: 1
- Брой балкони: 1
- Брой бани: 1
- Асансьор: Да
Локация: Имотът се намира в един от най-спокойните и бързо развиващи се квартали на Стара Загора - Самара 3. Районът предлага удобен достъп до обществен транспорт, множество зелени площи и е познат с добрата си инфраструктура.
Перфектен избор за:
- Инвестиция и живеене: Имотът е отличен избор както за лично ползване, така и за отдаване под наем. Със своята локация и характеристики, той е обещаваща инвестиция.
- Пред акт 14: Апартаментът е в процес на изграждане, пред акт 14, което ви позволява да следите хода на строителство и да планирате бъдещи интериорни решения.
Финансиране: Възможност за кредитиране при атрактивни условия. Достъпни финансови решения, за да осъществите мечтата си за нов дом.
Защо да изберете този имот?
Апартаментът съчетава модерни удобства и отлична локация. Подходящ е за семейства, двойки или за тези, които търсят надеждна инвестиция в недвижими имоти.
Кантора Диневи е тук, за да ви помогне да намерите вашия нов дом! За повече информация: 08*********93
ID: 144347277
Контакт с продавача
xxx xxx xxx
Добавена Днес в 08:23 ч.
Продава ЕКСКЛУЗИВНО двустаен апартамент
168005.80 лв. / 85900 €
Потребител
Локация
гр. Стара Загора, Самара 3
Област Стара Загора