Бизнес
Цена на кв.м: 2006.56
Тип апартамент: 2 - стаен
Квадратура: 64 кв.м
Година на строителство: 2026 г.
Строителство: Тухла
Етаж: 4-ти
Брой етажи на сградата: 5
Отопление: Електричество
Обзавеждане: Необзаведен
Състояние на сградата: В строеж
Преход: Без преход
Особености: асансьор, гараж, ипотека, паркинг, саниран, видеонаблюдение
Описание
ТУШКИН ИНВЕСТМЕНТ ООД предлага за продажба просторен двустаен апартамент в новострояща се жилищна сграда, находяща се в гр. София, кв. Триъгълника, ул. Хан Кубрат №3.
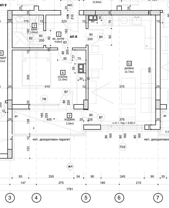
Площ: 64,21м² заедно с общи части, 55,13м² чиста площ, 2,08м² мазе
Етаж: трети над партер
Изложение: юг
Състояние: на шпакловка и замазка
Очакван акт 16: 2026г.
Апартаментът има следното разпределение: Просторна дневна с кухненски бокс и излаз на лоджия, спалня с излаз на лоджия, баня с тоалетна, коридор. Апартаментът е със скосени тавани, както е показано на чертeжа.
Сградата има следното изпълнение:
1. вътрешни стени и тавани на апартаменти - гипсова машинна мазилка „RÖFIX" или друга с подобно качество
2. Подове на апартамент - циментова замазка
3. Бани и тоалетни:
• Под - циментова замазка;
• Стени варо-циментова мазилка, „RÖFIX" или друга с подобно
качество;
• таван - варо-циментова мазилка, „RÖFIX" или друга с подобно качество
4. врати:
• входна врата на сградата - метална с ел. контрол на достъпа
• входна врата на апартаменти - метална, блиндирана
5. Балкони, тераси - под - мразоустойчиви гранитогресни плочи, парапет - по проект:
6. Външна дограма - PVC със стъклопакет, 5 камерна
7. Ел. инсталация - завършена, окомплектована - разделена по кръгове, със съответните силови проводници. 3ахранващ кабел, осигуряващ и мощност за монтаж на климатична инсталация, монтаж на ел. табла. тип "апартаментен" с автоматични предпазители, дефектно-токови защити, монтаж на ключове и контакти. Монтаж на фасонки и ел.крушки по БДС;
8. Звънчева - домофонна инсталация - завършена, монтаж на домофон;
9. Телевизионна и телефонна инсталации - с телефонен и телевизионен излаз в дневните, интернет окабеляване;
10. ВиК - изпълнени съгласно проекта
11. Фасади - изцяло завършени по проект
12. Други общи части - изцяло завършени, стълбища, площадки, коридори и фоайета - по проект с качествени материали
13. Асансьор с напълно автоматични врати
14. вертикална планировка - изцяло завършена съгласно проекта
15. Външно захранване на сградата с ел. енергия, вода
Схема на плащане:
- при подписване на предварителен договор – 30%
- при издаване на удостоверение по чл. 181 от ЗУТ – 35%
- при издаване на Акт 15 – 25%
- при издаване на разрешение за ползване – 10%
Към апартаментът може да се закупи гараж или паркомясто.
Площ: 64,21м² заедно с общи части, 55,13м² чиста площ, 2,08м² мазе
Етаж: трети над партер
Изложение: юг
Състояние: на шпакловка и замазка
Очакван акт 16: 2026г.
Апартаментът има следното разпределение: Просторна дневна с кухненски бокс и излаз на лоджия, спалня с излаз на лоджия, баня с тоалетна, коридор. Апартаментът е със скосени тавани, както е показано на чертeжа.
Сградата има следното изпълнение:
1. вътрешни стени и тавани на апартаменти - гипсова машинна мазилка „RÖFIX" или друга с подобно качество
2. Подове на апартамент - циментова замазка
3. Бани и тоалетни:
• Под - циментова замазка;
• Стени варо-циментова мазилка, „RÖFIX" или друга с подобно
качество;
• таван - варо-циментова мазилка, „RÖFIX" или друга с подобно качество
4. врати:
• входна врата на сградата - метална с ел. контрол на достъпа
• входна врата на апартаменти - метална, блиндирана
5. Балкони, тераси - под - мразоустойчиви гранитогресни плочи, парапет - по проект:
6. Външна дограма - PVC със стъклопакет, 5 камерна
7. Ел. инсталация - завършена, окомплектована - разделена по кръгове, със съответните силови проводници. 3ахранващ кабел, осигуряващ и мощност за монтаж на климатична инсталация, монтаж на ел. табла. тип "апартаментен" с автоматични предпазители, дефектно-токови защити, монтаж на ключове и контакти. Монтаж на фасонки и ел.крушки по БДС;
8. Звънчева - домофонна инсталация - завършена, монтаж на домофон;
9. Телевизионна и телефонна инсталации - с телефонен и телевизионен излаз в дневните, интернет окабеляване;
10. ВиК - изпълнени съгласно проекта
11. Фасади - изцяло завършени по проект
12. Други общи части - изцяло завършени, стълбища, площадки, коридори и фоайета - по проект с качествени материали
13. Асансьор с напълно автоматични врати
14. вертикална планировка - изцяло завършена съгласно проекта
15. Външно захранване на сградата с ел. енергия, вода
Схема на плащане:
- при подписване на предварителен договор – 30%
- при издаване на удостоверение по чл. 181 от ЗУТ – 35%
- при издаване на Акт 15 – 25%
- при издаване на разрешение за ползване – 10%
Към апартаментът може да се закупи гараж или паркомясто.
ID: 145842746
Контакт с продавача
xxx xxx xxx
Добавена 08 декември 2025 г.
Продава двустаен апартамент с площ 64,21м², лично от инвеститор
251167.69 лв. / 128420 €
Потребител
Локация
гр. София, Триъгълника
Област София-град