Навигиране до основното съдържание
Чат

Нотификации

Добави обява
Продава двустаен, €138900, 57кв.м. в Малинова долина
Продава двустаен, €138900, 57кв.м. в Малинова долина
Продава двустаен, €138900, 57кв.м. в Малинова долина
Продава двустаен, €138900, 57кв.м. в Малинова долина
Продава двустаен, €138900, 57кв.м. в Малинова долина
ПромотирайОбнови

Бизнес

Цена на кв.м: 2436.84

Тип апартамент: 2 - стаен

Квадратура: 57 кв.м

Година на строителство: 2027 г.

Строителство: Тухла

Етаж: 1-ви

Брой етажи на сградата: 4

Последен етаж

Отопление: Електричество

Обзавеждане: Необзаведен

Състояние на сградата: В строеж

Преход: Без преход

Особености: асансьор, паркинг

Описание

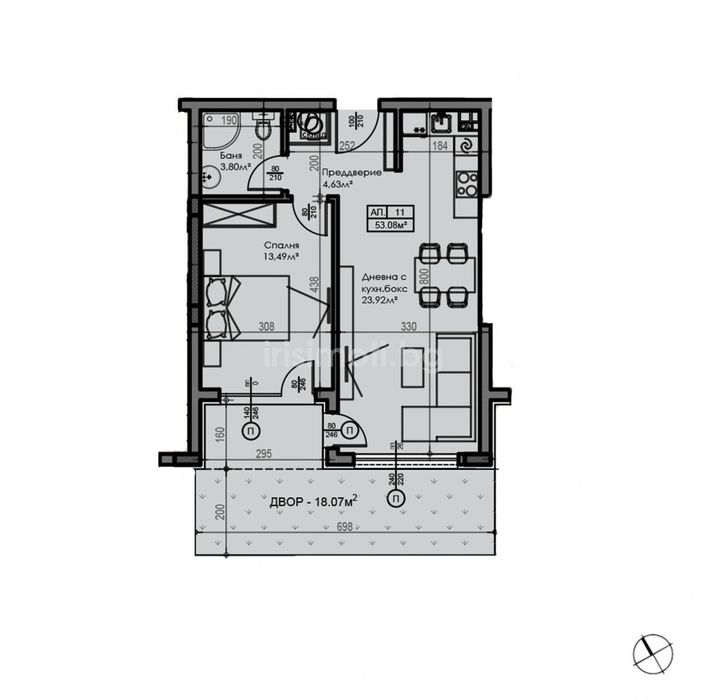
Продава се двустаен апартамент в Малинова долина. Сградата е в начален етап. Предвиден е срока за изграждане края на 2027 год. Строежът се изпълнява с най висококачествени материали - високоенергийни керамични блоковетоплоизолационна система BAUMIT, вентилируема фасада с Винил Бонд и технически камък, високоефективни асансьори за жилищни сгради Unuken, дограма Salamander green Evolution 76 - стилна и надеждна прозоречна система с 6 камери, отлична топлоизолация и шумоизолация. Има възможност за закупуване на подземни гаражи и паркоместа. Апартаментът е разположен на първи етаж, с обща площ 53 м2. Състоящ се от предверие, дневна с кухненски бокс, една спалня и една баня с тоалетна, двор 18 кв. м.
Локацията е: близо до Симеоновско шосе, детска градина, бъдеща метростанция.
Начина на плащане е съобразен с възможностите на купувача.
ID: 145764348

Контакт с продавача

Оля Господинова

В OLX от май 2013 г.

Последно онлайн днес в 04:00 ч.

xxx xxx xxx

Добавена 19 ноември 2025 г.

Продава двустаен, €138900, 57кв.м. в Малинова долина

138900 €

Потребител

Локация

Location

гр. София, Малинова долина

Област София-град

За този потребител

Свали приложението на OLX за твоя телефон!