Бизнес
Цена на кв.м: 1.44
Квадратура: 27848 кв.м
Регулация: В регулация
Вода: С вода
Ток: С ток
Особености: бартер, канализация, обезщетение, жил.строителство
Описание
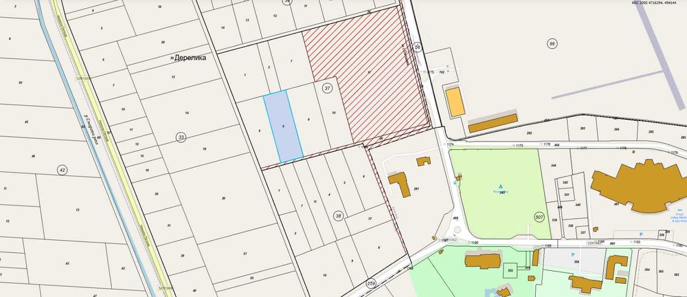
Продавам парцели до гр. Казанлък, с. Овощник – от 1 400 кв.м до 5 000 кв.м (общо 27 848 кв.м)
Продават се парцели с площ от 1 400 кв.м до 5 000 кв.м, разположени в живописната зона между гр. Казанлък и с. Овощник, в непосредствена близост до СПА хотел Kings Valley, къмпинг „Кълвача“, аквапарк Овощник и летище Казанлък
Имотите се намират в изключително перспективен район, подходящ както за инвестиция, така и за лично ползване.
Инфраструктура и предимства:
Асфалтов път до самите парцели
Вода, газ, канализация и минерална вода в близост
Озеленен и поддържан терен
Подходящи за вилно селище, хотелски комплекс, СПА център, инвестиционен проект или жилищно строителство
Възможности:
Продажба на целия имот (27 848 кв.м) или на отделни парцели
Лизинг и бартер при договаряне
Цена: 40 лв./кв.м или по договаряне
За повече информация и огледи: 08********11
Продават се парцели с площ от 1 400 кв.м до 5 000 кв.м, разположени в живописната зона между гр. Казанлък и с. Овощник, в непосредствена близост до СПА хотел Kings Valley, къмпинг „Кълвача“, аквапарк Овощник и летище Казанлък
Имотите се намират в изключително перспективен район, подходящ както за инвестиция, така и за лично ползване.
Инфраструктура и предимства:
Асфалтов път до самите парцели
Вода, газ, канализация и минерална вода в близост
Озеленен и поддържан терен
Подходящи за вилно селище, хотелски комплекс, СПА център, инвестиционен проект или жилищно строителство
Възможности:
Продажба на целия имот (27 848 кв.м) или на отделни парцели
Лизинг и бартер при договаряне
Цена: 40 лв./кв.м или по договаряне
За повече информация и огледи: 08********11
ID: 146070976
Контакт с продавача
xxx xxx xxx
Добавена 12 ноември 2025 г.
Продава директно от собственик имот 27848кв.м с минерална вода
40000 лв.
По договаряне
Локация
с. Овощник
Област Стара Загора