Бизнес
Цена на кв.м: 950
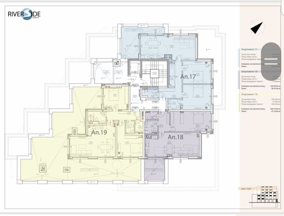
Тип апартамент: 3 - стаен
Квадратура: 100 кв.м
Година на строителство: 2024 г.
Строителство: Тухла
Етаж: 2-ри
Брой етажи на сградата: 5
Последен етаж
Отопление: Локално
Обзавеждане: Необзаведен
Състояние на сградата: В строеж
Преход: Без преход
Описание
Агенция за Недвижими Имоти"Positive Trade"продава апартаменти в новострояща се сграда в центъра на гр.Дупница.Имота разполага с четири жилищни етажа,партер с търговски обекти и достатъчно паркоместа.Сградата наречена от инвеститора"River Side Rezidence" без съмнение ще се превърне в емблема и едно от най-добрите архитектурни решения на гр.Дупница.Структурните форми и уникалната концепция допълнително ще допринесат за уюта на живущите.Строителството се извършва с най-качествените материали и по всички БДС стандарти за този вид дейност.Компанията която изпълнява обекта е също така инвеститор.Достатъчно обезпечена и с дългогодишен опит в бранша,гарантира за успешното завършване на обекта в срок.Схемите за плащане са гъвкави и подлежат на балансирани договорки с клиентите.Има алтернативно решение за банково финансиране,като се предплата 20% при предварителен договор и гарантиран кредит при акт 14.Сградата ще бъде газифицирана ,с инсталация за термо помпа във всяко жилище и с луксозни общи части.За повече информация 08******41гр.Дупница.Имота разполага с четири жилищни етажа,партер с търговски обекти и достатъчно паркоместа.Сградата наречена от инвеститора"River Side Residence" без съмнение ще се превърне в емблема и едно от най-добрите архитектурни решения на гр.Дупница.Структурните форми и уникалната концепция допълнително ще допринесат за уюта на живущите.Строителството се извършва с най-качествените материали и по всички БДС стандарти за този вид дейност.Компанията която изпълнява обекта е също така и инвеститор.Достатъчно обезпечена и с дългогодишен опит в бранша,гарантира за успешното завършване на обекта в срок.Схемите за плащане са гъвкави и подлежат на балансирани договорки с клиентите.Има алтернативно решение за банково финансиране,като се предплата 20% при предварителен договор и гарантиран кредит при акт 14.Сградата ще бъде газифицирана ,с инсталация за термо помпа във всяко жилище и с луксозни общи части.За повече информация 08******41
ID: 136172733
Контакт с продавача
xxx xxx xxx
Добавена 04 януари 2026 г.
Продава апартаменти в гр.Дупница
185803.85 лв. / 95000 €
Потребител
Локация
гр. Дупница
Област Кюстендил
