Навигиране до основното съдържание
Чат

Нотификации

Твоят профил

Добави обява
Продава 3-стаен апартамент, в строеж, Цветен квартал, 104 кв.м
Продава 3-стаен апартамент, в строеж, Цветен квартал, 104 кв.м
Продава 3-стаен апартамент, в строеж, Цветен квартал, 104 кв.м
ПромотирайОбнови

Бизнес

Цена на кв.м: 1903.85

Тип апартамент: 3 - стаен

Квадратура: 104 кв.м

Година на строителство: 2027 г.

Строителство: Тухла

Етаж: 3-ти

Брой етажи на сградата: 8

Последен етаж

Отопление: Електричество

Обзавеждане: Необзаведен

Състояние на сградата: Завършена

Преход: Без преход

Описание

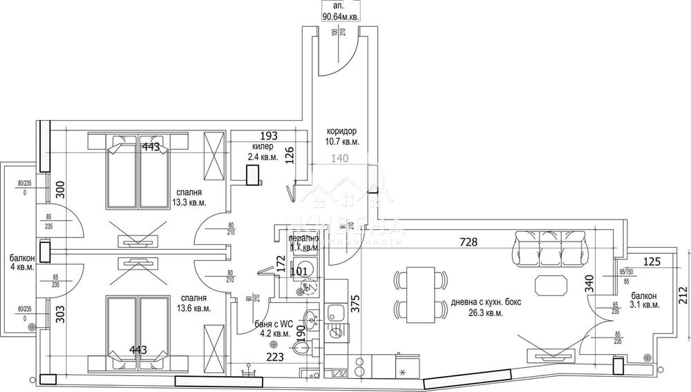
Агенция Живена предлага за продажба тристаен апартамент в малка жилищна сграда, в строеж, разположена на отлично място в Цветен квартал. Имотът е разположен на етаж 3 от 7, с обща площ - 103.56 кв.м, ЗП: 90.64 кв.м, с изложение: юг/северооизток. Състои се от дневна с кухненски бокс (26.3 кв.м), 2 спални (13.6 и 13.3 кв.м), баня с тоалетна (4.1 кв.м), килер (2.4 кв.м), перално (1.7 кв.м), коридор (10.7 кв.м) и лоджия (3.8 кв.м). Издава се в степен на завършеност по БДС: вътрешни стени - тухла с гипсова мазилка, тавани гипсокартон, под на стаи - циментова замазка, баня - тоалет: под циментова замазка, стени вароциментова мазилка, ел. инсталация: завършена напълно до ключове, контакти, оптичен кабел до апартамент; В и К инсталации: завършени до тапа; изграждане на тръбни връзки за монтаж на климатици, на определени по архитектура места; външна врата блиндирана с облечена декоративна каса; прозорци: висококачествена PVC дограма - 7 камерна с тройни стъклопакети, 6 мм четири сезона/ 4 мм бяло флоатно стъкло/ 4 мм К. Възможност за покупка на открити и закрити паркоместа на цени от 25 000 евро. Сградата е с модерна визия и се състои от 7 жилищни етажа и 1 подземно ниво (закрит паркинг). Започнат строеж - през март 2025, очакван Акт 16 - през лятото на 2027 г. Общи части на сградата: подови настилки и стъпала от гранитогрес или гранит; стени - декоративна мазилка; асансьор - ORONA; паркинг - шлайфан бетон на под; фасада - комбинация от мазилка с камък, HPL и керамика; покрив - хидро и топлоизолация. В сградата са налични и други тристайни апартаменти и един четиристаен мезонет. Предлагат се определени схеми на плащане след оставен депозит. Агенция Живена извършва необходимите проверки на имота, който сте избрали, организира всички етапи на сделката до нейното финализиране. Оказваме съдействие за отпускане на банков кредит. Оферта № 7488
ID: 145597847

Контакт с продавача

Йоана Червенкова

В OLX от юни 2019 г.

Онлайн

xxx xxx xxx

Обновено на 06 март 2026 г.

Продава 3-стаен апартамент, в строеж, Цветен квартал, 104 кв.м

387254.34 лв. / 198000 €

Потребител

Локация

Location

гр. Варна, Цветен квартал

Област Варна

Свали приложението на OLX за твоя телефон!