Навигиране до основното съдържание
Чат

Нотификации

Добави обява
Продава 2 стаен,гр. София, ж.к. Овча Купел 2
Продава 2 стаен,гр. София, ж.к. Овча Купел 2
Продава 2 стаен,гр. София, ж.к. Овча Купел 2
Продава 2 стаен,гр. София, ж.к. Овча Купел 2
Продава 2 стаен,гр. София, ж.к. Овча Купел 2
Продава 2 стаен,гр. София, ж.к. Овча Купел 2
ПромотирайОбнови

Бизнес

Цена на кв.м: 2096.88

Тип апартамент: 2 - стаен

Квадратура: 74 кв.м

Година на строителство: 2023 г.

Строителство: Тухла

Етаж: 5-ти

Брой етажи на сградата: 8

Последен етаж

Отопление: ТЕЦ

Обзавеждане: Необзаведен

Състояние на сградата: Завършена

Преход: С преход

Описание

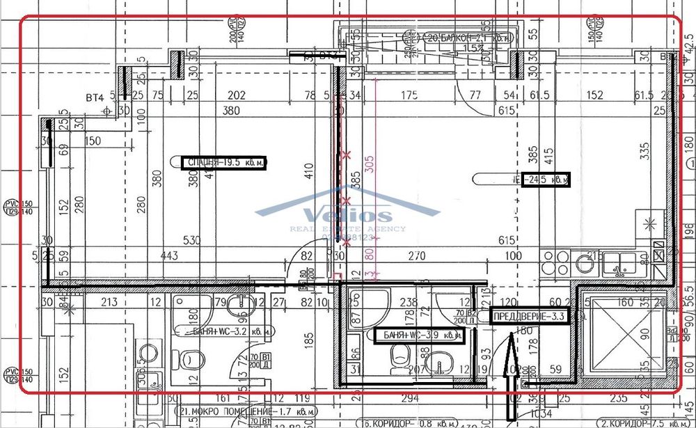
"Велиос Консулт" предлага за продажба двустаен апартамент в нова сграда с акт 16 от 2023 г в кв. Овча Купел 2 в непосредствена близост до Метростанция "Горна баня" .Статут на имота - Ателие. Разпределение - дневна с кухненски бокс (24кв.м.), спалня(19.5 кв.м.), тераса, със застроена площ на имота- 63,6 кв.м., изложение - северозапад. Отопление - Тец, На шпакловка и замаска. Подземно паркомясто -25000 Е. Предлагаме и други апартаменти в сградата. за подробности 08******47
ID: 145117917

Контакт с продавача

Велиос Консулт ООД

В OLX от април 2012 г.

Последно онлайн днес в 05:59 ч.

xxx xxx xxx

Добавена 13 януари 2026 г.

Продава 2 стаен,гр. София, ж.к. Овча Купел 2

303484.19 лв. / 155169 €

Потребител

Локация

Location

гр. София, Овча купел 2

Област София-град

Свали приложението на OLX за твоя телефон!