Навигиране до основното съдържание
Чат

Нотификации

Добави обява
Продава , €122805, 82кв.м. в Люлин 6
Продава , €122805, 82кв.м. в Люлин 6
Продава , €122805, 82кв.м. в Люлин 6
Продава , €122805, 82кв.м. в Люлин 6
Продава , €122805, 82кв.м. в Люлин 6
ПромотирайОбнови

Бизнес

Цена на кв.м: 1497.62

Тип апартамент: 2 - стаен

Квадратура: 82 кв.м

Година на строителство: 2026 г.

Строителство: Тухла

Етаж: 4-ти

Брой етажи на сградата: 9

Последен етаж

Отопление: ТЕЦ

Обзавеждане: Необзаведен

Състояние на сградата: В строеж

Преход: Без преход

Описание

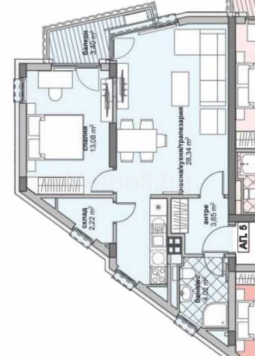
Продава просторен двустаен апартамент в Люлин - 6 / близо до хипермаркет "Кауфланд" /. Апартаментът е 82 кв.м с общите части / застроена площ - 70 кв.м /. Разположен е на четвърти етаж в новострояща се сграда, със срок на завършване - края на 2026 г., на доказан строител с много построени сгради. Разпределение: антре; дневна с трапезария и светъл кухненски бокс, със складово помещение с прозорец към него; спалня; баня с тоалетна; един балкон с излаз на него от спалня и дневна. Изложение: изток / запад. Отопление: ТЕЦ. Предава се на замазка и шпакловка. Има възможност за закупуване на гаражи и паркоместа.
ID: 145161125

Контакт с продавача

Ирена Стойнова

В OLX от май 2013 г.

Последно онлайн вчера в 03:00 ч.

xxx xxx xxx

Добавена 17 септември 2025 г.

Продава , €122805, 82кв.м. в Люлин 6

122805 €

Потребител

Локация

Location

гр. София, Люлин 6

Област София-град

За този потребител

Свали приложението на OLX за твоя телефон!