Бизнес
Цена на кв.м: 1570.51
Брой етажи на сградата: 2
Квадратура: 156 кв.м
Квадратура на двора: 200 кв.м
Година на строителство: 2000 г.
Строителство: Тухла
Отопление: Локално
Състояние на сградата: В строеж
Описание
БЕЗ КОМИСИОН ОТ КУПУВАЧА!
Домът на мечтите ви в Поморие: Къщи на крачка от плажа и града
Еднофамилните къщи, разположени в живописната част на град Поморие, предлагат идеалната комбинация от спокойствие и удобство. Ситуирани в близост до брега на Черно море, те създават усещане за уютен дом, където можете да се насладите на природата, без да се отдалечавате от удобствата на града. Районът осигурява лесен достъп до спирки на градския транспорт, магазини, училища и детски градини, което го прави подходящ за семейства и целогодишно живеене.
Всяка къща е самостоятелна, с индивидуално пространство, което ви позволява да се наслаждавате на личния си уют. Тук ще откриете свобода и спокойствие, съчетани с удобството на добре устроена градска инфраструктура. Това е място, което предлага комфорт и хармония, без да губите усещането за независимост.
Нов квартал от 16 луксозни, еднофамилни къщи
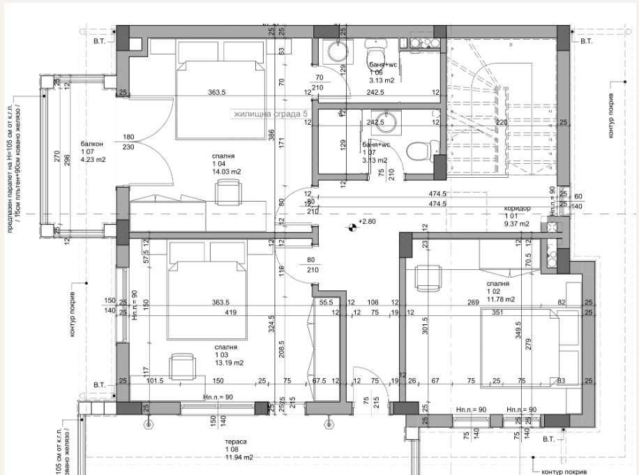
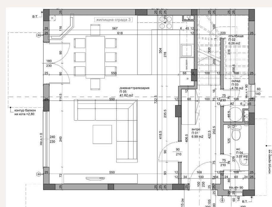
Всяка къща е двуетажна, със следното разпределение
Първи етаж - голяма всекидневна с кухня, баня с тоалетна, сервизно помещение за централно отопление, мокро помещение, гараж с топла връзка
Втори етаж - 3 спални, 2 бани с тоалетни, като едната е родителска със собствена баня и тоалетна, 2 тераси.
Къщите са с РЗП от 160 до 230 кв. м., всяка със собствен двор от 150 до 250 кв.м.
Предлагаме БЕЗПЛАТНО СЪДЕЙСТВИЕ за одобрение и получаване на ипотечен кредит за покупка на имот при най-добри условия за Вас, чрез услугите на лицензиран кредитен консултант!
Допълнителни услуги и следпродажбено обслужване - безкомисионно отдаване на имота под наем, строителни и ремонтни дейности, консултация и проекти с инжинерен дизайнер и ландшафтен архитект.
Домът на мечтите ви в Поморие: Къщи на крачка от плажа и града
Еднофамилните къщи, разположени в живописната част на град Поморие, предлагат идеалната комбинация от спокойствие и удобство. Ситуирани в близост до брега на Черно море, те създават усещане за уютен дом, където можете да се насладите на природата, без да се отдалечавате от удобствата на града. Районът осигурява лесен достъп до спирки на градския транспорт, магазини, училища и детски градини, което го прави подходящ за семейства и целогодишно живеене.
Всяка къща е самостоятелна, с индивидуално пространство, което ви позволява да се наслаждавате на личния си уют. Тук ще откриете свобода и спокойствие, съчетани с удобството на добре устроена градска инфраструктура. Това е място, което предлага комфорт и хармония, без да губите усещането за независимост.
Нов квартал от 16 луксозни, еднофамилни къщи
Всяка къща е двуетажна, със следното разпределение
Първи етаж - голяма всекидневна с кухня, баня с тоалетна, сервизно помещение за централно отопление, мокро помещение, гараж с топла връзка
Втори етаж - 3 спални, 2 бани с тоалетни, като едната е родителска със собствена баня и тоалетна, 2 тераси.
Къщите са с РЗП от 160 до 230 кв. м., всяка със собствен двор от 150 до 250 кв.м.
Предлагаме БЕЗПЛАТНО СЪДЕЙСТВИЕ за одобрение и получаване на ипотечен кредит за покупка на имот при най-добри условия за Вас, чрез услугите на лицензиран кредитен консултант!
Допълнителни услуги и следпродажбено обслужване - безкомисионно отдаване на имота под наем, строителни и ремонтни дейности, консултация и проекти с инжинерен дизайнер и ландшафтен архитект.
ID: 147189041
Контакт с продавача
xxx xxx xxx
Добавена 28 февруари 2026 г.
Предлагаме еднофамилни къщи в град Поморие
479178.35 лв. / 245000 €
Потребител
Локация
гр. Поморие
Област Бургас