Бизнес
Цена на кв.м: 2366.91
Тип апартамент: 3 - стаен
Квадратура: 139 кв.м
Година на строителство: 2025 г.
Строителство: Тухла
Етаж: 2-ри
Брой етажи на сградата: 6
Последен етаж
Отопление: Електричество
Обзавеждане: Необзаведен
Състояние на сградата: В строеж
Преход: Без преход
Особености: асансьор
Описание
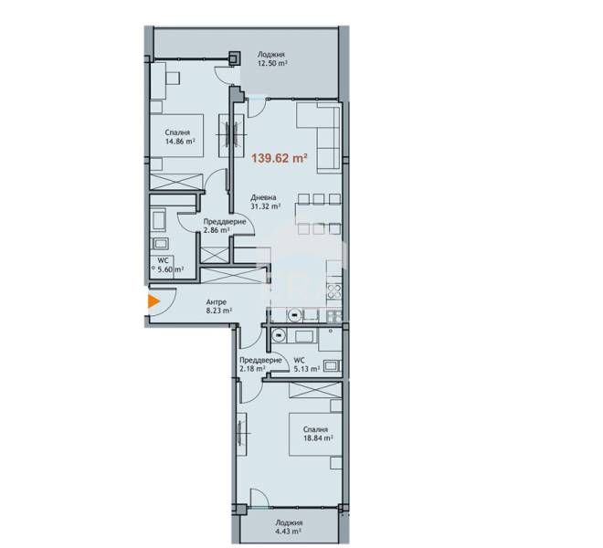
ЕРА Лайф продава тристаен апартамент в новострояща се сграда в кв. м-ст Кабакум. Имотът е с обща площ /139,62 кв.м/ и е разположен на втори етаж от шест. Апартаментът се състои от антре – /8,23 кв.м/, преддверие – /2,18 кв.м/, дневна с кухненски бокс и трапезария – /31,32 кв.м/, две спални – /14,86 кв.м/ и /18,84 кв.м/, две бани с тоалетни – /5,13 кв.м/ и /5,60 кв.м/, лоджия – /12,50 кв.м/ и /4,43 кв.м/ с излаз от двете стаи. Към имота може да бъде закупено външно паркомясто за 22 500 евро, подземно паркомясто за 25 000 евро или гараж за 30 000 евро. Изложение: изток/запад. Статутът е на апартамент.
Жилището се продава необзаведено и ще бъде завършено до степен БДС – на шпакловка и замазка с поставена ПВЦ дограма и входна блиндирана врата. Отоплението ще бъде с електричество.
Предлагат се гъвкави схеми на плащане: първи вариант – 30% първоначална вноска, 40% на АКТ 14, 20% на АКТ 15, 10% на АКТ 16; втори вариант – 50% първоначална вноска, 20% на АКТ 14, 20% на АКТ 15, 10% на АКТ 16; трети вариант – 60% първоначална вноска, 20% на АКТ 14, 20% на АКТ 16; четвърти вариант – 70% първоначална вноска, 20% на АКТ 14, 10% на АКТ 16.
Комплексът ще се отличава с иновативен екстериорен и интериорен дизайн, монолитна стоманобетонна конструкция, осигуряваща стабилност и дълъг експлоатационен живот, и топлоизолационни системи от последно поколение, гарантиращи отлична енергийна ефективност и комфорт през всички сезони. Код: 0708770.
Топ локация – само на минути от град Варна в к.к. Чайка, с бърз и лесен достъп до всички удобства и атракции, които градът предлага, и на метри от к.к. Слънчев ден, плаж Кабакум и к.к. Ривиера, комплексът ще предлага хармония и комфорт на една престижна локация.
Оферта №0708770
Жилището се продава необзаведено и ще бъде завършено до степен БДС – на шпакловка и замазка с поставена ПВЦ дограма и входна блиндирана врата. Отоплението ще бъде с електричество.
Предлагат се гъвкави схеми на плащане: първи вариант – 30% първоначална вноска, 40% на АКТ 14, 20% на АКТ 15, 10% на АКТ 16; втори вариант – 50% първоначална вноска, 20% на АКТ 14, 20% на АКТ 15, 10% на АКТ 16; трети вариант – 60% първоначална вноска, 20% на АКТ 14, 20% на АКТ 16; четвърти вариант – 70% първоначална вноска, 20% на АКТ 14, 10% на АКТ 16.
Комплексът ще се отличава с иновативен екстериорен и интериорен дизайн, монолитна стоманобетонна конструкция, осигуряваща стабилност и дълъг експлоатационен живот, и топлоизолационни системи от последно поколение, гарантиращи отлична енергийна ефективност и комфорт през всички сезони. Код: 0708770.
Топ локация – само на минути от град Варна в к.к. Чайка, с бърз и лесен достъп до всички удобства и атракции, които градът предлага, и на метри от к.к. Слънчев ден, плаж Кабакум и к.к. Ривиера, комплексът ще предлага хармония и комфорт на една престижна локация.
Оферта №0708770
ID: 145493038
Контакт с продавача
xxx xxx xxx