Бизнес
Цена на кв.м: 185.64
Квадратура: 3535 кв.м
Регулация: В регулация
Вода: С вода
Ток: С ток
Особености: жил.строителство, канализация
Описание
ЕРА ГОЛД Ексклузивно представя за продажба парцел с изготвен архитектурен проект и строително разрешение за 12 еднофамилни къщи в гр. Козлодуй – стратегическа локация с нарастващ икономически и социален потенциал.
За имота:
Площ на парцела: 3535 кв.м.
ЗОНА Жм
Плътност на застрояване: < 60%
Кинт: 1.2
Озеленяване: >40%
Кота Корниз: < 10м
Статут: Урегулиран поземлен имот
Готов архитектурен проект за Комплекс от еднофамилни жилищни сгради с РЗП от 1750 м2.
Издадено е разрешение за строеж.
Свързване към канализация и вода, налични на пътя до имота.
Предвижда се изграждане на трафопост в парцела, с предвидено свързване към 20KV на пътя пред имота.
Пазарните цени в района позволяват реализиране на 100% печалба спрямо продажната цена на парцела за този проект.
Допустимото застрояване е 4242 кв.м. и дава възможност за цялостно или частично препроектиране с апартаменти в една или две жилищни сгради, при което ще се постигне още по-висока печалба.
Обявената цена не включва ДДС.
Всяка къща в проекта:
Автомобилен достъп и 2 външни паркоместа от североизток, и обособено дворно пространство от югозапад.
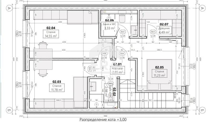
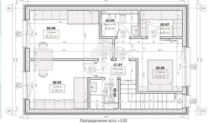
На първия етаж с площ 73 м2 е проектирано предверие, от което се влиза в техническо помещение, тоалетна, дневна, кухня с трапезария, и стълбище към втория етаж.
На втория етаж от общ коридор се влиза в баня с тоалетна и 3 спални една от които със собствена баня с тоалетна и дрешник.
Подпокривното пространство е с четири прозореца и височина 3 метра в най-високата част.
Отопление с термопомпа за всяка къща.
Локация с бъдеще:
Парцелът се намира в Центъра на града и е в непосредствена близост до магазин Т-Маркет, Лидъл, парк Крайдунавски, Картинг писта, Кораба Радецки, АЕЦ Козлодуй.
Град Козлодуй е разположен на брега на река Дунав, в непосредствена близост до границата с Румъния. Най-близкият граничен пункт е Оряхово–Бекет, на около 30 км от Козлодуй, с фериботно преминаване за около 10-15 минути. Корабът-музей „Радецки“ привлича хиляди туристи, ученици и почитатели на историята всяка година.
Икономически растеж:
АЕЦ „Козлодуй“ – единствената ядрена електроцентрала в България. Очаква се разширяване на централата с изграждане на нови мощности, което ще доведе до:
- Създаване на много нови работни места.
- Повишена нужда от жилища под наем и за покупка.
- Подобряване на инфраструктурата и стандарта на живот в района.
Защо Козлодуй?
Тих и подреден град, подходящ за семеен живот.
Съвременни училища, детски градини, болница, културни и спортни центрове.
Привлекателна зона за специалисти и служители, работещи в енергийния сектор.
Развита крайдунавска инфраструктура – потенциал за речен туризъм и бизнес.
Оферта №4062032
За имота:
Площ на парцела: 3535 кв.м.
ЗОНА Жм
Плътност на застрояване: < 60%
Кинт: 1.2
Озеленяване: >40%
Кота Корниз: < 10м
Статут: Урегулиран поземлен имот
Готов архитектурен проект за Комплекс от еднофамилни жилищни сгради с РЗП от 1750 м2.
Издадено е разрешение за строеж.
Свързване към канализация и вода, налични на пътя до имота.
Предвижда се изграждане на трафопост в парцела, с предвидено свързване към 20KV на пътя пред имота.
Пазарните цени в района позволяват реализиране на 100% печалба спрямо продажната цена на парцела за този проект.
Допустимото застрояване е 4242 кв.м. и дава възможност за цялостно или частично препроектиране с апартаменти в една или две жилищни сгради, при което ще се постигне още по-висока печалба.
Обявената цена не включва ДДС.
Всяка къща в проекта:
Автомобилен достъп и 2 външни паркоместа от североизток, и обособено дворно пространство от югозапад.
На първия етаж с площ 73 м2 е проектирано предверие, от което се влиза в техническо помещение, тоалетна, дневна, кухня с трапезария, и стълбище към втория етаж.
На втория етаж от общ коридор се влиза в баня с тоалетна и 3 спални една от които със собствена баня с тоалетна и дрешник.
Подпокривното пространство е с четири прозореца и височина 3 метра в най-високата част.
Отопление с термопомпа за всяка къща.
Локация с бъдеще:
Парцелът се намира в Центъра на града и е в непосредствена близост до магазин Т-Маркет, Лидъл, парк Крайдунавски, Картинг писта, Кораба Радецки, АЕЦ Козлодуй.
Град Козлодуй е разположен на брега на река Дунав, в непосредствена близост до границата с Румъния. Най-близкият граничен пункт е Оряхово–Бекет, на около 30 км от Козлодуй, с фериботно преминаване за около 10-15 минути. Корабът-музей „Радецки“ привлича хиляди туристи, ученици и почитатели на историята всяка година.
Икономически растеж:
АЕЦ „Козлодуй“ – единствената ядрена електроцентрала в България. Очаква се разширяване на централата с изграждане на нови мощности, което ще доведе до:
- Създаване на много нови работни места.
- Повишена нужда от жилища под наем и за покупка.
- Подобряване на инфраструктурата и стандарта на живот в района.
Защо Козлодуй?
Тих и подреден град, подходящ за семеен живот.
Съвременни училища, детски градини, болница, културни и спортни центрове.
Привлекателна зона за специалисти и служители, работещи в енергийния сектор.
Развита крайдунавска инфраструктура – потенциал за речен туризъм и бизнес.
Оферта №4062032
ID: 146208851
Контакт с продавача
xxx xxx xxx

