Бизнес
Цена на кв.м: 65
Квадратура: 900 кв.м
Регулация: Извън регулация
Вода: Без вода
Ток: Без ток
Описание
КЛИЕНТИТЕ НА MARTIN'S СА ПО-ДОВОЛНИ!
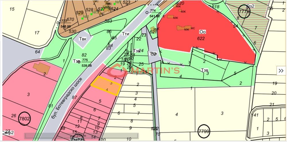
Предлагаме поземлен имот с 20 м лице на бул. "Ботевградско шосе", находящ се в с. Горни Богров, местност Барата, срещу "Мо-Мо Транс". Имотът попада в зона СМФ2, с показатели: кинт- 1,2; плътност на застрояване - 40/60.
Предлагаме още пет парцела в района, всички попадащи в зона СМФ 2, с квадратури от 900 кв.м. до 6800кв.м., като всички са на цена от 65 евро за кв.м.
Оферта № 12555
посетете ни на www.martins.bg и FB Martin's real estate
Предлагаме поземлен имот с 20 м лице на бул. "Ботевградско шосе", находящ се в с. Горни Богров, местност Барата, срещу "Мо-Мо Транс". Имотът попада в зона СМФ2, с показатели: кинт- 1,2; плътност на застрояване - 40/60.
Предлагаме още пет парцела в района, всички попадащи в зона СМФ 2, с квадратури от 900 кв.м. до 6800кв.м., като всички са на цена от 65 евро за кв.м.
Оферта № 12555
посетете ни на www.martins.bg и FB Martin's real estate
ID: 143956239
Контакт с продавача
xxx xxx xxx

