Бизнес
Цена на кв.м: 173.39
Квадратура: 2007 кв.м
Регулация: В регулация
Вода: С вода
Ток: С ток
Описание
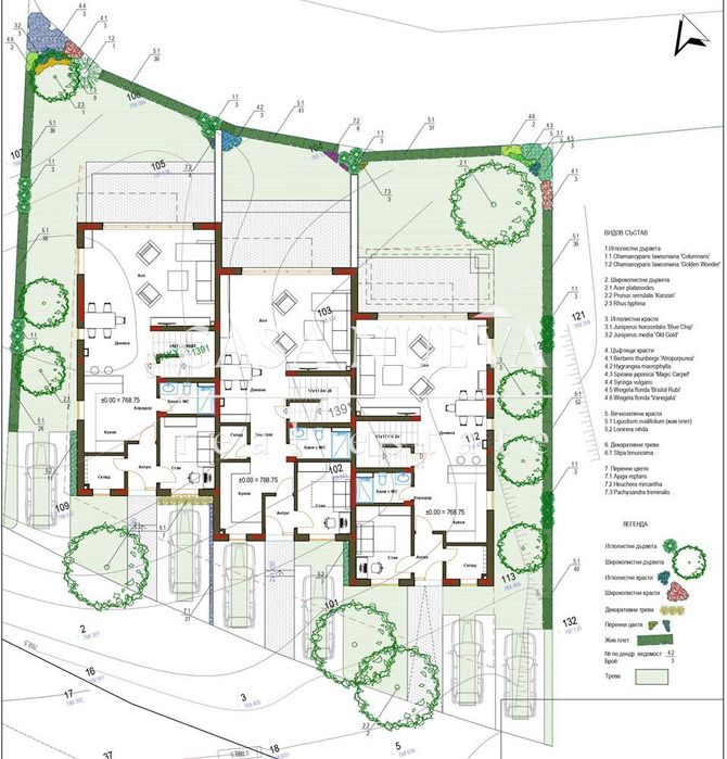
CASA NUEVA REAL ESTATE продава парцел с готов проект за редови къщи в с.Рударци, област Перник. Намира се на главна, асфалтова улица (ул.Черни връх). Слънчев и равен парцел от 2007кв.м. В цената е включен и изцяло готов проект, с всички необходими документи за строеж (издадено разрешително за строеж, одобрен архитектурен проект, подписани договори за ток и вода, разрешение за изгребни ями - централна канализация).
Проектът включва 5 редови къщи. Всяка от къщите е с РЗП 220кв.м., разполага с 200кв.м. двор и 2 паркоместа.
500кв.м. (от общата квадратура на парцела) са предназначени за изграждането на обща зона за отдих, която може да включва: детска площадка, барбекю зона, басейн и други.
За всякакви възникнали въпроси, по-подробна информация и организиране на оглед, не се колебайте да се свържете с нас.
Проектът включва 5 редови къщи. Всяка от къщите е с РЗП 220кв.м., разполага с 200кв.м. двор и 2 паркоместа.
500кв.м. (от общата квадратура на парцела) са предназначени за изграждането на обща зона за отдих, която може да включва: детска площадка, барбекю зона, басейн и други.
За всякакви възникнали въпроси, по-подробна информация и организиране на оглед, не се колебайте да се свържете с нас.
ID: 139402402
Контакт с продавача
xxx xxx xxx
