Навигиране до основното съдържание
OLX Christmas Logo
Чат

Нотификации

Добави обява
Парцел с разрешително за строеж
Парцел с разрешително за строеж
Парцел с разрешително за строеж
Парцел с разрешително за строеж
Парцел с разрешително за строеж
ПромотирайОбнови

Частна

Цена на кв.м: 50.36

Квадратура: 695 кв.м

Регулация: В регулация

Вода: С вода

Ток: С ток

Особености: виза, жил.строителство

Описание

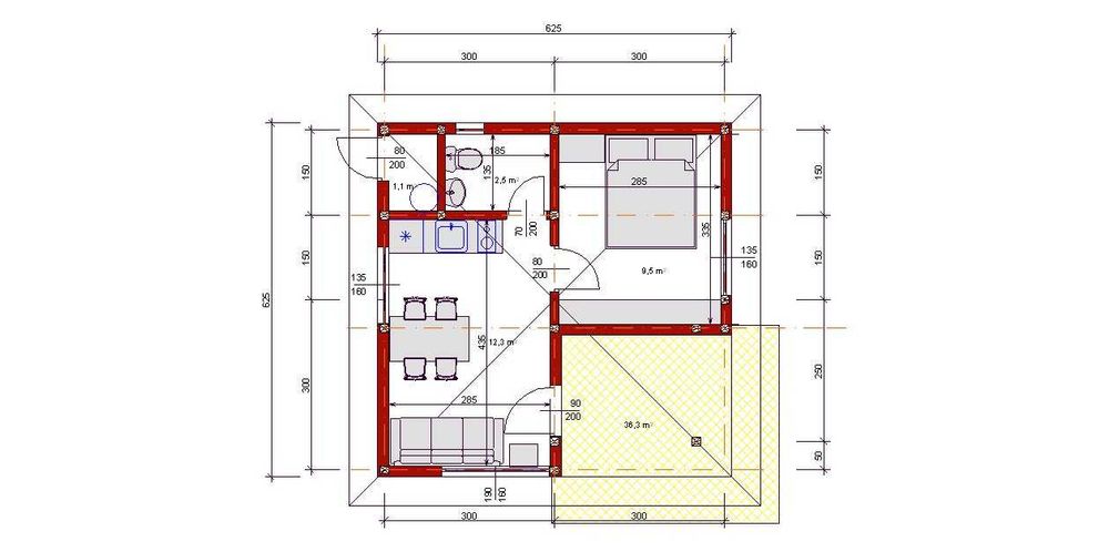
Продава се парцел с разрешително за строеж на 4 бр. Жилищни сгради по 40 кв. всяка, подходящи за краткосрочно, дългосрочно настаняване. В имота има изградена септична яма, и водомерна шахта,предстои свързване с ВИК-(платени такси] и получени окончателни разрешения и свързване към Ел. Проекта е за дървени къщи. Направени са изкопи за фундаменти и ограда на имота.
ID: 146597435

Контакт с продавача

nfilipova

В OLX от октомври 2023 г.

Последно онлайн 03 януари 2026 г.

xxx xxx xxx

Добавена 03 януари 2026 г.

Парцел с разрешително за строеж

68454.05 лв. / 35000 €

Потребител

Локация

Location

гр. Каварна

Област Добрич

Свали приложението на OLX за твоя телефон!