Навигиране до основното съдържание
Чат

Нотификации

Добави обява
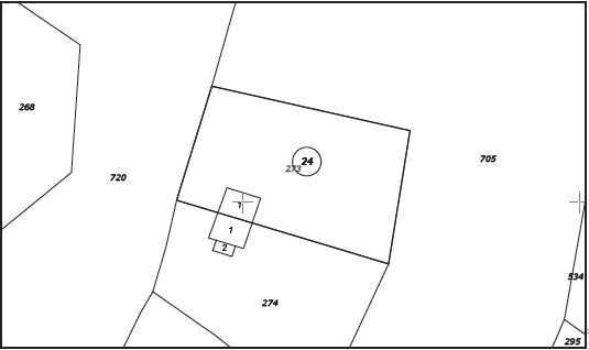
Парцел 1191 кв.м., местност Баира, гр. Асеновград
Парцел 1191 кв.м., местност Баира, гр. Асеновград
Парцел 1191 кв.м., местност Баира, гр. Асеновград
Парцел 1191 кв.м., местност Баира, гр. Асеновград
ПромотирайОбнови

Частна

Цена на кв.м: 20.99

Квадратура: 1191 кв.м

Регулация: В регулация

Вода: С вода

Ток: Без ток

Описание

Oт собственик.
Продавам Два съседни имота с обща площ от 1191 кв.м. в местността "Баира", намиращ се във вилна зона над у-ще "Ангел Кънчев" с 47 кв.м сграда в него на 2 етажа, с трайно предназначение на земята - земеделска , начин на трайно ползване по параграф 4 за земеделски труд и отдих.
ID: 142283481

Контакт с продавача

Flexx

В OLX от януари 2013 г.

Последно онлайн 12 януари 2026 г.

xxx xxx xxx

Добавена 19 август 2025 г.

Парцел 1191 кв.м., местност Баира, гр. Асеновград

48895.75 лв. / 25000 €

Потребител

Локация

Location

гр. Пловдив, Тракия

Област Пловдив

Свали приложението на OLX за твоя телефон!