Бизнес
Цена на кв.м: 1279.07
Квадратура: 86 кв.м
Година на строителство: 2025 г.
Строителство: Тухла
Етаж: 1-ви
Брой етажи на сградата: 1
Последен етаж
Отопление: Електричество
Описание
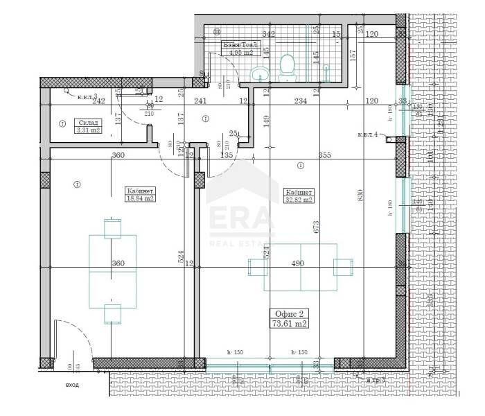
ЕРА Варна Тренд предлага за продажба партерен офис със самостоятелен вход, в новопостроена сграда с Акт 16, в м-т Пчелина, в близост до бизнес център. Имотът е със застроена площ 73,61 кв.м (86 кв.м с общите части), разположен на първи партерен етаж от общо 4 етажа. Състои се от две работни помещения (32,82 кв.м и 18,84 кв.м), коридор, склад (3,31 кв.м) и баня с тоалетна (4,95 кв.м). Статутът е на офис.
Продава се необзаведен, завършен до степен БДС, с поставена ПВЦ дограма. Отоплението е с електричество. Подходящ е също за зъболекарски кабинет или други дейности.
Офисът се намира в м-т Пчелина, в близост до бизнес център, в четириетажна тухлена сграда, въведена в експлоатация през 2025 г. Има възможност за допълнително закупуване на открито паркомясто на цена 15 000 евро. Достъпът до имота е лесен по ул. Прилеп, бул. Христо Смирненски и бул. Цар Освободител.
Оферта №0222037
Продава се необзаведен, завършен до степен БДС, с поставена ПВЦ дограма. Отоплението е с електричество. Подходящ е също за зъболекарски кабинет или други дейности.
Офисът се намира в м-т Пчелина, в близост до бизнес център, в четириетажна тухлена сграда, въведена в експлоатация през 2025 г. Има възможност за допълнително закупуване на открито паркомясто на цена 15 000 евро. Достъпът до имота е лесен по ул. Прилеп, бул. Христо Смирненски и бул. Цар Освободител.
Оферта №0222037
ID: 146001088
Контакт с продавача
xxx xxx xxx

