Бизнес
Цена на кв.м: 1532.26
Тип апартамент: 2 - стаен
Квадратура: 62 кв.м
Година на строителство: 2025 г.
Строителство: Тухла
Етаж: 9-ти
Брой етажи на сградата: 9
Последен етаж
Отопление: Електричество
Обзавеждане: Необзаведен
Състояние на сградата: В строеж
Преход: Без преход
Особености: асансьор
Описание
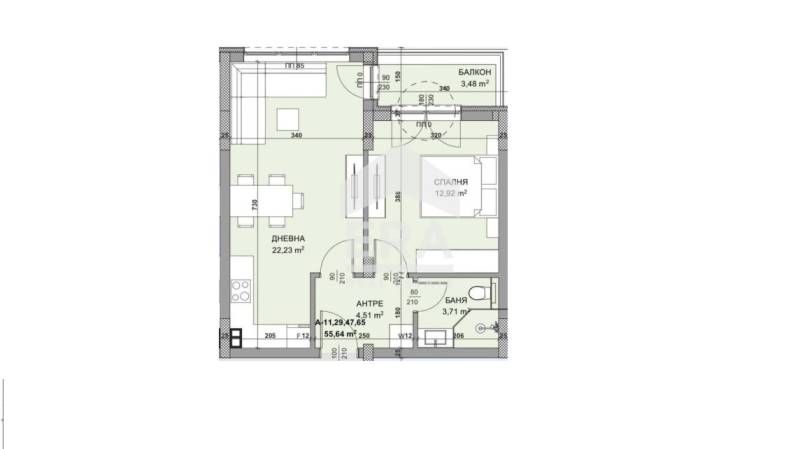
ЕРА Лайф обявява за продажба двустаен апартамент с площ 62,91 кв.м. /с общите части/ и 55,64 кв.м. /застроена площ/, разположен на девети етаж в нова жилищна сграда. Имотът е със следното разпределение: входно антре - 4,51 кв.м., дневен тракт с открит кухненски бокс - 22,23 кв.м., спалня - 12,92 кв.м., излаз на балкон - 3,48 кв.м. от двете стаи и комбиниран санитарен възел. Жилището е със статут на апартамент.
Апартаментът се продава в степен на завърешност БДС - с поставена ПВЦ дограма и входна блиндирана врата. Под - нивелирана замазка, подготвена за полагане на гранитогрес, паркет или друг вид настилка, Стени - машинно обработена мазилка, подготевна за полагане на боя/тапет и мокро помещение- ръчно обработена циментова замазка, подготвена за полагане на фаянс и теракот. Имотът се продава без обзавеждане. Етап на строителство: пред Акт 14. Очакван срок на въвеждане в експлоатация на сградата: декември 2026г.
Предлаганото жилище е част от нова жилищна сграда, проектирана с функционалност и съвременна визия, осигуряваща спокойна жилищна среда. Общите части ще бъдат луксозно завършени. Достъпът е контролиран. Функционира асансьор.
Квартал Владиславово е един от големите жилищни райони на Варна, разположен в западната част на града. Районът разполага с добре развита инфраструктура – училища, детски градини, търговски обекти, пазар и удобен градски транспорт до центъра и морето. Код: 0708827
ЕРА е лицензиран КРЕДИТЕН ПОСРЕДНИК и предлага БЕЗПЛАТНА консултация на своите клиенти!
Всеки имот предлаган от ЕРА е проверен, посетен на място и заснет от наш консултант.
Оферта №0708827
Апартаментът се продава в степен на завърешност БДС - с поставена ПВЦ дограма и входна блиндирана врата. Под - нивелирана замазка, подготвена за полагане на гранитогрес, паркет или друг вид настилка, Стени - машинно обработена мазилка, подготевна за полагане на боя/тапет и мокро помещение- ръчно обработена циментова замазка, подготвена за полагане на фаянс и теракот. Имотът се продава без обзавеждане. Етап на строителство: пред Акт 14. Очакван срок на въвеждане в експлоатация на сградата: декември 2026г.
Предлаганото жилище е част от нова жилищна сграда, проектирана с функционалност и съвременна визия, осигуряваща спокойна жилищна среда. Общите части ще бъдат луксозно завършени. Достъпът е контролиран. Функционира асансьор.
Квартал Владиславово е един от големите жилищни райони на Варна, разположен в западната част на града. Районът разполага с добре развита инфраструктура – училища, детски градини, търговски обекти, пазар и удобен градски транспорт до центъра и морето. Код: 0708827
ЕРА е лицензиран КРЕДИТЕН ПОСРЕДНИК и предлага БЕЗПЛАТНА консултация на своите клиенти!
Всеки имот предлаган от ЕРА е проверен, посетен на място и заснет от наш консултант.
Оферта №0708827
ID: 145844554
Контакт с продавача
xxx xxx xxx

