Бизнес
Цена на кв.м: 8.55
Тип апартамент: 2 - стаен
Квадратура: 76 кв.м
Година на строителство: 1963 г.
Строителство: Тухла
Етаж: 1-ви
Брой етажи на сградата: 3
Последен етаж
Отопление: ТЕЦ
Обзавеждане: Обзаведен
Преход: Без преход
Особености: готварска печка, хладилник, интернет, миялна, пералня, саниран, телевизор
Описание
ERA Фамилия отдава под наем дългосрочно двустаен апартамент, 76 кв.м. в тихия и спокоен квартал Хиподрума. Намира се на две крачки от парка и от ритуална зала Красно село. Кварталът е сред най-желаните в столицата, тъй като е в изключително чиста и безшумна околна среда, с множество дървета в междублоковото пространство, в същото време - близо до центъра, Медицинска академия, ВМА, НДК. Метростанция „Бул. България“ и метростанция Бул. Цар Борис III / Красно село са на 10 мин. пешеходно разстояние. В близост е до ресторанти и заведения, както и супермаркети Билла и Фантастико.
Свободно паркиране в квартала!
Жилището е разположено на първи от триетажна малка тухлена сграда, с по три апартамента на етаж и с един вход. Поддържани общи части и контрол на достъп. Апартаментът е саниран отвън и е след ремонт, както и с ново обзвеждане. Разполага с всичко необходимо за едно домакинство: пералня, сушилня за дрехи, хладилник, вградена фурна + електрически котлони за готвене (вкл. посуда). В хола дивана е разтегателен, с място за съхранение под лежанката. Може да се договори дообзавеждане според нуждите на наемателите.
Апартаментът е топъл и е с ниски месечни сметки!
Отоплението е на ТЕЦ.
Разположение: изток-запад-север.
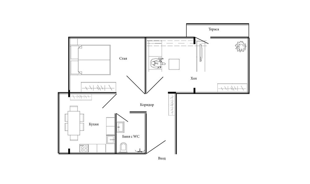
Разпределение: Входно антре, голям хол, стая/спалня, кухня с трапезария и усвоена тераса, баня с тоалетна и тераса (на която за лятото са предвидени маса и столове).
Наемната цена е 650 евро + един депозит в размер на един наем.
Агенцията работи с комисион от половин наем!
За допълнителна информация и огледи: 08********01 - консултант Иван Иванов.
Свободно паркиране в квартала!
Жилището е разположено на първи от триетажна малка тухлена сграда, с по три апартамента на етаж и с един вход. Поддържани общи части и контрол на достъп. Апартаментът е саниран отвън и е след ремонт, както и с ново обзвеждане. Разполага с всичко необходимо за едно домакинство: пералня, сушилня за дрехи, хладилник, вградена фурна + електрически котлони за готвене (вкл. посуда). В хола дивана е разтегателен, с място за съхранение под лежанката. Може да се договори дообзавеждане според нуждите на наемателите.
Апартаментът е топъл и е с ниски месечни сметки!
Отоплението е на ТЕЦ.
Разположение: изток-запад-север.
Разпределение: Входно антре, голям хол, стая/спалня, кухня с трапезария и усвоена тераса, баня с тоалетна и тераса (на която за лятото са предвидени маса и столове).
Наемната цена е 650 евро + един депозит в размер на един наем.
Агенцията работи с комисион от половин наем!
За допълнителна информация и огледи: 08********01 - консултант Иван Иванов.
ID: 146637532
Контакт с продавача
xxx xxx xxx
Добавена 07 януари 2026 г.
Отдава под наем уютен двустаен апартамент в кв. Хиподрума
1271.29 лв. / 650 €
Потребител
Локация
гр. София, Хиподрума
Област София-град