Бизнес
Цена на кв.м: 18.57
Тип апартамент: 3 - стаен
Квадратура: 70 кв.м
Година на строителство: 1990 г.
Строителство: ЕПК
Етаж: 4-ти
Брой етажи на сградата: 13
Последен етаж
Отопление: Локално
Обзавеждане: Обзаведен
Преход: Без преход
Особености: асансьор, паркинг, готварска печка, интернет, хладилник, пералня, сушилня, миялна, климатик, телевизор, саниран
Описание
Тристаен апартамент под наем – кв. Разсадника, гр. София (Широк център)
Местоположение:
Предлагам под наем тристаен апартамент с чиста площ от 70 кв.м, намиращ се в кв. Разсадника, на 4-ти етаж от 13 в санирана ЕПК сграда без ТЕЦ.
Жилището е на отлична локация – в близост до метростанция, трамвайни и автобусни линии, пазара на Красна поляна, детски градини, училища, голям парк и множество магазини от големите вериги и малки търговски обекти.
Описание на имота:
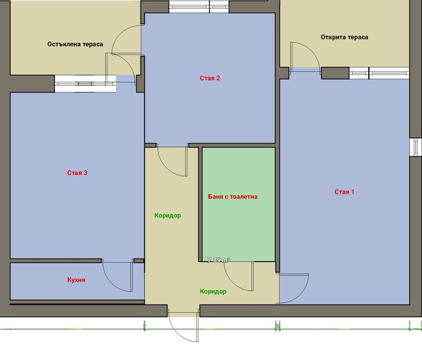
Апартаментът се състои от:
• Входно антре
• Хол
• Две самостоятелни спални
• кухненски бокс
• Баня с тоалетна
• Две тераси – пред всяка от стаите (едната е открита)
• Мазе
Изложение: Североизток, като едната стая има частично южно изложение. Всички помещения гледат към тиха вътрешна уличка с голям паркинг.
Обзавеждане и оборудване:
Апартаментът е напълно обзаведен и оборудван с всичко необходимо за комфортно живеене:
• Смарт телевизор - 65 инчов
• Пералня със сушилня, хладилник с фризер, готварска печка, миялна, микровълнова, кафемашина, кана за вода
• Бойлер 120 л.
• 2 климатика – Daikin и Toshiba
• 2 спални с легла (180/200)
• Холна гарнитура с фотьойли и 4 табуретки
• 4 гардероба, 2 скрина, ТВ шкаф, 2 нощни шкафчета, 2 скрина
• Разтегателна трапезна маса, 2 холни маси, кресла
При желание – възможност за премахване или добавяне на мебели/телевизор по договорка.
Сграда и общи части:
• ЕПК строителство
• Санирана фасада
• Без ТЕЦ
• Два асансьора – пътнически и товарен
• Входът е добре поддържан, с контролиран достъп и чип система
• Свободно паркиране пред и зад блока
Условия за наемане:
• Дългосрочен наем
• Само за частни лица
• Непушачи и без домашни любимци
• Огледи – само при сериозен интерес и след предварителна уговорка
• Брокери – само при условие, че не се заплаща комисионна от наемодателя и има подходящи наематели
За контакт и информация:
Анелия, телефон: 08******02
Местоположение:
Предлагам под наем тристаен апартамент с чиста площ от 70 кв.м, намиращ се в кв. Разсадника, на 4-ти етаж от 13 в санирана ЕПК сграда без ТЕЦ.
Жилището е на отлична локация – в близост до метростанция, трамвайни и автобусни линии, пазара на Красна поляна, детски градини, училища, голям парк и множество магазини от големите вериги и малки търговски обекти.
Описание на имота:
Апартаментът се състои от:
• Входно антре
• Хол
• Две самостоятелни спални
• кухненски бокс
• Баня с тоалетна
• Две тераси – пред всяка от стаите (едната е открита)
• Мазе
Изложение: Североизток, като едната стая има частично южно изложение. Всички помещения гледат към тиха вътрешна уличка с голям паркинг.
Обзавеждане и оборудване:
Апартаментът е напълно обзаведен и оборудван с всичко необходимо за комфортно живеене:
• Смарт телевизор - 65 инчов
• Пералня със сушилня, хладилник с фризер, готварска печка, миялна, микровълнова, кафемашина, кана за вода
• Бойлер 120 л.
• 2 климатика – Daikin и Toshiba
• 2 спални с легла (180/200)
• Холна гарнитура с фотьойли и 4 табуретки
• 4 гардероба, 2 скрина, ТВ шкаф, 2 нощни шкафчета, 2 скрина
• Разтегателна трапезна маса, 2 холни маси, кресла
При желание – възможност за премахване или добавяне на мебели/телевизор по договорка.
Сграда и общи части:
• ЕПК строителство
• Санирана фасада
• Без ТЕЦ
• Два асансьора – пътнически и товарен
• Входът е добре поддържан, с контролиран достъп и чип система
• Свободно паркиране пред и зад блока
Условия за наемане:
• Дългосрочен наем
• Само за частни лица
• Непушачи и без домашни любимци
• Огледи – само при сериозен интерес и след предварителна уговорка
• Брокери – само при условие, че не се заплаща комисионна от наемодателя и има подходящи наематели
За контакт и информация:
Анелия, телефон: 08******02
ID: 146063362
Контакт с продавача
xxx xxx xxx
Добавена 13 ноември 2025 г.
Отдава под наем тристаен апартамент в широк център София, кв. Разсадни
1300 лв.
Потребител
Локация
гр. София, Разсадника
Област София-град