Бизнес
Цена на кв.м: 1047.01
Брой етажи на сградата: 2
Квадратура: 234 кв.м
Квадратура на двора: 520 кв.м
Година на строителство: 2025 г.
Строителство: Тухла
Отопление: Електричество
Състояние на сградата: В строеж
Особености: канализация, паркинг, санирана
Описание
ОТ СОБСТВЕНИК! 12 минути до Панаира и центъра на град Пловдив!
Комплекс от 5 новоизграждащи еднофамилни къщи,всяка със собствен двор от 520 кв.м. и масивна ограда. Намира се в с.Рогош, общ.Марица, обл.Пловдив.
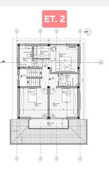
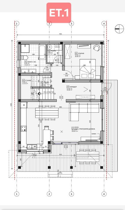
Голяма новопостроена двуетажна къща с РЗП 234 кв.м. (ет.1 - 124 кв.м., ет.2 - 110 кв.м. ) , самостоятелен двор от 520 кв.м. и изцяло ограден от всички страни с 96 метра ограда:
- 4 спални (ет.1- 14.50 кв.м., ет.2 - 17кв.м.,17кв.м.,18 кв.м.+4 кв.м. дрешник)
- 3 бани с тоалетна (ет.1 - 9 кв.м., ет.2 - 5 кв.м., 5.50 кв.м.)
- 1 мокро помещение - 3.2 кв.м.
- 1 склад - 2.4 кв.м.
- Голяма дневна с кухня - 38 кв.м.
- Закрита веранда - 30 кв.м.
- Тераса на ет.2 - 7кв.м.
- Широк коридор и стълбище
- Двускатен покрив , керемида Брамак
- Пвц дограма 6-камерна със стъклопакет 4 сезона
- Външна топлоизолация EPS 100mm
- 520 кв.м. самостоятелен двор с правилна правоъгълна форма, ограден от всички страни
- 78 метра масивна плътна ограда + 17 метра ажурна ограда
- 2 метални портала по 3 метра + входна врата
- Партида ток, вода и канализация
Имотът ще се издаде в степен на завършеност по БДС - на шпакловка и замазка.
Очакван акт 16 - март 2026г.
Комплекс от 5 новоизграждащи еднофамилни къщи,всяка със собствен двор от 520 кв.м. и масивна ограда. Намира се в с.Рогош, общ.Марица, обл.Пловдив.
Голяма новопостроена двуетажна къща с РЗП 234 кв.м. (ет.1 - 124 кв.м., ет.2 - 110 кв.м. ) , самостоятелен двор от 520 кв.м. и изцяло ограден от всички страни с 96 метра ограда:
- 4 спални (ет.1- 14.50 кв.м., ет.2 - 17кв.м.,17кв.м.,18 кв.м.+4 кв.м. дрешник)
- 3 бани с тоалетна (ет.1 - 9 кв.м., ет.2 - 5 кв.м., 5.50 кв.м.)
- 1 мокро помещение - 3.2 кв.м.
- 1 склад - 2.4 кв.м.
- Голяма дневна с кухня - 38 кв.м.
- Закрита веранда - 30 кв.м.
- Тераса на ет.2 - 7кв.м.
- Широк коридор и стълбище
- Двускатен покрив , керемида Брамак
- Пвц дограма 6-камерна със стъклопакет 4 сезона
- Външна топлоизолация EPS 100mm
- 520 кв.м. самостоятелен двор с правилна правоъгълна форма, ограден от всички страни
- 78 метра масивна плътна ограда + 17 метра ажурна ограда
- 2 метални портала по 3 метра + входна врата
- Партида ток, вода и канализация
Имотът ще се издаде в степен на завършеност по БДС - на шпакловка и замазка.
Очакван акт 16 - март 2026г.
ID: 144127466
Контакт с продавача
xxx xxx xxx
Добавена 16 февруари 2026 г.
ОТ СОБСТВЕНИК Самостоятелна двуетажна къща 234 м2 в Рогош обл. Пловдив
479178.35 лв. / 245000 €
Потребител
Локация
с. Рогош
Област Пловдив