Частна
Цена на кв.м: 1256.68
Брой етажи на сградата: 2
Квадратура: 187 кв.м
Квадратура на двора: 980 кв.м
Година на строителство: 2026 г.
Строителство: Тухла
Отопление: Електричество
Състояние на сградата: В строеж
Особености: паркинг, газификация, санирана, басейн, видеонаблюдение
Описание
Представяме ви модерен, енергийно ефективен проект за новопостроена къща в живописното село Пчелище, само на 12 км от Велико Търново.
Това е уникална възможност да притежавате дом, който съчетава съвременен комфорт, функционалност и качествено строителство в тих и зелен район.
Разпределение: Простор и светлина в два етажа с високи тавани и общо РЗП 187 м²
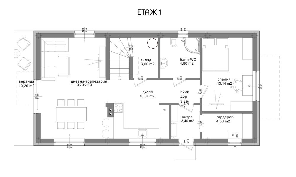
- Първи етаж – 90.71 м²:
- Просторна дневна с трапезария и кухня в отворен план – идеална за семейни моменти с директна връзка към живописния двор и басейна
- Спалня с гардеробна – за оптимален ред
- Баня с тоалетна
- Мокро помещение
- Антре
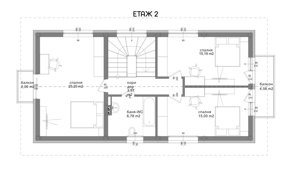
Втори етаж – 97.27 м²:
- Три просторни спални със самосъоятелни тераси
- Втора голяма баня с тоалетна
- Този дом осигурява лично пространство и възможност за персонализиране на интериора, така че да отговаря на нуждите и стила на своите обитатели.
Конструкция и довършителни работи:
При изграждането на тази къща се използват висококачествени материали и съвременни технологии, които гарантират здравина, енергийна ефективност и модерен комфорт.
- Зидария с тухли Porotherm 25 см
- Вътрешни стени с тухли Porotherm 12см
- Външна изолация EPS с висок клас силиконова мазилка на Röfix
- Под покривна изолация и двускатен покрив с безшевни улуци
- 7 камерна PVC дограма
- Вътрешни стени след зидария с гипсокартон и изолация
- Шпакловани и боядисани стени, цвят по избор за всяка стая при необходимост
- Подовете са изпълнени с армирана замазка, в която са заложени тръби за подово отопление.
- Гранитогрес в общите части
- Блиндирана входна врата и вътрешни врати
- монтирани
- Окабеляване за: интернет, ТВ, охранителна система, заложен е и кабел от покрива до котелното помещение за бъдеща фотоволтаична система
- ВиК - по проект
- Ел. - по проект с монтирани ключове и контакти
Двор и екстериор:
- Монтирана поливна система и капково напояване по оградата и за тревни площи.
- Монтирана цистерна за събиране на дъждовна вода с извод за автоматично ползване през wifi връзка за поливане на райграс, цвета и всичко във вашия нов двор.
- Озеленен двор
Допълнителна информация:
- Възможност за персонализиране на цветове и довършителни елементи.
- В цената не са включени: басейн, мебели и електроуреди
Начин на плащане: 20 % на ПД, и 80 % на акт 16
За кого е този имот?
За семейства, които търсят модерен и спокоен живот близко до града, но далеч от шума За хора, желаещи нов дом до Велико Търново
За инвестиция в качествен имот с растяща стойност.
Резервация на имота Имотът може да бъде резервиран и свален от продажба със заплащане на депозит, след което се прекратява провеждането на огледи с други купувачи и започва подготовка на документите за сключване на предварителен и окончателен договор.
Свържете се с нас за оглед и повече информация – възползвайте се от възможността да създадете своя мечтан дом.
Сайта на имота е villagehome.bg/new
Това е уникална възможност да притежавате дом, който съчетава съвременен комфорт, функционалност и качествено строителство в тих и зелен район.
Разпределение: Простор и светлина в два етажа с високи тавани и общо РЗП 187 м²
- Първи етаж – 90.71 м²:
- Просторна дневна с трапезария и кухня в отворен план – идеална за семейни моменти с директна връзка към живописния двор и басейна
- Спалня с гардеробна – за оптимален ред
- Баня с тоалетна
- Мокро помещение
- Антре
Втори етаж – 97.27 м²:
- Три просторни спални със самосъоятелни тераси
- Втора голяма баня с тоалетна
- Този дом осигурява лично пространство и възможност за персонализиране на интериора, така че да отговаря на нуждите и стила на своите обитатели.
Конструкция и довършителни работи:
При изграждането на тази къща се използват висококачествени материали и съвременни технологии, които гарантират здравина, енергийна ефективност и модерен комфорт.
- Зидария с тухли Porotherm 25 см
- Вътрешни стени с тухли Porotherm 12см
- Външна изолация EPS с висок клас силиконова мазилка на Röfix
- Под покривна изолация и двускатен покрив с безшевни улуци
- 7 камерна PVC дограма
- Вътрешни стени след зидария с гипсокартон и изолация
- Шпакловани и боядисани стени, цвят по избор за всяка стая при необходимост
- Подовете са изпълнени с армирана замазка, в която са заложени тръби за подово отопление.
- Гранитогрес в общите части
- Блиндирана входна врата и вътрешни врати
- монтирани
- Окабеляване за: интернет, ТВ, охранителна система, заложен е и кабел от покрива до котелното помещение за бъдеща фотоволтаична система
- ВиК - по проект
- Ел. - по проект с монтирани ключове и контакти
Двор и екстериор:
- Монтирана поливна система и капково напояване по оградата и за тревни площи.
- Монтирана цистерна за събиране на дъждовна вода с извод за автоматично ползване през wifi връзка за поливане на райграс, цвета и всичко във вашия нов двор.
- Озеленен двор
Допълнителна информация:
- Възможност за персонализиране на цветове и довършителни елементи.
- В цената не са включени: басейн, мебели и електроуреди
Начин на плащане: 20 % на ПД, и 80 % на акт 16
За кого е този имот?
За семейства, които търсят модерен и спокоен живот близко до града, но далеч от шума За хора, желаещи нов дом до Велико Търново
За инвестиция в качествен имот с растяща стойност.
Резервация на имота Имотът може да бъде резервиран и свален от продажба със заплащане на депозит, след което се прекратява провеждането на огледи с други купувачи и започва подготовка на документите за сключване на предварителен и окончателен договор.
Свържете се с нас за оглед и повече информация – възползвайте се от възможността да създадете своя мечтан дом.
Сайта на имота е villagehome.bg/new
ID: 145281707
Контакт с продавача
xxx xxx xxx
Добавена 27 декември 2025 г.
От собственик: Нова модерна къща "до ключ" в с. Пчелище – дом, проекти
459620.05 лв. / 235000 €
Потребител
Локация
с. Пчелище
Област Велико Търново