Бизнес
Цена на кв.м: 2065.52
Квадратура: 29 кв.м
Година на строителство: 2025 г.
Строителство: Тухла
Етаж: Партер
Брой етажи на сградата: 6
Последен етаж
Отопление: Електричество
Описание
БЕЗ КОМИСИОННА ОТ КУПУВАЧА!!!
Монс Пропъртис има удоволствието да ви представи за продажба офис , в новостроящ се затворен жилищен комплекс в кв. "Картала", гр. Велико Търново.
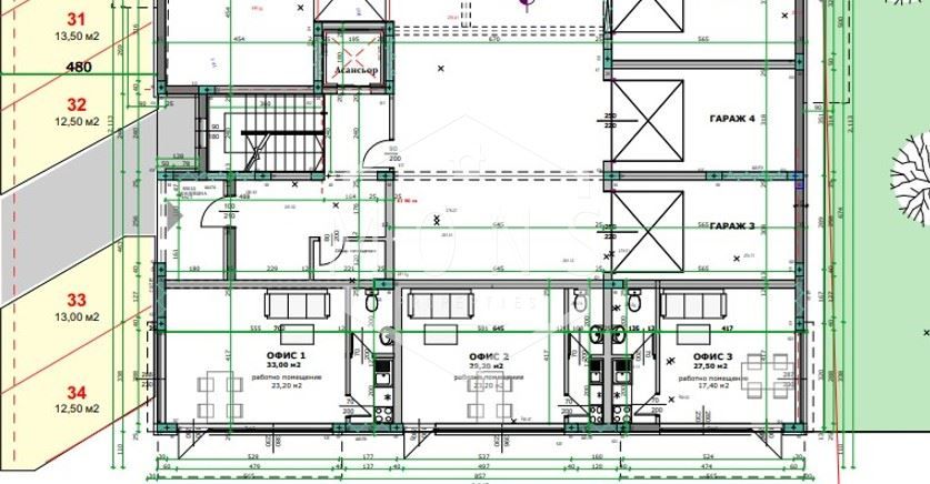
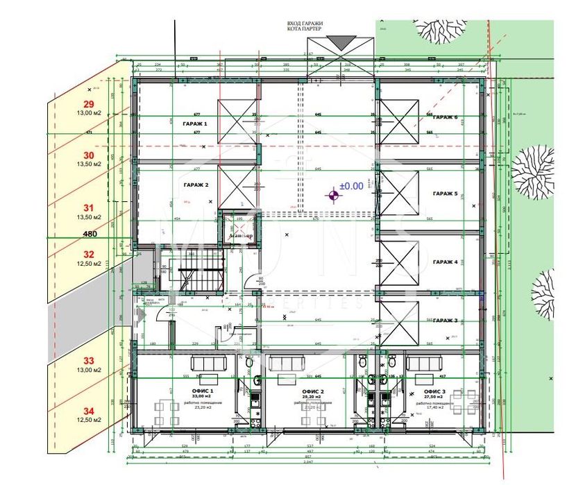
Застроената площ на имота е 29 кв.м.
Ситуиран на партер от шестетажна, новострояща се тухлена сграда с елегантна визия и висок клас материали, вложени в строителството.
Разпределението е както следва: помещение, с лице към улица подходящо за развитие на собствен бизнес или отдаване под наем.
В съседство се намира друг офис с площ от 27 кв.м., цена 56 900 евро, който също се предлага за продажба и може да бъде обединен с основния.
Намира се в СГРАДА ИЗТОК : Етап на строителство - АКТ 14
Очакван Акт 15 - Септември месец 2025г, очакван Акт 16 - май месец 2026г.
Опция за закупуване на подземен гараж или паркомясто с гъвкави схеми на плащане.
Естетика и комфорт - в две бутикови сгради ИЗТОК и ЗАПАД, намиращи се в престижния кв. “Картала”, гр. Велико Търново. В близост до парк и новострояща се детска градина.
-Контролиран достъп до комплекса чрез пръстов отпечатък или чип. Испански гранитогрес, естествен камък, ПВЦ дограма антрацит с троен стъклопакет, гръцки тухли KEBE, външна изолация BAUMIT, EPS стиропор, шпакловка и мазилка.
Кв. Картала е разположен в една от най-високите и панорамни части на Велико Търново, с красиви гледки към Царевец, Стара планина и река Янтра. Районът е предпочитан заради спокойната атмосфера, близостта до борови гори и добрата инфраструктура. Налични са детска градина, парк, магазини, супермаркет, аптека, градски транспорт, а през 2024–2025 г. се изграждат нова детска градина, нови улици, тротоари, паркинги и зелени площи. Районът се развива динамично, с общински инвестиции в инфраструктура и нови зони за отдих.
Кв. Картала е чудесен избор както за семейства с деца, така и за инвеститори.
Код на офертата: 0137
Ние от Монс Пропъртис можем да Ви съдействаме със следните услуги:
-Безплатно посредничество при кредитиране
от всички банки
-Юридически услуги
Office , in a newly constructed gated residential complex in sq. "Kartala", town of . Veliko Tarnovo.
NO COMMISSION FROM THE BUYER!!!
Mons Properties is pleased to present to you for sale office 2, in a newly built gated residential complex. "Kartala", town of. The property is located in a new residential complex in Kartalovo.
The total area of the property is 29 sq.m.
Situated on the ground floor of a six-storey, newly constructed brick building with elegant appearance and high-end materials used in the construction.
The layout is as follows: premises facing the street suitable for developing your own business or renting.
In the neighborhood there is a second office with an area of 27 sq.m., which is also offered for sale and can be combined with the main one.
Located in BUILDING EAST : Stage of construction - ACT 14
Expected Act 15-September 2025, expected Act 16-May 2026.
Option to purchase underground garage or parking space with flexible payment schemes.
Aesthetics and comfort - in two boutique buildings EAST and WEST, located in the prestigious district of. "Kartala", the town of. The property is located in the prestigious location of Kartal. Close to a park and a newly built kindergarten.
-Controlled access to the complex via fingerprint or chip. Spanish granite, natural stone, PVC windows anthracite with triple glazing, Greek bricks KEBE, external insulation BAUMIT, EPS styrofoam, plaster and plaster.
Kv. Kartala is located in one of the highest and panoramic parts of Veliko Tarnovo, with beautiful views of Tsarevets, the Balkan Mountains and the Yantra River. The area is preferred for its peaceful atmosphere, proximity to pine forests and good infrastructure. There is a kindergarten, park, shops, supermarket, pharmacy, public transport, and in 2024-2025 a new kindergarten, new streets, sidewalks, parking lots and green areas are being built. The area is developing dynamically, with municipal investment in infrastructure and new recreational areas.
Kv. Kartala is a great choice for both families with children and investors.
0137
We at Mons Pr
Монс Пропъртис има удоволствието да ви представи за продажба офис , в новостроящ се затворен жилищен комплекс в кв. "Картала", гр. Велико Търново.
Застроената площ на имота е 29 кв.м.
Ситуиран на партер от шестетажна, новострояща се тухлена сграда с елегантна визия и висок клас материали, вложени в строителството.
Разпределението е както следва: помещение, с лице към улица подходящо за развитие на собствен бизнес или отдаване под наем.
В съседство се намира друг офис с площ от 27 кв.м., цена 56 900 евро, който също се предлага за продажба и може да бъде обединен с основния.
Намира се в СГРАДА ИЗТОК : Етап на строителство - АКТ 14
Очакван Акт 15 - Септември месец 2025г, очакван Акт 16 - май месец 2026г.
Опция за закупуване на подземен гараж или паркомясто с гъвкави схеми на плащане.
Естетика и комфорт - в две бутикови сгради ИЗТОК и ЗАПАД, намиращи се в престижния кв. “Картала”, гр. Велико Търново. В близост до парк и новострояща се детска градина.
-Контролиран достъп до комплекса чрез пръстов отпечатък или чип. Испански гранитогрес, естествен камък, ПВЦ дограма антрацит с троен стъклопакет, гръцки тухли KEBE, външна изолация BAUMIT, EPS стиропор, шпакловка и мазилка.
Кв. Картала е разположен в една от най-високите и панорамни части на Велико Търново, с красиви гледки към Царевец, Стара планина и река Янтра. Районът е предпочитан заради спокойната атмосфера, близостта до борови гори и добрата инфраструктура. Налични са детска градина, парк, магазини, супермаркет, аптека, градски транспорт, а през 2024–2025 г. се изграждат нова детска градина, нови улици, тротоари, паркинги и зелени площи. Районът се развива динамично, с общински инвестиции в инфраструктура и нови зони за отдих.
Кв. Картала е чудесен избор както за семейства с деца, така и за инвеститори.
Код на офертата: 0137
Ние от Монс Пропъртис можем да Ви съдействаме със следните услуги:
-Безплатно посредничество при кредитиране
от всички банки
-Юридически услуги
Office , in a newly constructed gated residential complex in sq. "Kartala", town of . Veliko Tarnovo.
NO COMMISSION FROM THE BUYER!!!
Mons Properties is pleased to present to you for sale office 2, in a newly built gated residential complex. "Kartala", town of. The property is located in a new residential complex in Kartalovo.
The total area of the property is 29 sq.m.
Situated on the ground floor of a six-storey, newly constructed brick building with elegant appearance and high-end materials used in the construction.
The layout is as follows: premises facing the street suitable for developing your own business or renting.
In the neighborhood there is a second office with an area of 27 sq.m., which is also offered for sale and can be combined with the main one.
Located in BUILDING EAST : Stage of construction - ACT 14
Expected Act 15-September 2025, expected Act 16-May 2026.
Option to purchase underground garage or parking space with flexible payment schemes.
Aesthetics and comfort - in two boutique buildings EAST and WEST, located in the prestigious district of. "Kartala", the town of. The property is located in the prestigious location of Kartal. Close to a park and a newly built kindergarten.
-Controlled access to the complex via fingerprint or chip. Spanish granite, natural stone, PVC windows anthracite with triple glazing, Greek bricks KEBE, external insulation BAUMIT, EPS styrofoam, plaster and plaster.
Kv. Kartala is located in one of the highest and panoramic parts of Veliko Tarnovo, with beautiful views of Tsarevets, the Balkan Mountains and the Yantra River. The area is preferred for its peaceful atmosphere, proximity to pine forests and good infrastructure. There is a kindergarten, park, shops, supermarket, pharmacy, public transport, and in 2024-2025 a new kindergarten, new streets, sidewalks, parking lots and green areas are being built. The area is developing dynamically, with municipal investment in infrastructure and new recreational areas.
Kv. Kartala is a great choice for both families with children and investors.
0137
We at Mons Pr
ID: 144909370
Контакт с продавача
xxx xxx xxx
