Бизнес
Цена на кв.м: 1250
Брой етажи на сградата: 2
Квадратура: 280 кв.м
Квадратура на двора: 290 кв.м
Година на строителство: 2026 г.
Строителство: Тухла
Отопление: Електричество
Състояние на сградата: В строеж
Особености: гараж, санирана
Описание
оф.24210
ГАРАЖ В ЦЕНАТА - 22.75кв.м ! ДВОР – 290 кв.м! САМОСТОЯТЕЛЕН ВХОД! АКТ 14!
Предлагаме Ви да закупите две къщи-близнаци, всяка на цена 350 000 €, състоящи се от:
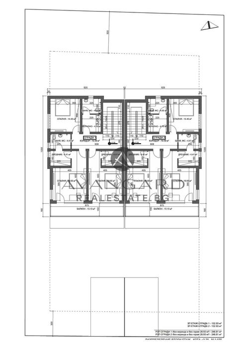
Първи етаж: Просторен хол с кухненски бокс и трапезария (50 кв.м), спалня с баня и тоалетна, килер, отделна тоалетна, входно антре, веранда (26.85 кв.м) и вътрешно стълбище към втория етаж.
Втори етаж: Голяма спалня с дрешник и баня с тоалетна, втора спалня с дрешник, трета спалня, отделна баня с тоалетна, перално помещение и тераса.
Жилището, което Ви предлагаме да закупите, ще бъде издадено до шпакловка и замазка, което Ви дава пълната възможност да го довършите и обзаведете според Вашия вкус.
Намира се на спокойна и комуникативна локация – в район с ниско застрояване, далеч от шума, но в същото време и в близост до града.
Всяка от къщите разполага с гараж (22.75 кв.м), който е включен в цената.
Авангард Риъл Естейт предлага Висока сигурност при покупка на имот и цялостно съдействие до финализиране на сделката пред нотариус.
ГАРАЖ В ЦЕНАТА - 22.75кв.м ! ДВОР – 290 кв.м! САМОСТОЯТЕЛЕН ВХОД! АКТ 14!
Предлагаме Ви да закупите две къщи-близнаци, всяка на цена 350 000 €, състоящи се от:
Първи етаж: Просторен хол с кухненски бокс и трапезария (50 кв.м), спалня с баня и тоалетна, килер, отделна тоалетна, входно антре, веранда (26.85 кв.м) и вътрешно стълбище към втория етаж.
Втори етаж: Голяма спалня с дрешник и баня с тоалетна, втора спалня с дрешник, трета спалня, отделна баня с тоалетна, перално помещение и тераса.
Жилището, което Ви предлагаме да закупите, ще бъде издадено до шпакловка и замазка, което Ви дава пълната възможност да го довършите и обзаведете според Вашия вкус.
Намира се на спокойна и комуникативна локация – в район с ниско застрояване, далеч от шума, но в същото време и в близост до града.
Всяка от къщите разполага с гараж (22.75 кв.м), който е включен в цената.
Авангард Риъл Естейт предлага Висока сигурност при покупка на имот и цялостно съдействие до финализиране на сделката пред нотариус.
ID: 146011834
Контакт с продавача
xxx xxx xxx

