Бизнес
Цена на кв.м: 1204.78
Тип апартамент: 4 - стаен
Квадратура: 144 кв.м
Година на строителство: 2027 г.
Строителство: Тухла
Етаж: 4-ти
Брой етажи на сградата: 4
Последен етаж
Отопление: Електричество
Обзавеждане: Необзаведен
Състояние на сградата: В строеж
Преход: Без преход
Особености: асансьор, саниран
Описание
оф.23159
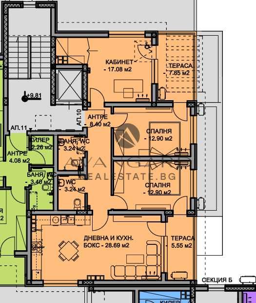
ПРОСТОРНИ СТАИ! ВЪЗМОЖНОСТ ЗА ЗАКУПУВАНЕ НА ПАРКОМЕСТА И ГАРАЖИ! Представяме Ви ЧЕТИРИСТАЕН апартамент в новострояща се сграда със следното разпределение: хол с кухня и трапезария, ТРИ СПАЛНИ, ДВЕ БАНИ С ТОАЛЕТНИ, входно антре, две тераси и прилежащо избено помещение. Жилището ще бъде завършено до шпакловка и замазка, което Ви дава възможност да го довършите и обзаведете по ваш вкус. Намира се в близост до училища, детски градини, магазини и удобен транспорт. Има възможност за закупуване на паркоместа и гаражи.
Авангард Риъл Естейт предлага Висока сигурност при покупка на имот и цялостно съдействие до финализиране на сделката пред нотариус.
ПРОСТОРНИ СТАИ! ВЪЗМОЖНОСТ ЗА ЗАКУПУВАНЕ НА ПАРКОМЕСТА И ГАРАЖИ! Представяме Ви ЧЕТИРИСТАЕН апартамент в новострояща се сграда със следното разпределение: хол с кухня и трапезария, ТРИ СПАЛНИ, ДВЕ БАНИ С ТОАЛЕТНИ, входно антре, две тераси и прилежащо избено помещение. Жилището ще бъде завършено до шпакловка и замазка, което Ви дава възможност да го довършите и обзаведете по ваш вкус. Намира се в близост до училища, детски градини, магазини и удобен транспорт. Има възможност за закупуване на паркоместа и гаражи.
Авангард Риъл Естейт предлага Висока сигурност при покупка на имот и цялостно съдействие до финализиране на сделката пред нотариус.
ID: 144181344
xxx xxx xxx

