Бизнес
Цена на кв.м: 1675.79
Брой етажи на сградата: 2
Квадратура: 219 кв.м
Квадратура на двора: 560 кв.м
Година на строителство: 2027 г.
Строителство: Тухла
Отопление: Електричество
Състояние на сградата: В строеж
Особености: санирана
Описание
оф.22367
Предлагаме Ви ДВУЕТАЖНА КЪЩА, в село Марково. Къщата е с РЗП 219 кв. и ДВОР 560кв. Плюс 1/3 идеални части от самостоятелен път който обслужва три къщи които са ситуирани в три парцела.
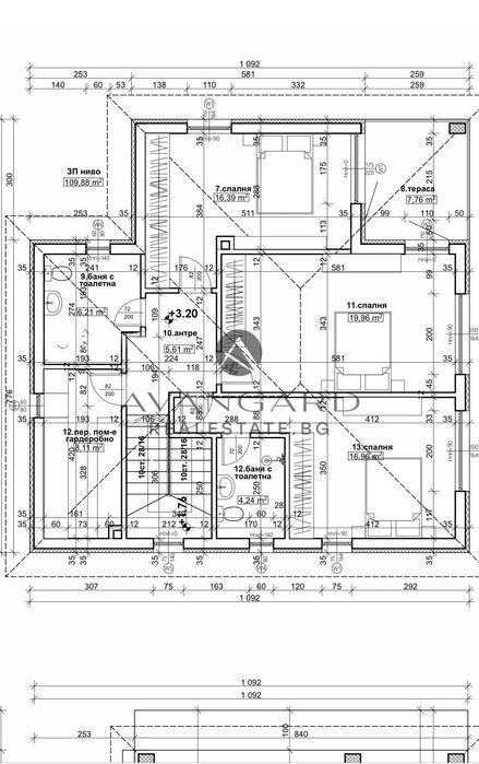
Етаж първи има следното разпределение: ВСЕКИДНЕВНА С КУХНЯ И ТРАПЕЗАРИЯ, ТОАЛЕТНА, СКЛАДОВО ПОМЕЩЕНИЕ, ВХОДНО АНТРЕ и ГОЛЯМА ВЕРАНДА С ГЛЕДКА КЪМ ГРАДА. Етаж втори има следното разпределение: ТРИ СПАЛНИ, ДВЕ БАНИ С ТОАЛЕТНИ, ПЕРАЛНО ПОМЕЩЕНИЕ С ГАРДЕРОБНА И ТЕРАСА. Къщата се строи с висок клас материали : тухли WIENERBERGER Porotherm 25, покрив ТОНДАХ с 30 години гаранция, висок клас PVC дограма. Къщата ще бъде завършена до края на 2025г и ще бъде издадена по БДС на шпакловка и замазка, което Ви позволява да я обзаведете изцяло по Ваш вкус!
Авангард Риъл Естейт предлага Висока сигурност при покупка на имот и цялостно съдействие до финализиране на сделката пред нотариус.
Предлагаме Ви ДВУЕТАЖНА КЪЩА, в село Марково. Къщата е с РЗП 219 кв. и ДВОР 560кв. Плюс 1/3 идеални части от самостоятелен път който обслужва три къщи които са ситуирани в три парцела.
Етаж първи има следното разпределение: ВСЕКИДНЕВНА С КУХНЯ И ТРАПЕЗАРИЯ, ТОАЛЕТНА, СКЛАДОВО ПОМЕЩЕНИЕ, ВХОДНО АНТРЕ и ГОЛЯМА ВЕРАНДА С ГЛЕДКА КЪМ ГРАДА. Етаж втори има следното разпределение: ТРИ СПАЛНИ, ДВЕ БАНИ С ТОАЛЕТНИ, ПЕРАЛНО ПОМЕЩЕНИЕ С ГАРДЕРОБНА И ТЕРАСА. Къщата се строи с висок клас материали : тухли WIENERBERGER Porotherm 25, покрив ТОНДАХ с 30 години гаранция, висок клас PVC дограма. Къщата ще бъде завършена до края на 2025г и ще бъде издадена по БДС на шпакловка и замазка, което Ви позволява да я обзаведете изцяло по Ваш вкус!
Авангард Риъл Естейт предлага Висока сигурност при покупка на имот и цялостно съдействие до финализиране на сделката пред нотариус.
ID: 147736839
Контакт с продавача
xxx xxx xxx

