Бизнес
Цена на кв.м: 655.02
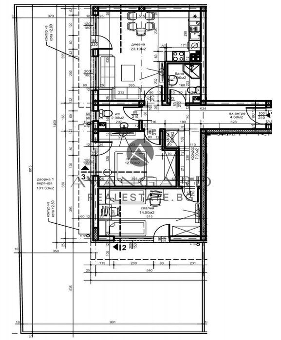
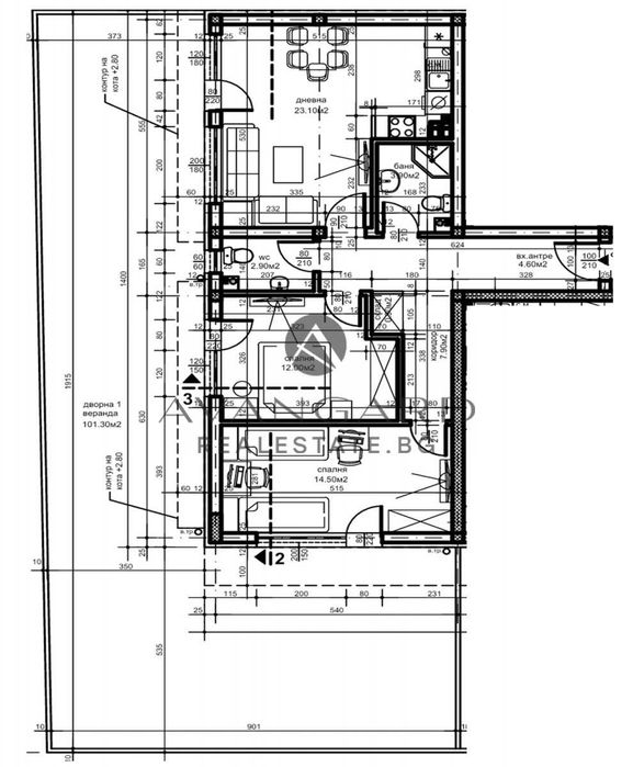
Тип апартамент: 3 - стаен
Квадратура: 197 кв.м
Година на строителство: 2027 г.
Строителство: Тухла
Етаж: 1-ви
Брой етажи на сградата: 4
Последен етаж
Отопление: Електричество
Обзавеждане: Необзаведен
Състояние на сградата: В строеж
Преход: С преход
Особености: асансьор, саниран
Описание
оф.22150
НИСКА СГРАДА НА САМО ТРИ ЖИЛИЩНИ ЕТАЖА !
ПРЕДЛАГАМЕ Ви да инвестирате във Вашето бъдеще . Стартови продажби на цени от 820 €кв.м. ( очаквана цена към акт 16 - 1500€+кв.м. или гарантирани над 50% марж на цената при задържане на сегашните нива на пазара ).
ЦЕНИ ОТ 820€ кв.м ДО 1090€кв.м! ФИКСИРАНА ЦЕНА БЕЗ ПРОМЯНА СПОРЕД ИНДЕКСАЦИИ ИЛИ ИНФЛАЦИЯ ДО КРАЯ НА СТРОИТЕЛСТВОТО ! ВЪЗМОЖНОСТ ЗА ПОКУПКА ЧРЕЗ БАНКОВ КРЕДИТ ! Предлагаме Ви апартаменти в новострояща се ниска сграда , разположена на тиха и спокойна локация в гр. Пловдив , Район ЮЖЕН , кв. Беломорски . Утвърден строител с 32г. опит , безупречна репутация и 40 построени и реализирани сгради ! Инвеститора строи върху свой терен , без обезщетение и със собствени средства БЕЗ КРЕДИТИ !
Цена на кв.м. от 820 € до 1090€ според етажа и изложението на апартамента.
Двустайни апартаменти на цена от 64 899€ за 59кв.м.
Тристайни апартаменти на цена от 89 900€ за 110кв.м.
Възможност за покупка на надземни гаражи и паркоместа.
Изключително удобна схема на плащане !Разсрочено плащане в процес на строежа :
- Първа вноска - 30% - при подписване на предварителен договор.
- Втора вноска - 20% - на средата на сграда
- Трета вноска - 20% - на акт 14
- Четвърта вноска - 20% - 3месеца след акт 14
- Пета вноска - 10% - когато е готова сградата
АКТ 16 се очаква до края на 2027г. , началото на 2028г.
Авангард Риъл Естейт предлага Висока сигурност при покупка на имот и цялостно съдействие до финализиране на сделката пред нотариус.
НИСКА СГРАДА НА САМО ТРИ ЖИЛИЩНИ ЕТАЖА !
ПРЕДЛАГАМЕ Ви да инвестирате във Вашето бъдеще . Стартови продажби на цени от 820 €кв.м. ( очаквана цена към акт 16 - 1500€+кв.м. или гарантирани над 50% марж на цената при задържане на сегашните нива на пазара ).
ЦЕНИ ОТ 820€ кв.м ДО 1090€кв.м! ФИКСИРАНА ЦЕНА БЕЗ ПРОМЯНА СПОРЕД ИНДЕКСАЦИИ ИЛИ ИНФЛАЦИЯ ДО КРАЯ НА СТРОИТЕЛСТВОТО ! ВЪЗМОЖНОСТ ЗА ПОКУПКА ЧРЕЗ БАНКОВ КРЕДИТ ! Предлагаме Ви апартаменти в новострояща се ниска сграда , разположена на тиха и спокойна локация в гр. Пловдив , Район ЮЖЕН , кв. Беломорски . Утвърден строител с 32г. опит , безупречна репутация и 40 построени и реализирани сгради ! Инвеститора строи върху свой терен , без обезщетение и със собствени средства БЕЗ КРЕДИТИ !
Цена на кв.м. от 820 € до 1090€ според етажа и изложението на апартамента.
Двустайни апартаменти на цена от 64 899€ за 59кв.м.
Тристайни апартаменти на цена от 89 900€ за 110кв.м.
Възможност за покупка на надземни гаражи и паркоместа.
Изключително удобна схема на плащане !Разсрочено плащане в процес на строежа :
- Първа вноска - 30% - при подписване на предварителен договор.
- Втора вноска - 20% - на средата на сграда
- Трета вноска - 20% - на акт 14
- Четвърта вноска - 20% - 3месеца след акт 14
- Пета вноска - 10% - когато е готова сградата
АКТ 16 се очаква до края на 2027г. , началото на 2028г.
Авангард Риъл Естейт предлага Висока сигурност при покупка на имот и цялостно съдействие до финализиране на сделката пред нотариус.
ID: 143874635
Контакт с продавача
xxx xxx xxx

