Бизнес
Цена на кв.м: 1287.97
Брой етажи на сградата: 2
Квадратура: 250 кв.м
Квадратура на двора: 214 кв.м
Година на строителство: 2026 г.
Строителство: Тухла
Отопление: Локално
Състояние на сградата: В строеж
Особености: канализация, паркинг
Описание
Авифа ЕООД, продава две двуфамилни къщи намиращи се в с. Мусачево.
Село Мусачево е разположено в източната част на Софийското поле, на 22 км на изток от София, на 3 км на запад от град Елин Пелин, на 9 км северно от магистрала Тракия и на 7 км южно от магистрала Хемус.
Имотът се намира на 50м. от центъра и читалището на селото, 35м. от автобусна спирка. В близост има детска градина, училище и супермаркет. Това го прави идеално място за живеене на млади семейства с деца.
Имотите са със следните площи:
Къща 1- РЗП Жилище - 250,4кв. м.
дворно място - 214 кв. м.
Къща 2 - РЗП жилище - 270,4кв. м.
дворно място - 260 кв. м.
Къща 3 - РЗП жилище - 251,9 кв.м.
дворно място - 462 кв.м.
Къща 4 - РЗП жилище - 272,1 кв.м.
дворно място - 370 кв.м.
Реалното РЗП на всяка къща е 290.6 кв.м.
Всяка къща се състои от:
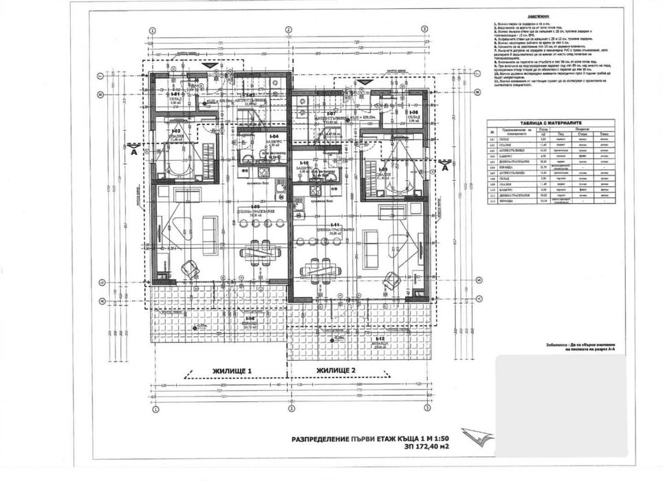
- Първи етаж всекидневна, трапезария, кухненски бокс, баня с тоалетна, склад, спалня, веранда.
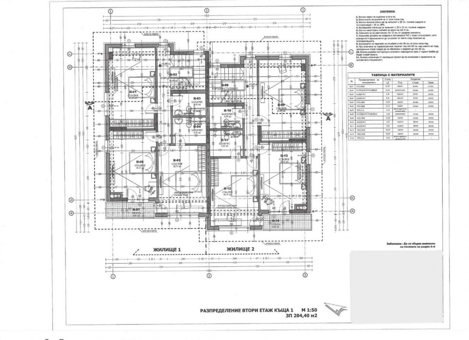
- Втори етаж - три спални, две бани с тоалетна, коридор, тераса.
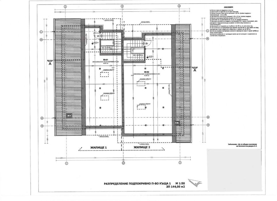
-Използваемо подпокривно пространство, с две стаи, баня с тоалетна, мокро и складово помещение.
В обявата е обявена къщата с най-малък двор.
Цената е с ДДС и е в сила до края на 2025 година. Очаквано Удостоверение за въвеждане в експлоатация /акт 16, през 2026г.
Предлагаме интериорен дизайн и довършителни дейности до ключ.
За клиенти на фирмата консултация относно цялата необходима документация за осъществяване на покупко-продажбата на недвижимият имот. При банково кредитиране, актуална информация и съдействие.
Село Мусачево е разположено в източната част на Софийското поле, на 22 км на изток от София, на 3 км на запад от град Елин Пелин, на 9 км северно от магистрала Тракия и на 7 км южно от магистрала Хемус.
Имотът се намира на 50м. от центъра и читалището на селото, 35м. от автобусна спирка. В близост има детска градина, училище и супермаркет. Това го прави идеално място за живеене на млади семейства с деца.
Имотите са със следните площи:
Къща 1- РЗП Жилище - 250,4кв. м.
дворно място - 214 кв. м.
Къща 2 - РЗП жилище - 270,4кв. м.
дворно място - 260 кв. м.
Къща 3 - РЗП жилище - 251,9 кв.м.
дворно място - 462 кв.м.
Къща 4 - РЗП жилище - 272,1 кв.м.
дворно място - 370 кв.м.
Реалното РЗП на всяка къща е 290.6 кв.м.
Всяка къща се състои от:
- Първи етаж всекидневна, трапезария, кухненски бокс, баня с тоалетна, склад, спалня, веранда.
- Втори етаж - три спални, две бани с тоалетна, коридор, тераса.
-Използваемо подпокривно пространство, с две стаи, баня с тоалетна, мокро и складово помещение.
В обявата е обявена къщата с най-малък двор.
Цената е с ДДС и е в сила до края на 2025 година. Очаквано Удостоверение за въвеждане в експлоатация /акт 16, през 2026г.
Предлагаме интериорен дизайн и довършителни дейности до ключ.
За клиенти на фирмата консултация относно цялата необходима документация за осъществяване на покупко-продажбата на недвижимият имот. При банково кредитиране, актуална информация и съдействие.
ID: 145698535
Контакт с продавача
xxx xxx xxx