Бизнес
Цена на кв.м: 1250
Брой етажи на сградата: 2
Квадратура: 188 кв.м
Квадратура на двора: 980 кв.м
Година на строителство: 2026 г.
Строителство: Тухла
Отопление: Електричество
Състояние на сградата: В строеж
Особености: СОТ, канализация, видеонаблюдение
Описание
Представяме ви, проект за нова къща в живописното село Пчелище, предлагайки ви уникална възможност за създаване на уютен и модерен дом, съчетаващ комфорт и функционалност. С обща разгъната застроена площ от 187.98 кв.м., тази къща е проектирана така, че да осигури максимално удобство и простор за своите обитатели. Крайният срок за завършване е юни 2026 г. Схемата за плащане е 30% първоначална вноска и 70% при издадено Удостоверение за въвеждане в експлоатация.
РАЗПРЕДЕЛНИЕ
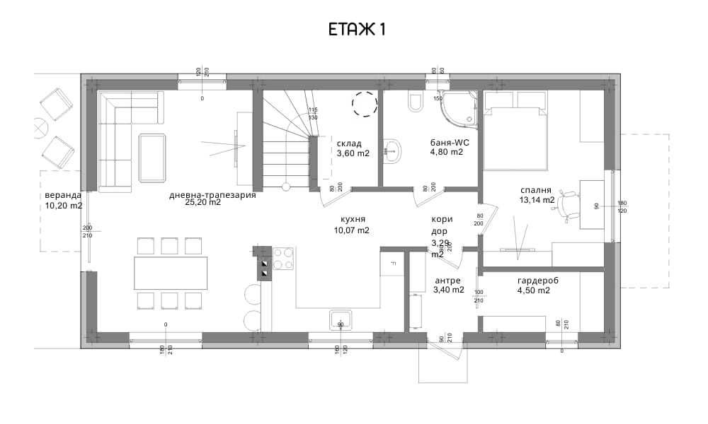
Първи етаж (90.71 кв.м.):
- Просторна кухня, която плавно преминава в дневна-трапезария, идеална за семейни събирания и забавления;
- Удобна спалня с гардеробна, предоставяща достатъчно място за съхранение;
- Складово помещение срещу кухнята за допълнително пространство за съхранение;
- Баня с тоалетна на замазка.
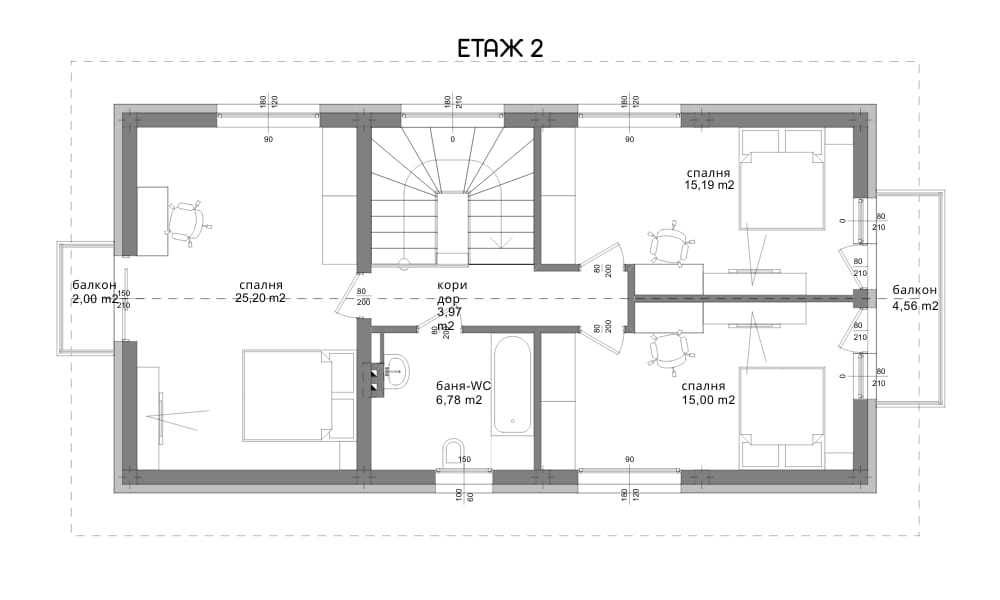
Втори етаж (97.27 кв.м.):
- Три светли и просторни спални с балкони, всяка от които може да бъде персонализирана според вашите предпочитания;
- Втора баня с тоалетна, също на замазка;
Довършителни работи:
- Стените са изградени с висококачествени тухли „Porotherm“ с дебелина 25 см., осигуряващи отлична топлоизолация; Вътрешните стени са с тухли Porotherm 12см
- Външна изолация EPS с висок клас силиконова мазилка на Röfix;
- Вътрешната изолация и гипсокартон на конструкция осигуряват комфортна среда през всички сезони.
Покрив:
- Двускатен покрив с безшевни улуци с подпокривна изолация, която допринася за енергийната ефективност на дома;
- Висококачествени безшевни улуци, които гарантират надеждно отвеждане на водата;
- Цистерна за събиране на дъждовна вода, готова за употреба, с допълнителен извод за захранване при необходимост.
Двор:
- Капково напояване по цялата ограда и поливна система за райграс и насаждения, което осигурява лесна поддръжка на зелените площи;
- Изводи на тапа за допълнителни отклонения при необходимост.
Интериор:
- 7 камерна PVC дограма с възможност за избор на цвят;
- Подово отопление с изводи и радиатори на тапа;
- Циментова замазка след подовото и гранитогрес за подова настилка;
- Шпакловани и боядисани стени с цвят по ваш избор;
- Монтирани врати с цвят по избор и блиндирана входна врата с цвят по избор;
- Вградени кабели за интернет и телевизия, както и за "Smart Home" и охранителна система, които правят дома ви модерен и безопасен;
- Предварително заложени изводи за климатици, готови за монтаж при нужда.
Тази къща в село Пчелище е перфектният избор за тези, които търсят съвременен комфорт и спокойствие сред природата. Със своето внимателно планирано разпределение и висококачествени материали, тя предлага всичко необходимо за един уютен и функционален дом.
В цената не са включени: басейн, мебели и електроуреди.
Начин на плащане: 20 % на предварителен договор и 80 % при издаден акт 16
РАЗПРЕДЕЛНИЕ
Първи етаж (90.71 кв.м.):
- Просторна кухня, която плавно преминава в дневна-трапезария, идеална за семейни събирания и забавления;
- Удобна спалня с гардеробна, предоставяща достатъчно място за съхранение;
- Складово помещение срещу кухнята за допълнително пространство за съхранение;
- Баня с тоалетна на замазка.
Втори етаж (97.27 кв.м.):
- Три светли и просторни спални с балкони, всяка от които може да бъде персонализирана според вашите предпочитания;
- Втора баня с тоалетна, също на замазка;
Довършителни работи:
- Стените са изградени с висококачествени тухли „Porotherm“ с дебелина 25 см., осигуряващи отлична топлоизолация; Вътрешните стени са с тухли Porotherm 12см
- Външна изолация EPS с висок клас силиконова мазилка на Röfix;
- Вътрешната изолация и гипсокартон на конструкция осигуряват комфортна среда през всички сезони.
Покрив:
- Двускатен покрив с безшевни улуци с подпокривна изолация, която допринася за енергийната ефективност на дома;
- Висококачествени безшевни улуци, които гарантират надеждно отвеждане на водата;
- Цистерна за събиране на дъждовна вода, готова за употреба, с допълнителен извод за захранване при необходимост.
Двор:
- Капково напояване по цялата ограда и поливна система за райграс и насаждения, което осигурява лесна поддръжка на зелените площи;
- Изводи на тапа за допълнителни отклонения при необходимост.
Интериор:
- 7 камерна PVC дограма с възможност за избор на цвят;
- Подово отопление с изводи и радиатори на тапа;
- Циментова замазка след подовото и гранитогрес за подова настилка;
- Шпакловани и боядисани стени с цвят по ваш избор;
- Монтирани врати с цвят по избор и блиндирана входна врата с цвят по избор;
- Вградени кабели за интернет и телевизия, както и за "Smart Home" и охранителна система, които правят дома ви модерен и безопасен;
- Предварително заложени изводи за климатици, готови за монтаж при нужда.
Тази къща в село Пчелище е перфектният избор за тези, които търсят съвременен комфорт и спокойствие сред природата. Със своето внимателно планирано разпределение и висококачествени материали, тя предлага всичко необходимо за един уютен и функционален дом.
В цената не са включени: басейн, мебели и електроуреди.
Начин на плащане: 20 % на предварителен договор и 80 % при издаден акт 16
ID: 144571886
Контакт с продавача
xxx xxx xxx
