Бизнес
Цена на кв.м: 32.26
Тип апартамент: 2 - стаен
Квадратура: 31 кв.м
Година на строителство: 2026 г.
Строителство: Тухла
Етаж: 2-ри
Брой етажи на сградата: 5
Последен етаж
Отопление: Електричество
Обзавеждане: Необзаведен
Състояние на сградата: В строеж
Преход: Без преход
Особености: асансьор, саниран, гараж, паркинг, лизинг, видеонаблюдение
Описание
Агенция за недвижими имоти „МИРА“ има удоволствието да Ви представи апартаменти в НОВА ЛУКСОЗНА СГРАДА, разположена в кв. Изгрев, гр. Свиленград.
Имаме удоволствието да ви представим Жилищен Комплекс „ЛАС ВЕГАС“, разположен в кв. Изгрев, гр. Свиленград на пешеходно разстояние от 5 минути от центъра на града.
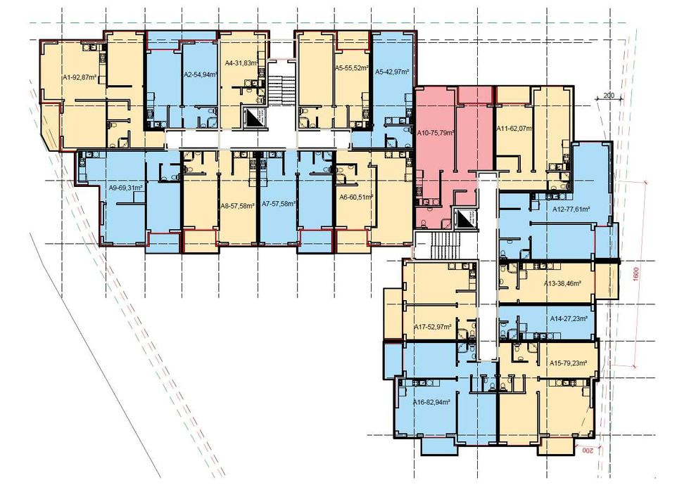
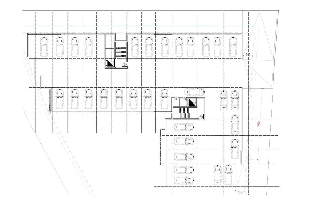
Комплексът разполага със студия, двустайни и тристайни апартаменти .Квадратурите на апартаментите са от 30.65 м2 до 104.52 м2, разпределени на пет жилищни етажа. Гъвкава схема на плащане. В допълнение може да закупите външни паркомясто, гаражи/паркоместа на подземно ниво . Сградата е проектирана с два входа с луксозни общи части. За сигурността на живущите са предвидени видеонаблюдение и контролиран достъп за външни лица на входа на сградата. Изключително КОМУНИКАТИВНА локация. Детска градина, училище, здравни заведения, аптеки, магазини, развлекателни заведения и паркове за отдих, които са в непосредствена близост. На 5минути пешеходно от центъра на града. Апартаментите са подходящи както за лично ползване така и с цел инвестиция отдаване под наем с висока доходност.
Имотът ще бъде изграден от доказани инвеститори, които залагат само и изцяло на Модерно и качествено строителство, при спазване на съвременните европейски стандарти в бранша. Висок клас на използваните материали. Монолитна стоманобетонна конструкция, оразмерена на земетръс. Външни и вътрешни стени от червени керамични тухли на водещ европейски производител. Осигурени топло-, хидро- и шумо- изолации. Вътрешни мазилки и замазки. Инсталации, изпълнени със сертифицирани материали на реномирани производители. Стилна фасада с класическа градска архитектура. Качествена дограма с високо-енергийни и ниско-емисионни стъкла. Красиви, здрави и сигурни външни врати. Представителни общи части с модерни вътрешни мазилки в топли цветове и настилки по стълбища и коридори от естествен камък и най-висок клас асансьор. Материали, осигуряващи лесна поддръжка, дълговечност и чувство за уют в дома.
НЕ ОТЛАГАЙТЕ ПОКУПКАТА НА НОВИЯТ СИ ДОМ!
НАПРАВЕТЕ ГО ОЩЕ СЕГА!! ЗАПАЗЕТЕ ИМОТА СРЕЩУ 1000лв!!!
РАЗСРОЧЕНО ПЛАЩАНЕ БЕЗ ОСКЪПЯВАНЕ!!!
За повече информация и оглед се обадете на посочените телефони!
Оказваме пълно съдействие за банково кредитиране при най-добри условия, висока пазарна оценка и цялостна юридическа проверка на имотите, които предлагаме!
Обслужваме български и чуждестранни клиенти, в офиса ни предлагаме консултация на – български, недерландски, руски, турски и английски език. English, Русский, Nederlandse, Türkçe./EMLAK/
Имаме удоволствието да ви представим Жилищен Комплекс „ЛАС ВЕГАС“, разположен в кв. Изгрев, гр. Свиленград на пешеходно разстояние от 5 минути от центъра на града.
Комплексът разполага със студия, двустайни и тристайни апартаменти .Квадратурите на апартаментите са от 30.65 м2 до 104.52 м2, разпределени на пет жилищни етажа. Гъвкава схема на плащане. В допълнение може да закупите външни паркомясто, гаражи/паркоместа на подземно ниво . Сградата е проектирана с два входа с луксозни общи части. За сигурността на живущите са предвидени видеонаблюдение и контролиран достъп за външни лица на входа на сградата. Изключително КОМУНИКАТИВНА локация. Детска градина, училище, здравни заведения, аптеки, магазини, развлекателни заведения и паркове за отдих, които са в непосредствена близост. На 5минути пешеходно от центъра на града. Апартаментите са подходящи както за лично ползване така и с цел инвестиция отдаване под наем с висока доходност.
Имотът ще бъде изграден от доказани инвеститори, които залагат само и изцяло на Модерно и качествено строителство, при спазване на съвременните европейски стандарти в бранша. Висок клас на използваните материали. Монолитна стоманобетонна конструкция, оразмерена на земетръс. Външни и вътрешни стени от червени керамични тухли на водещ европейски производител. Осигурени топло-, хидро- и шумо- изолации. Вътрешни мазилки и замазки. Инсталации, изпълнени със сертифицирани материали на реномирани производители. Стилна фасада с класическа градска архитектура. Качествена дограма с високо-енергийни и ниско-емисионни стъкла. Красиви, здрави и сигурни външни врати. Представителни общи части с модерни вътрешни мазилки в топли цветове и настилки по стълбища и коридори от естествен камък и най-висок клас асансьор. Материали, осигуряващи лесна поддръжка, дълговечност и чувство за уют в дома.
НЕ ОТЛАГАЙТЕ ПОКУПКАТА НА НОВИЯТ СИ ДОМ!
НАПРАВЕТЕ ГО ОЩЕ СЕГА!! ЗАПАЗЕТЕ ИМОТА СРЕЩУ 1000лв!!!
РАЗСРОЧЕНО ПЛАЩАНЕ БЕЗ ОСКЪПЯВАНЕ!!!
За повече информация и оглед се обадете на посочените телефони!
Оказваме пълно съдействие за банково кредитиране при най-добри условия, висока пазарна оценка и цялостна юридическа проверка на имотите, които предлагаме!
Обслужваме български и чуждестранни клиенти, в офиса ни предлагаме консултация на – български, недерландски, руски, турски и английски език. English, Русский, Nederlandse, Türkçe./EMLAK/
ID: 141476265
Контакт с продавача
xxx xxx xxx
Добавена 15 декември 2025 г.
Нова Луксозна Сграда в кв. Изгрев, гр. Свиленград.
1955.83 лв. / 1000 €
Локация
гр. Свиленград
Област Хасково
За този потребител
