Бизнес
Цена на кв.м: 1300
Брой етажи на сградата: 2
Квадратура: 215 кв.м
Квадратура на двора: 463 кв.м
Година на строителство: 2026 г.
Строителство: Тухла
Отопление: Термопомпа
Състояние на сградата: В строеж
Особености: затворен комплекс
Описание
ТОПИММО предлага за продажба модерна къща ново строителство в затворен комплекс от 6 къщи в село Здравец. Пътят до там е в отлично състояние и наскоро ремонтиран, което осигурява бърз и удобен достъп до центъра на Варна само на 15 минути с кола.
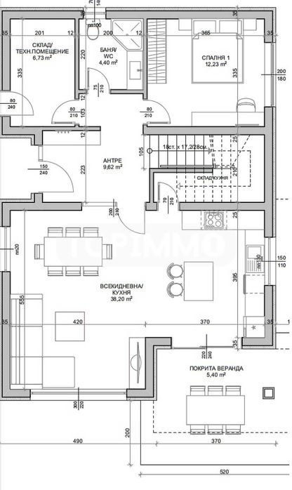
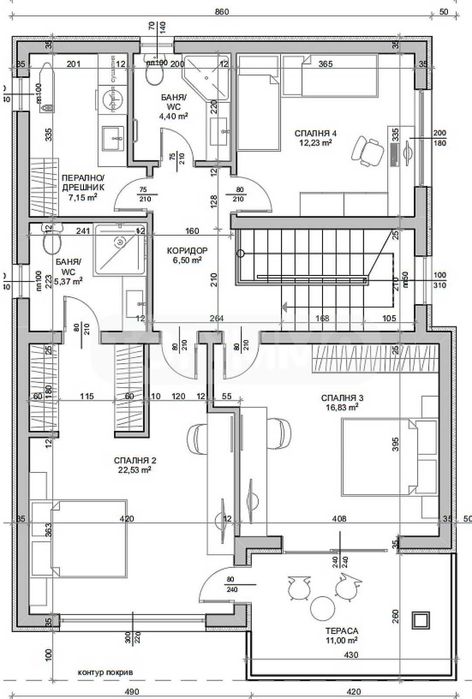
Къщата е проектирана с просторни и светли помещения, осигуряващи максимална функционалност и комфорт. Първи етаж се състои от входно антре, всекидневна с кухненска част, от която се излиза на покрита веранда, спалня, баня с тоалетна, складово помещение. Удобно стълбище отвежда към втори етаж, където са разпределени 3 спални, едната с тераса, баня с тоалетна и перално помещение/дрешник.
Високата енергийна ефективност допринася за намалени разходи за отопление и охлаждане, осигурявайки уют през всички сезони. Отоплението на къщата, чрез парно с термопомпа, охлаждане с климатизация. Собственият двор е чудесно място за семейни събирания и отдих сред природата.
Предлага се възможност за довършителни работи до ключ, обзавеждане, интериорен дизайн на клиента.
Предстоящо откриване на строителна площадка месец януари 2025 г. Срок за завършване: месец юни 2026 г.
Схема на плащане:
2 000 Евро за запазване на имота до подписване на предварителен договор за покупко-продажба
20% на подписване на предварителен договор за покупко-продажба при издадено Разрешение за строеж
30% на акт 14
40% на акт 15
10% на акт 16
Село Здравец е идеално за еко туризъм, известно с чистия си въздух и красивата природа. Мястото привлича любители на природата и активния отдих, а същевременно предоставя спокойствие и тишина.
Инвестирайте в качествено жилище, където удобството и природната красота са в хармония.
Можем да организираме оглед в удобно за вас време, свържете се с нас! Референтен номер: AP-3701
Къщата е проектирана с просторни и светли помещения, осигуряващи максимална функционалност и комфорт. Първи етаж се състои от входно антре, всекидневна с кухненска част, от която се излиза на покрита веранда, спалня, баня с тоалетна, складово помещение. Удобно стълбище отвежда към втори етаж, където са разпределени 3 спални, едната с тераса, баня с тоалетна и перално помещение/дрешник.
Високата енергийна ефективност допринася за намалени разходи за отопление и охлаждане, осигурявайки уют през всички сезони. Отоплението на къщата, чрез парно с термопомпа, охлаждане с климатизация. Собственият двор е чудесно място за семейни събирания и отдих сред природата.
Предлага се възможност за довършителни работи до ключ, обзавеждане, интериорен дизайн на клиента.
Предстоящо откриване на строителна площадка месец януари 2025 г. Срок за завършване: месец юни 2026 г.
Схема на плащане:
2 000 Евро за запазване на имота до подписване на предварителен договор за покупко-продажба
20% на подписване на предварителен договор за покупко-продажба при издадено Разрешение за строеж
30% на акт 14
40% на акт 15
10% на акт 16
Село Здравец е идеално за еко туризъм, известно с чистия си въздух и красивата природа. Мястото привлича любители на природата и активния отдих, а същевременно предоставя спокойствие и тишина.
Инвестирайте в качествено жилище, където удобството и природната красота са в хармония.
Можем да организираме оглед в удобно за вас време, свържете се с нас! Референтен номер: AP-3701
ID: 141915741
Контакт с продавача
xxx xxx xxx


