Бизнес
Цена на кв.м: 1648.04
Брой етажи на сградата: 3
Квадратура: 179 кв.м
Квадратура на двора: 228 кв.м
Година на строителство: 2026 г.
Строителство: Тухла
Отопление: Електричество
Състояние на сградата: В строеж
Описание
International Real Estates (IRE) представя:
Модерна триетажна къща със впечатляваща панорама към Варненското езеро за продажба, разположена в кв. Възраждане, гр. Варна.
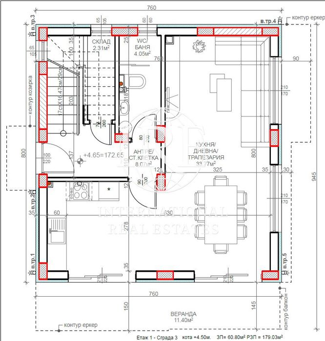
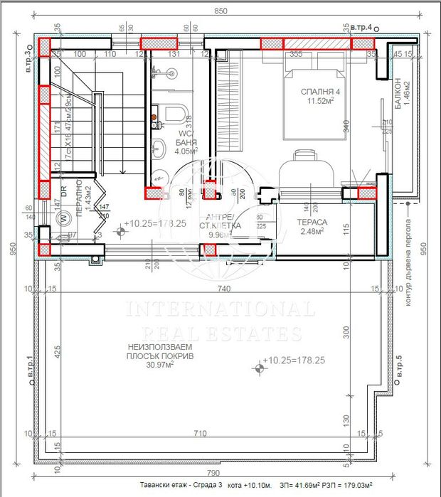
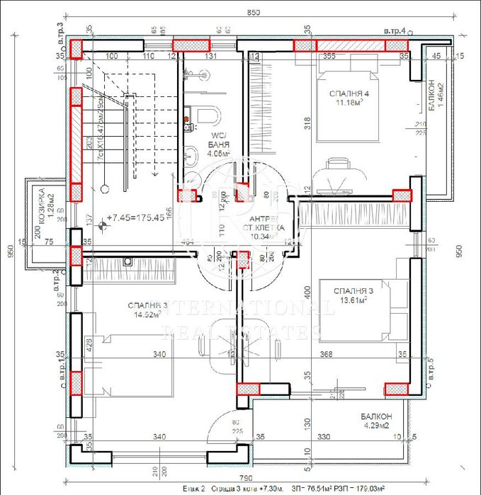
Къщата е с РЗП 179 кв.м., и има следното разпределение:
-на първо ниво са разположени – просторно входно антре, дневна с кухня с обособена трапезария с френски прозорци – 34кв.м., складово помещение, баня с тоалетна, голяма веранда за барбекю-зона, кът за отдих и релакс;
-второ ниво се състои от – коридор, три големи спални, всяка една с площ от 15кв.м., 14кв.м., 12кв.м., баня с тоалетна, перално помещение, два балкона с прекрасна панорамна гледка;
-на трето ниво има – голяма спалня, баня с тоалетна, два балкона с уникална панорама, която гарантира усещане за простор, светлина и спокойствие, покривна тераса – 31кв.м. с нескриваема гледка към целия град и Черноморието, възможност за лятна градина, кът за отдих и релакс.
Предлага се по – БДС, с възможност за завършване ‘ДО КЛЮЧ’ чрез допълнително заплащане.
Към имота има две паркоместа.
Дворнотор място е с площ от 228 кв.м., с възможност за изграждане на зона за отдих, детски кът, барбекю-зона.
Перфектна локация, Отличен имот, подходящ за целогодишно живеене, ваканция, отдаване под наем с гарантирана доходност!
За повече информация и организиране на оглед, моля свържете се с нас на посочения телефон и цитирайте код на обявата: 1200
Модерна триетажна къща със впечатляваща панорама към Варненското езеро за продажба, разположена в кв. Възраждане, гр. Варна.
Къщата е с РЗП 179 кв.м., и има следното разпределение:
-на първо ниво са разположени – просторно входно антре, дневна с кухня с обособена трапезария с френски прозорци – 34кв.м., складово помещение, баня с тоалетна, голяма веранда за барбекю-зона, кът за отдих и релакс;
-второ ниво се състои от – коридор, три големи спални, всяка една с площ от 15кв.м., 14кв.м., 12кв.м., баня с тоалетна, перално помещение, два балкона с прекрасна панорамна гледка;
-на трето ниво има – голяма спалня, баня с тоалетна, два балкона с уникална панорама, която гарантира усещане за простор, светлина и спокойствие, покривна тераса – 31кв.м. с нескриваема гледка към целия град и Черноморието, възможност за лятна градина, кът за отдих и релакс.
Предлага се по – БДС, с възможност за завършване ‘ДО КЛЮЧ’ чрез допълнително заплащане.
Към имота има две паркоместа.
Дворнотор място е с площ от 228 кв.м., с възможност за изграждане на зона за отдих, детски кът, барбекю-зона.
Перфектна локация, Отличен имот, подходящ за целогодишно живеене, ваканция, отдаване под наем с гарантирана доходност!
За повече информация и организиране на оглед, моля свържете се с нас на посочения телефон и цитирайте код на обявата: 1200
ID: 147434235
Контакт с продавача
xxx xxx xxx

