Бизнес
Цена на кв.м: 2069.31
Брой етажи на сградата: 2
Квадратура: 202 кв.м
Квадратура на двора: 626 кв.м
Година на строителство: 2027 г.
Строителство: Тухла
Отопление: Без отопление
Състояние на сградата: Завършена
Описание
Предлагаме на Вашето внимание новострояща се еднофамилна къща със съвременна архитектура, разположена в една от най-престижните и спокойни зони на Варна м-т Траката. Имотът съчетава уединение, чист въздух и бърз достъп до центъра на града и морските курорти.
Основни характеристики:
РЗП: 202 кв.м.
Двор: 626 кв.м. самостоятелен, равен и озеленен.
Етап на строителство: Акт 14 Въвеждане в експлоатация през 2027 г.
Изложение: ЮгИзток изключително слънчев и топъл имот.
Паркиране: Предвидено открито паркомясто в рамките на имота.
Функционално разпределение:
Етаж 1 Дневна зона:
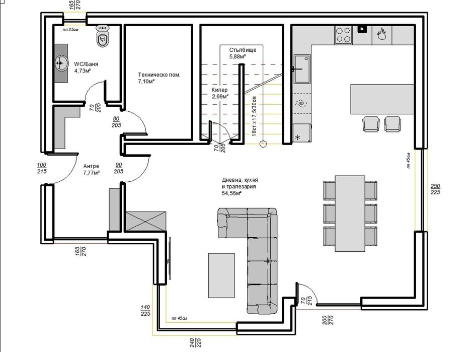
Входно антре 7,77 кв.м
Впечатляваща дневна с кухненски бокс и трапезария 54,56 кв.м с големи френски прозорци и директен излаз към двора
Котелнотехническо помещение 7,10 кв.м
Килерсклад 2,69 кв.м
Комбиниран санитарен възел 4,73 кв.м.
Етаж 2 Нощна зона:
Родителска спалня 20,37 кв.м със собствен дрешник 5,60 кв.м и баня с тоалетна 5,15 кв.м
Две просторни детски спални 14,20 кв.м и 14,84 кв.м
Втора баня с тоалетна 4,32 кв.м за етажа
Отделно перално помещение 4,19 кв.м
Коридор 4,62 кв.м.
Степен на завършеност:
Къщата се продава по БДС на шпакловка и замазка, което дава възможност на новите собственици да реализират интериорен дизайн по свой вкус.
Висок клас ПВЦ дограма с отлична енергийна ефективност.
Изградени инсталации за електричество, вода и канализация ключово предимство за района.
Защо да изберете този имот?
Локация: Траката е предпочитано място за живеене поради близостта до града и тишината на крайградската зона.
Пространство: Големият двор от над 600 кв.м осигурява комфорт и място за релакс, басейн или детска площадка.
Светлина: Правилното изложение гарантира естествена светлина през целия ден.
Свържете се с нас за повече информация и организиране на оглед!
08******82
Основни характеристики:
РЗП: 202 кв.м.
Двор: 626 кв.м. самостоятелен, равен и озеленен.
Етап на строителство: Акт 14 Въвеждане в експлоатация през 2027 г.
Изложение: ЮгИзток изключително слънчев и топъл имот.
Паркиране: Предвидено открито паркомясто в рамките на имота.
Функционално разпределение:
Етаж 1 Дневна зона:
Входно антре 7,77 кв.м
Впечатляваща дневна с кухненски бокс и трапезария 54,56 кв.м с големи френски прозорци и директен излаз към двора
Котелнотехническо помещение 7,10 кв.м
Килерсклад 2,69 кв.м
Комбиниран санитарен възел 4,73 кв.м.
Етаж 2 Нощна зона:
Родителска спалня 20,37 кв.м със собствен дрешник 5,60 кв.м и баня с тоалетна 5,15 кв.м
Две просторни детски спални 14,20 кв.м и 14,84 кв.м
Втора баня с тоалетна 4,32 кв.м за етажа
Отделно перално помещение 4,19 кв.м
Коридор 4,62 кв.м.
Степен на завършеност:
Къщата се продава по БДС на шпакловка и замазка, което дава възможност на новите собственици да реализират интериорен дизайн по свой вкус.
Висок клас ПВЦ дограма с отлична енергийна ефективност.
Изградени инсталации за електричество, вода и канализация ключово предимство за района.
Защо да изберете този имот?
Локация: Траката е предпочитано място за живеене поради близостта до града и тишината на крайградската зона.
Пространство: Големият двор от над 600 кв.м осигурява комфорт и място за релакс, басейн или детска площадка.
Светлина: Правилното изложение гарантира естествена светлина през целия ден.
Свържете се с нас за повече информация и организиране на оглед!
08******82
ID: 146653722
Контакт с продавача
xxx xxx xxx
Добавена 09 януари 2026 г.
Модерна двуетажна къща в м-т Траката, гр. Варна
817536.94 лв. / 418000 €
Потребител
Локация
гр. Варна, м-т Траката
Област Варна