Бизнес
Цена на кв.м: 1256.68
Брой етажи на сградата: 2
Квадратура: 187 кв.м
Квадратура на двора: 980 кв.м
Година на строителство: 2026 г.
Строителство: Тухла
Отопление: Без отопление
Състояние на сградата: В строеж
Описание
Виктория имоти има удоволствието да Ви предложи модерен, енергийно ефективен имот, находящ се в живописното село Пчелище. Селото е предпочитано, поради съчетанието му от уют, природа и близост до града.
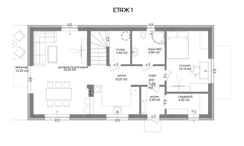
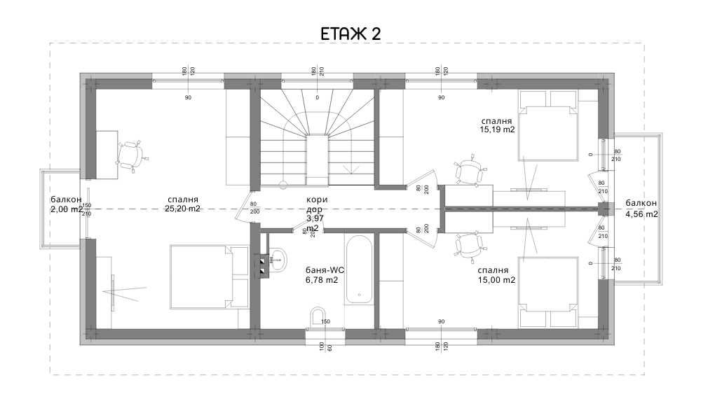
Самия проект представлява двуетажна новострояща се къща, с разгърната застроена площ от 187,98 кв.м, разпределени функционално, както следва: първи етаж (90,71 кв.м.) - пространствено обединени всекидневна, трапезария и просторна кухня, спалня с гардеробна, баня с тоалетна, складово помещение. По вътрешни стълби се стига до втори етаж (97,27 кв.м.), където са позиционирани три просторни спални, баня с тоалетна и две тераси, с излаз от всяка от спалните.
Къщата е проектирана така, че да осигури максимално удобство и простор за своите обитатели. Крайният срок за въвеждане в експлоатация е юни 2026 г.
Освен с функционалност и внимание към детайлите, имотът ще се отличава с високо качество на строителните материали и дейности:
- външни стени, изградени с тухли Porotherm с дебелина 25 см, осигуряващи отлична топлоизолация
- вътрешни стени, изградени с Porotherm 12см
- външна изолация EPS с висок клас силиконова мазилка на Röfix
- вътрешна изолация
- двускатен покрив с безшевни улуци с подпокривна изолация
- цистерна за събиране на дъждовна вода, готова за употреба, с допълнителен извод за захранване при необходимост
- 7 камерна PVC дограма с възможност за избор на цвят
- подово отопление с изводи и радиатори на тапа
- циментова замазка след подовото и гранитогрес за подова настилка
- шпакловани и боядисани стени, с възможност за избор на цвят
- монтирани интериорни врати и входна блиндирана врата с възможност за избор на цвят
- вградени кабели за интернет и телевизия, както и за 'Smart Home' и охранителна система
Имотът ще се издаде в състояние за нанасяне на мебели, с положени подови настилки и завършени санитарни възли.
Дворното място от 980 кв.м. ще е озеленено, с изградено капково напояване по дължината на цялата ограда, осигуряваща лесна поддръжка на зелените площи.
Къщата е перфектният избор за тези, които търсят съвременен комфорт и спокойствие сред природата. Със своето внимателно планирано разпределение и висококачествени материали, тя предлага всичко необходимо за един уютен и функционален дом. Заповядайте на оглед!
! В цената не са включени изграждането на басейн, обзавеждането с мебели и оборудването с електроуреди !
! Има възможност за договорка за изграждане на гараж срещу допълнително заплащане!
За повече информация се свържете с нас или заповядайте на място в нашия офис, находящ се в гр. Велико Търново, ул. "Ваил Левски" № 29Б, ет. 2!
№ 13247
Самия проект представлява двуетажна новострояща се къща, с разгърната застроена площ от 187,98 кв.м, разпределени функционално, както следва: първи етаж (90,71 кв.м.) - пространствено обединени всекидневна, трапезария и просторна кухня, спалня с гардеробна, баня с тоалетна, складово помещение. По вътрешни стълби се стига до втори етаж (97,27 кв.м.), където са позиционирани три просторни спални, баня с тоалетна и две тераси, с излаз от всяка от спалните.
Къщата е проектирана така, че да осигури максимално удобство и простор за своите обитатели. Крайният срок за въвеждане в експлоатация е юни 2026 г.
Освен с функционалност и внимание към детайлите, имотът ще се отличава с високо качество на строителните материали и дейности:
- външни стени, изградени с тухли Porotherm с дебелина 25 см, осигуряващи отлична топлоизолация
- вътрешни стени, изградени с Porotherm 12см
- външна изолация EPS с висок клас силиконова мазилка на Röfix
- вътрешна изолация
- двускатен покрив с безшевни улуци с подпокривна изолация
- цистерна за събиране на дъждовна вода, готова за употреба, с допълнителен извод за захранване при необходимост
- 7 камерна PVC дограма с възможност за избор на цвят
- подово отопление с изводи и радиатори на тапа
- циментова замазка след подовото и гранитогрес за подова настилка
- шпакловани и боядисани стени, с възможност за избор на цвят
- монтирани интериорни врати и входна блиндирана врата с възможност за избор на цвят
- вградени кабели за интернет и телевизия, както и за 'Smart Home' и охранителна система
Имотът ще се издаде в състояние за нанасяне на мебели, с положени подови настилки и завършени санитарни възли.
Дворното място от 980 кв.м. ще е озеленено, с изградено капково напояване по дължината на цялата ограда, осигуряваща лесна поддръжка на зелените площи.
Къщата е перфектният избор за тези, които търсят съвременен комфорт и спокойствие сред природата. Със своето внимателно планирано разпределение и висококачествени материали, тя предлага всичко необходимо за един уютен и функционален дом. Заповядайте на оглед!
! В цената не са включени изграждането на басейн, обзавеждането с мебели и оборудването с електроуреди !
! Има възможност за договорка за изграждане на гараж срещу допълнително заплащане!
За повече информация се свържете с нас или заповядайте на място в нашия офис, находящ се в гр. Велико Търново, ул. "Ваил Левски" № 29Б, ет. 2!
№ 13247
ID: 147763214
Контакт с продавача
xxx xxx xxx
Добавена 24 април 2026 г.
МОДЕРЕН ИМОТ В С. ПЧЕЛИЩЕ
459620.05 лв. / 235000 €
Потребител
Локация
с. Пчелище
Област Велико Търново