Бизнес
Цена на кв.м: 1500
Тип апартамент: многостаен
Квадратура: 400 кв.м
Година на строителство: 2015 г.
Строителство: Тухла
Етаж: 9-ти
Брой етажи на сградата: 9
Последен етаж
Отопление: Електричество
Обзавеждане: Обзаведен
Състояние на сградата: Завършена
Преход: Без преход
Особености: асансьор, гараж, паркинг, портиер, охрана, саниран, видеонаблюдение
OLX Доставка
Описание
Оферта 50850
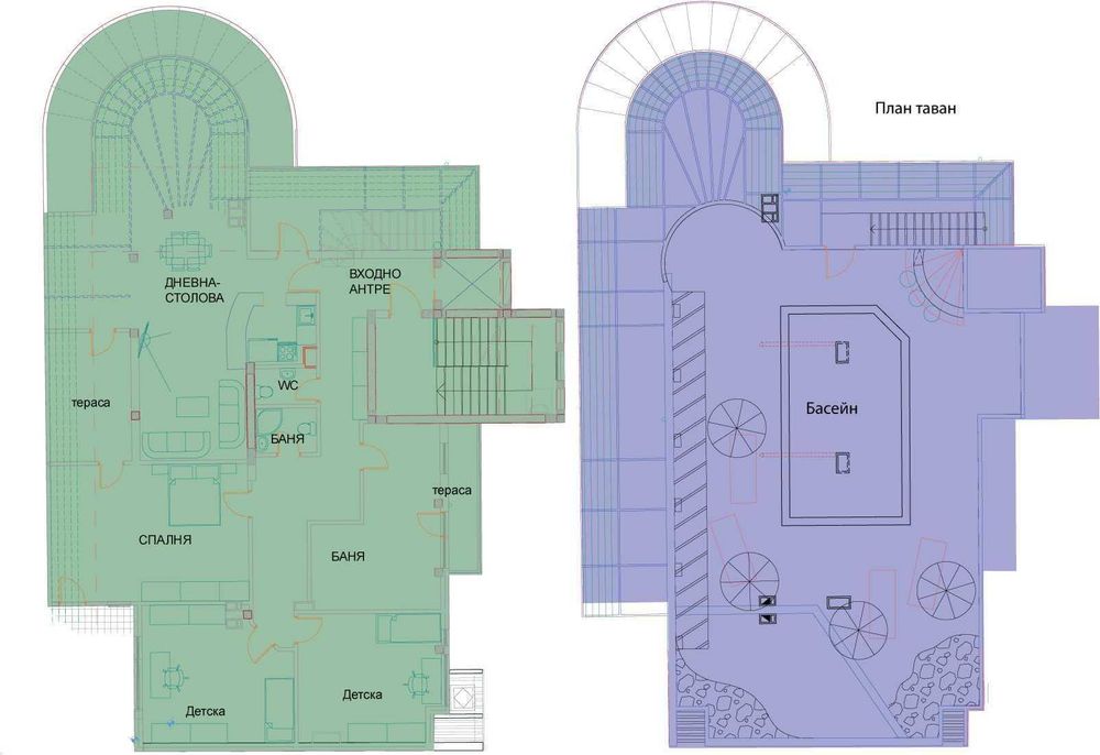
Представяме на Вашето внимание елегантно панорамно жилище с три спални в гр. Пловдив в сграда с модерна архитектура с разрешение за ползване от 2015 год. Жилището ще Ви впечатли с неповторима атмосфера, изисканост и елегантност във всеки детайл. Светлина, простор и уют ще Ви завладеят във всяко едно помещение. Сградата е с уникална визия разкриваща красиви панорами над града и към планината. Жилището е светло и изключително просторно, състои се от: просторна дневна с прекрасен изглед, кухненски бокс; трапезарна част; три самостоятелни спални, две бани;
две тоалетни, мокро помещение, две тераси и на последен етаж има изградена голяма панорамна тераса по архитектурен проект и място за барбекю и басейн! Отделно може да се закупи подземно паркомясто.
. Районът непрестанно се развива и облагородява. Красивите гледки и зеленината предразполагат към благоприятна жилищна атмосфера. В удобна близост има всичко необходимо за едно комфортно ежедневие - магазини, училища, търговски услуги, спирки на редовен градски транспорт.
Оглед на имота
Можем да организираме оглед на имота в удобно за вас време. За целта, свържете се с отговорния за офертата брокер и му кажете кога бихте искали да направите оглед.
Резервация на имота
Имотът може да бъде резервиран и свален от продажба със заплащане на депозит, след което се прекратява провеждането на огледи с други купувачи и започва подготовка на документите за сключване на предварителен и окончателен договор. Свържете се с отговорния брокер за този имот за подробна информация относно процедурата на покупка и начините за плащане.
Представяме на Вашето внимание елегантно панорамно жилище с три спални в гр. Пловдив в сграда с модерна архитектура с разрешение за ползване от 2015 год. Жилището ще Ви впечатли с неповторима атмосфера, изисканост и елегантност във всеки детайл. Светлина, простор и уют ще Ви завладеят във всяко едно помещение. Сградата е с уникална визия разкриваща красиви панорами над града и към планината. Жилището е светло и изключително просторно, състои се от: просторна дневна с прекрасен изглед, кухненски бокс; трапезарна част; три самостоятелни спални, две бани;
две тоалетни, мокро помещение, две тераси и на последен етаж има изградена голяма панорамна тераса по архитектурен проект и място за барбекю и басейн! Отделно може да се закупи подземно паркомясто.
. Районът непрестанно се развива и облагородява. Красивите гледки и зеленината предразполагат към благоприятна жилищна атмосфера. В удобна близост има всичко необходимо за едно комфортно ежедневие - магазини, училища, търговски услуги, спирки на редовен градски транспорт.
Оглед на имота
Можем да организираме оглед на имота в удобно за вас време. За целта, свържете се с отговорния за офертата брокер и му кажете кога бихте искали да направите оглед.
Резервация на имота
Имотът може да бъде резервиран и свален от продажба със заплащане на депозит, след което се прекратява провеждането на огледи с други купувачи и започва подготовка на документите за сключване на предварителен и окончателен договор. Свържете се с отговорния брокер за този имот за подробна информация относно процедурата на покупка и начините за плащане.
ID: 142962903
Контакт с продавача
xxx xxx xxx
Добавена 01 октомври 2025 г.
Многостаен луксозен апартамент с басейн в кв. Кършияка!
600000 €
Потребител
Локация
гр. Пловдив, Кършияка
Област Пловдив
За този потребител