Бизнес
Цена на кв.м: 1147.40
Тип апартамент: многостаен
Квадратура: 173 кв.м
Година на строителство: 2025 г.
Строителство: Тухла
Етаж: 3-ти
Брой етажи на сградата: 5
Последен етаж
Отопление: Електричество
Обзавеждане: Необзаведен
Състояние на сградата: В строеж
Преход: Без преход
Особености: асансьор, саниран
Описание
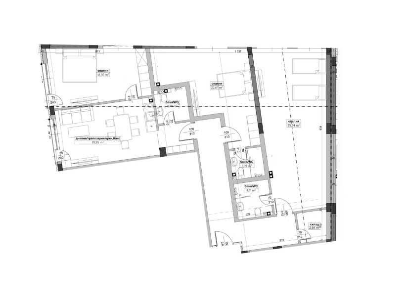
Агенция за недвижими имоти ”ДАНИ КОНСУЛТ” предлага за продажба многостаен апартамент, ново строителство в гр. Велико Търново, кв. Бузлуджа. Жилището е с РЗП от 172.65 кв.м. /ЗП 149.71 кв.м и общи части 22.94 кв.м./. Намира се на трети етаж, изложение запад и се състои от: коридор/антре, склад, трапезария/дневна/ кухненски бокс, три спални и три бани, всяка с тоалетна. При закупуване с цел инвестиция има възможност за обособяване на две боксониери и един двустаен апартамент. Предвидени са и три отделни табла за ток. Апартаментът се продава на мазилка, входна блиндирана врата, оставени ел. отвори, 6-камерна дограма Златен дъб и тераси с налепени плочки. Сградата е 5-етажна, санирана, с асансьор, контрол на достъпа, общите части са с подово покритие камък гранит, измамзани и боядисани стени. Има АКТ 14, всеки момент се очаква Акт 15 и Акт 16 до 31.12.2025 година.
Има опция за закупуване на гараж или паркомясто.
Локацията на имота е отлична, в близост се намират училища, детска градина, магазин, автобусни спирки, аптека, автогара и други. Това наше предложение може да се окаже подходящо за Вашият нов дом или за закупуване с цел инвестиция.
Брокер на офертата: Даниела Христова
Техническа и юридическа обезпеченост на всички сделки! Безплатно съдействие за банков кредит!
Има опция за закупуване на гараж или паркомясто.
Локацията на имота е отлична, в близост се намират училища, детска градина, магазин, автобусни спирки, аптека, автогара и други. Това наше предложение може да се окаже подходящо за Вашият нов дом или за закупуване с цел инвестиция.
Брокер на офертата: Даниела Христова
Техническа и юридическа обезпеченост на всички сделки! Безплатно съдействие за банков кредит!
ID: 143313847
Контакт с продавача
xxx xxx xxx
