Бизнес
Доставката се поема от: лично предаване
Състояние: ново
Описание
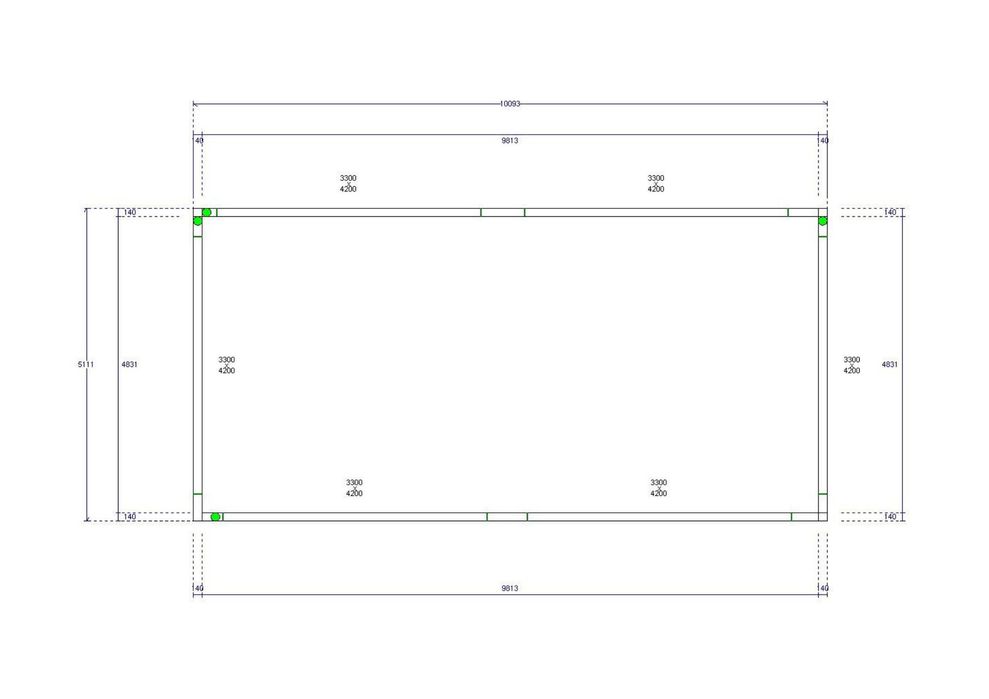
Конструкция за - Халета, Хале, Магазини, Склад, Складове, Навес, Навеси - 50м2 -10м х 5м х3.50м - етап Конструкция - готови за сглобяване профили.
СОБСТВЕНО КРЕДИТИРАНЕ за халета и сглобяеми къщи за фирми и физически лица за срок до 15 години, БЕЗ НУЖДА ОТ ДОКАЗВАНЕ НА ДОХОДИ !!!
Според новите прмени в ЗУТ по чл.56, дават възможност конструкцията да се води и преместваема, с което ще спестите над 10-15 000 лева, както и много време и нерви. Нашият екип проектанти изработва и проекти за преместваеми конструкция.
Цената е без дд
Начин на плащане 50% аванс, 40% при експедиране, 10% след монтаж.
Срок за изработка 20 дни
Срок за монтаж до 10 дни.
Кредитиране чрез лизинг или ипотечен кредит, при изпълнение до ключ.
В цената не е включена услуга с автокран, или всякакъв друг вид подемна техника, ако има нужда от такава за монтажа. Цените са без калкулирана производствена фира. При монтаж, се заплащат допълнително командировъчни и транспортни разходи за монтажната бригада.
Бартер - НОВА КЪЩА, МАГАЗИН, ГАРАЖ, СКЛАД, ХАЛЕ, БУНГАЛА, или друг вид постройка, СРЕЩУ ЧАСТ ОТ ВАШИЯ ИЗЛИШЕН ПАРЦЕЛ !
Този вариант предлага нов много по-изгоден начин за собствениците на терени, от вече познатите начини за застрояване срещу обезщетение , тъй като така собственика на земята получава двойно по-висока цена за парцела си , и в същото време получава постройка за която не заплаща с пари, а с част от парцела си.
Пример:
Вие притежавате парцел на средна пазарна стойност 100 хил лв, ние построяваме на част от парцела ви постройка до някакъв процент от стойността на парцела, като Вие заплащате къщата към нас, чрез прехвърляне на останалата част от парцела ви, който ви е излишен.
Търсим партньори в цялата страна, на добра комисионна, които ще получат от нас пълно съдействие и конкурентни цени!
Фабрика и офис
4409, с. Главиница
Индустриална зона / Главиница
+35**********81
Офис гр. Варна, 9002
бул. Цар Освободител 76Г, ет.9
( Сградата на Проектантска, или Здравна Каса )
+35************59
Офис гр. София, 1700
Ж.К. Студентски Град
ул. Проф. Атанас Иширков 13, ет. 3
+35************43
www.bullhomes.eu
СОБСТВЕНО КРЕДИТИРАНЕ за халета и сглобяеми къщи за фирми и физически лица за срок до 15 години, БЕЗ НУЖДА ОТ ДОКАЗВАНЕ НА ДОХОДИ !!!
Според новите прмени в ЗУТ по чл.56, дават възможност конструкцията да се води и преместваема, с което ще спестите над 10-15 000 лева, както и много време и нерви. Нашият екип проектанти изработва и проекти за преместваеми конструкция.
Цената е без дд
Начин на плащане 50% аванс, 40% при експедиране, 10% след монтаж.
Срок за изработка 20 дни
Срок за монтаж до 10 дни.
Кредитиране чрез лизинг или ипотечен кредит, при изпълнение до ключ.
В цената не е включена услуга с автокран, или всякакъв друг вид подемна техника, ако има нужда от такава за монтажа. Цените са без калкулирана производствена фира. При монтаж, се заплащат допълнително командировъчни и транспортни разходи за монтажната бригада.
Бартер - НОВА КЪЩА, МАГАЗИН, ГАРАЖ, СКЛАД, ХАЛЕ, БУНГАЛА, или друг вид постройка, СРЕЩУ ЧАСТ ОТ ВАШИЯ ИЗЛИШЕН ПАРЦЕЛ !
Този вариант предлага нов много по-изгоден начин за собствениците на терени, от вече познатите начини за застрояване срещу обезщетение , тъй като така собственика на земята получава двойно по-висока цена за парцела си , и в същото време получава постройка за която не заплаща с пари, а с част от парцела си.
Пример:
Вие притежавате парцел на средна пазарна стойност 100 хил лв, ние построяваме на част от парцела ви постройка до някакъв процент от стойността на парцела, като Вие заплащате къщата към нас, чрез прехвърляне на останалата част от парцела ви, който ви е излишен.
Търсим партньори в цялата страна, на добра комисионна, които ще получат от нас пълно съдействие и конкурентни цени!
Фабрика и офис
4409, с. Главиница
Индустриална зона / Главиница
+35**********81
Офис гр. Варна, 9002
бул. Цар Освободител 76Г, ет.9
( Сградата на Проектантска, или Здравна Каса )
+35************59
Офис гр. София, 1700
Ж.К. Студентски Град
ул. Проф. Атанас Иширков 13, ет. 3
+35************43
www.bullhomes.eu
ID: 130628769
Контакт с продавача
xxx xxx xxx

